Boxley Road, Walderslade, Chatham, ME5

£400,000
SSTC
This property listing is now SSTC

3 Bedroom Detached House for sale in Walderslade, Chatham

2 3 1
  • No Onward Chain
  • In Need of Updating
  • Detached Three Bedroom
  • Sought After Location
  • Versatile Space
  • Great Family House
  • Great Access for Motorway Links
  • Perfect for Access to Local Shops

Being offered with no forward chain is this detached house which now requires updating to restore and create a lovely family home in the sought after Boxley Road. Situated in a quiet location with perfect access to the local schools, shops and great access to the motorway links.

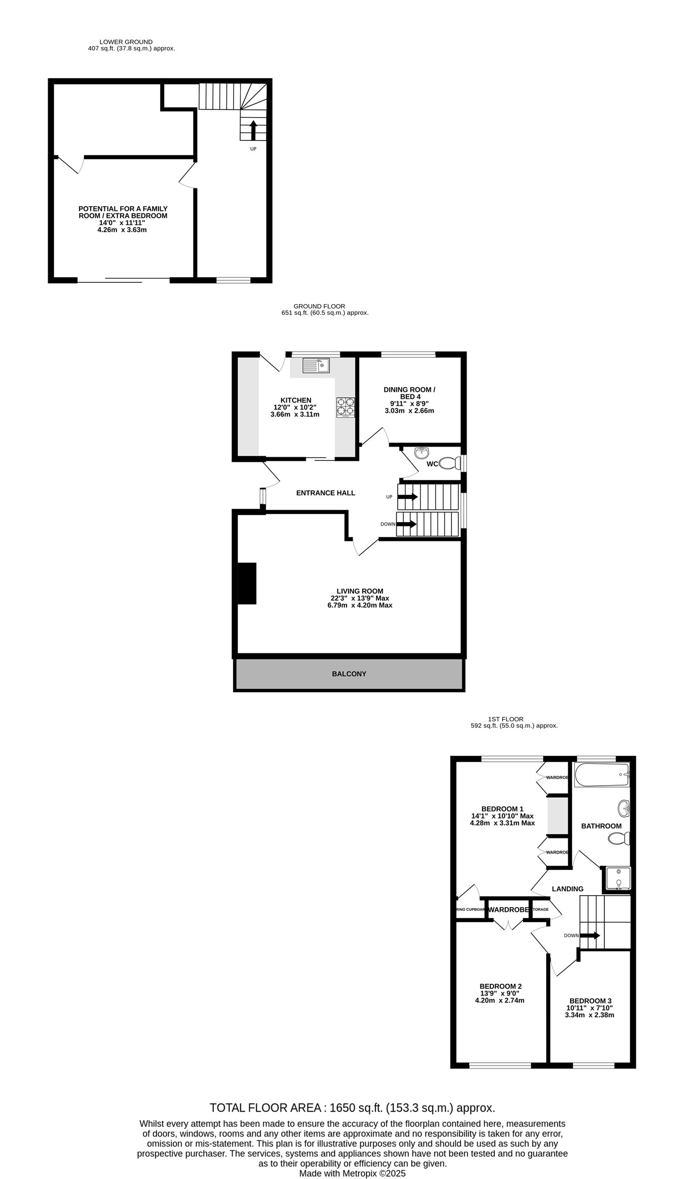
The accommodation provides a spacious entrance hallway and WC. This continues through to the kitchen which offers a range of fitted wall and base units with integrated oven & hob, a separate dining room and good size lounge with patio doors opening onto the balcony. Moving upstairs you have three good size bedrooms and a family bathroom. On the lower ground floor you have a further two rooms which would be ideal as a family room or potentially a fourth bedroom subject to relevant planning permission. Externally the property sits on a good size plot with an elevated position backing onto Woodlands, with a variety of trees and shrubs, plus gated side access leading to the driveway.

Please contact the sales team for further details.

Agent note: The property has a Septic Tank.

Lower Ground Floor


Potential for Family Room/Extra Bedroom
14' 0" x 11' 11" (4.27m x 3.63m)

Ground Floor


Living Room
22' 3" x 13' 9" (6.78m x 4.19m)

Kitchen
12' 0" x 10' 2" (3.66m x 3.10m)

Dining Room/Bedroom 4
9' 11" x 8' 9" (3.02m x 2.67m)

WC


First Floor


Bedroom 1
14' 1" x 10' 10" (4.29m x 3.30m)

Bedroom 2
13' 9" x 9' 0" (4.19m x 2.74m)

Bedroom 3
10' 11" x 7' 10" (3.33m x 2.39m)

Bathroom


Important Information

  • This is a Freehold property.

Property Ref: 5093134_28831114

Share:

Similar Properties

Ashtree Court, Hopewell Drive, Chatham, ME5

4 Bedroom Townhouse | Guide Price £400,000

Guide Price £400,000 - £435,000A great four bedroom terraced town house with integrated garage, set over three floors in...

Forestdale Road, Walderslade Woods, Chatham, ME5

3 Bedroom Link Detached House | Offers Over £400,000

Situated in the sought after area of Walderslade Woods with its proximity to local schools, motorway links and walks. Th...

Wallace Road, Rochester, ME1

5 Bedroom Semi-Detached House | £400,000

Being offered with no onward chain is this 5 bedroom extended semi-detached. Rarely do properties become available in th...

Valley View Road, Rochester, ME1

3 Bedroom Semi-Detached House | Guide Price £425,000

Guide Price £425,000 - £450,000Offered with no forward chain is this semi-detached well maintained 3 bedroom family home...

Papion Grove, Walderslade Woods, ME5

2 Bedroom Detached Bungalow | £425,000

Being offered with no onward chain is this well presented two bedroom detached bungalow. This lovely home has been very...

Chestnut Avenue, Walderslade, Chatham, ME5

2 Bedroom Detached Bungalow | £450,000

Being offered with no forward chain is this two/three bedroom detached bungalow. Rarely do properties become available i...

Greyfox Sales & Lettings (Walderslade)

Walderslade Village Centre, Walderslade, Walderslade, Kent, ME5 9LR

01634 672227

How much is your home worth?

Use our short form to request a valuation of your property.

Request a Valuation

Mortgage Calculator

Amount Borrowed: £
Total Amount Repayable: £
Total Monthly Payment: £
©2026 The Guild of Property Professionals. All rights reserved. Terms and Conditions | Privacy Policy | Cookie Policy | Complaints Policy | Members Login
The Guild of Property Professionals Trading Address: 121 Park Lane, London W1K 7AG. GPEA Limited. Registered in England & Wales.  Company No: 02819824.  Registered Office Address: 2 St. Stephen's Court, St. Stephen's Road, Bournemouth, Dorset, England, BH2 6LA.  VAT Registration No: 576 8795 61
Book a Property Valuation Update Cookies Preferences