Sarsen Heights, Walderslade Woods, Chatham, ME5

Offers Over
£650,000
SSTC
This property listing is now SSTC

4 Bedroom Detached House for sale in Walderslade Woods, Chatham

3 4 3
  • Walderslade Woods
  • Four Double Bedrooms
  • Two Ensuites
  • Family Bathroom
  • Modern Fitted Kitchen
  • Utility Room
  • Double Garage and Driveway

This lovely home is located in the desirable Walderslade Woods which offers a peaceful retreat whilst being in close proximity to Walderslade Village, which offers local amenities including shops, schools and transport links.

On entering this fantastic home you are greeted to the entrance hall with stairs leading to the first floor. Continuing through, you have a good size lounge with sliding doors leading through to the conservatory. The vendors have extended to the side which has created a space for those working from home or can be used as a hobby room.

The kitchen is the heart of this lovely home and offers a range of fitted modern units, ample work surfaces and a host of integrated appliances, also with an added benefit of a modern utility room and downstairs WC.

The conservatory is an extension of this lovely home and is a lovely space to chill and unwind in, looking out onto the maintained garden. Also has main central heating radiators with the additional benefit of underfloor heating for when the main heating supply is not in use.

Moving upstairs, you are welcomed to four double bedrooms, the premium bedrooms are offered with their own ensuite shower room. This is perfect for the growing family or for guests.

Externally, the property is situated on a good size plot with a large driveway for multiple cars. It also offers a double electric roller garage door.

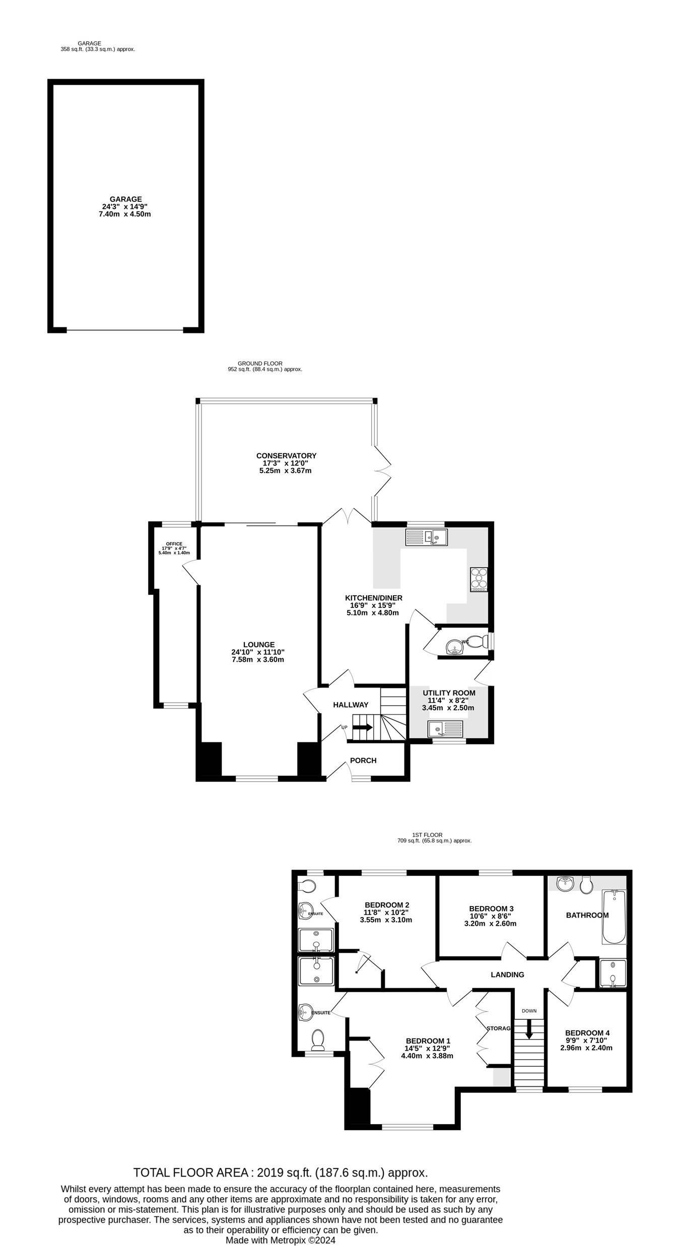
A truly exclusive home that will be great for the growing family. This home needs to be seen to be appreciated. Call the Walderslade Sales Team today.Ground Floor

Porch

Utility Room
11' 4" x 8' 2" (3.45m x 2.49m)

WC

Kitchen/Diner
16' 9" x 15' 9" (5.11m x 4.80m)

Lounge
24' 10" x 11' 10" (7.57m x 3.61m)

Office
17' 9" x 4' 7" (5.41m x 1.40m)

Conservatory
17' 3" x 12' 0" (5.26m x 3.66m)

First Floor

Bedroom 1
14' 5" x 12' 9" (4.39m x 3.89m)

Bedroom 2
11' 8" x 10' 2" (3.56m x 3.10m)

Bedroom 3
10' 6" x 8' 6" (3.20m x 2.59m)

Bedroom 4
9' 9" x 7' 10" (2.97m x 2.39m)

Bathroom
8' 4" x 8' 0" (2.54m x 2.44m)

External

Garage
24' 3" x 14' 9" (7.39m x 4.50m)

Important Information

  • This is a Freehold property.

Property Ref: 27900959

Share:

Similar Properties

Niven Close, Wainscott, Rochester, ME3

4 Bedroom Detached House | Offers Over £550,000

We are pleased to present to the market this delightful detached family home. This property has been well maintained thr...

Chestnut Avenue, Walderslade, Chatham, ME5

3 Bedroom Detached Bungalow | Offers in excess of £500,000

Ready to move into is this three double bedroom detached bungalow which has been extended and renovated to a high standa...

Spencer Close, Walderslade, Chatham, ME5

4 Bedroom Detached House | Offers in excess of £480,000

We are pleased to present to the market this immaculate four bedroom detached property which the current owners have mai...

Robin Hood Lane, Blue Bell Hill, Chatham, ME5

4 Bedroom Detached Bungalow | £675,000

We are delighted to bring to the market this four bedroom detached bungalow located in the sought after residential area...

Lords Wood Lane, Lordswood, ME5

4 Bedroom Detached House | Offers in excess of £700,000

Superb, larger than average, four bedroom house in the ever popular Lordswood area with a 0.19 Acre plot size. If you ar...

Greyfox Sales & Lettings (Walderslade)

Walderslade Village Centre, Walderslade, Walderslade, Kent, ME5 9LR

01634 672227

How much is your home worth?

Use our short form to request a valuation of your property.

Request a Valuation

Mortgage Calculator

Amount Borrowed: £
Total Amount Repayable: £
Total Monthly Payment: £
©2026 The Guild of Property Professionals. All rights reserved. Terms and Conditions | Privacy Policy | Cookie Policy | Complaints Policy | Members Login
The Guild of Property Professionals Trading Address: 121 Park Lane, London W1K 7AG. GPEA Limited. Registered in England & Wales.  Company No: 02819824.  Registered Office Address: 2 St. Stephen's Court, St. Stephen's Road, Bournemouth, Dorset, England, BH2 6LA.  VAT Registration No: 576 8795 61
Book a Property Valuation Update Cookies Preferences