Landscape Road, Warlingham, Surrey, CR6 9JB

Guide Price
£850,000
SSTC
This property listing is now SSTC

3 Bedroom Bungalow for sale in Warlingham

3
  • Superb, Sought After Location
  • Beautiful Level / Mature Corner Plot
  • Detached Bungalow
  • 3 Bedrooms
  • 2 Large Reception Rooms
  • Detached Tandem Garage
  • Requires Updating & Scope for Extension
  • Vacant Possesion

Council tax band: G

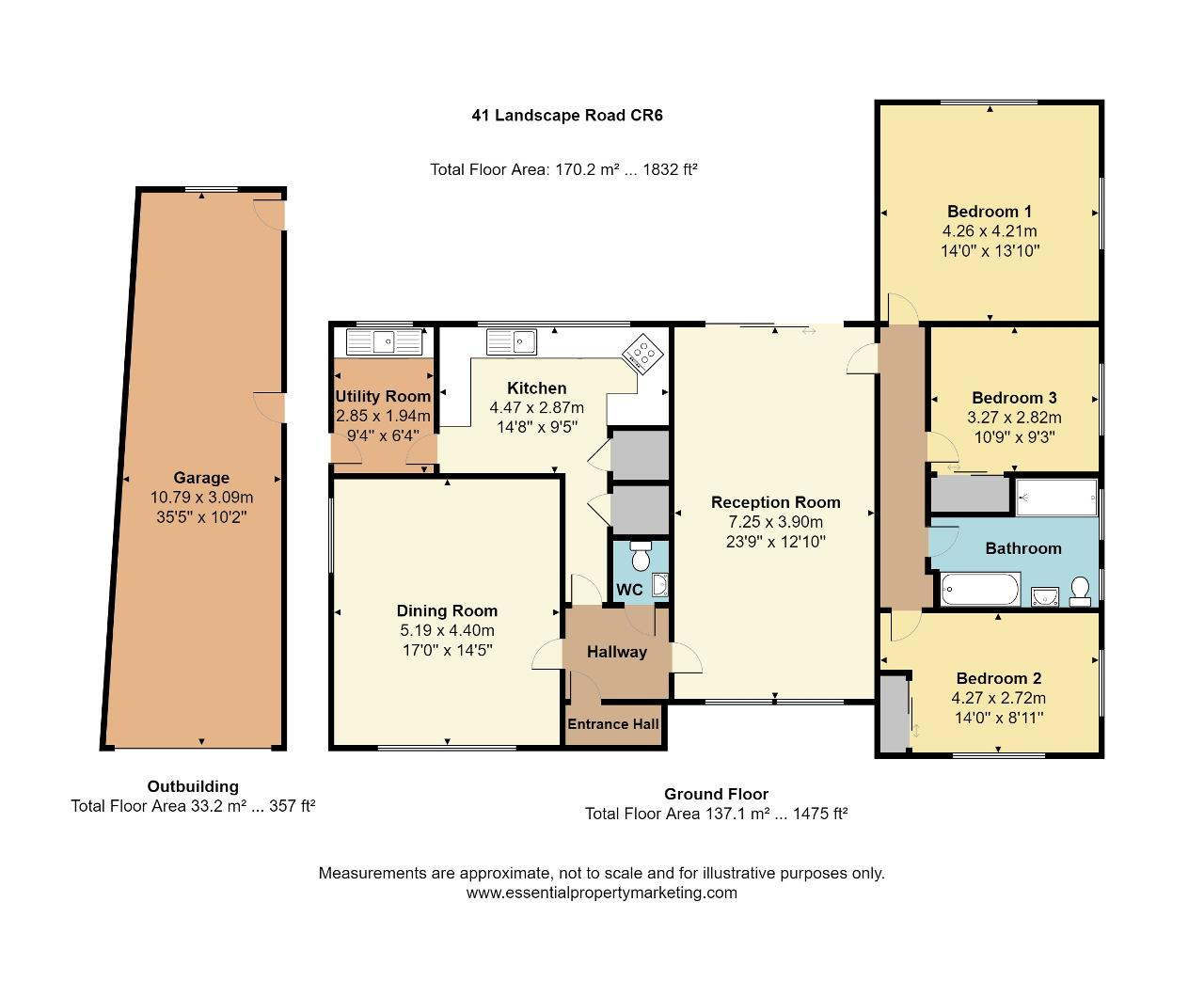
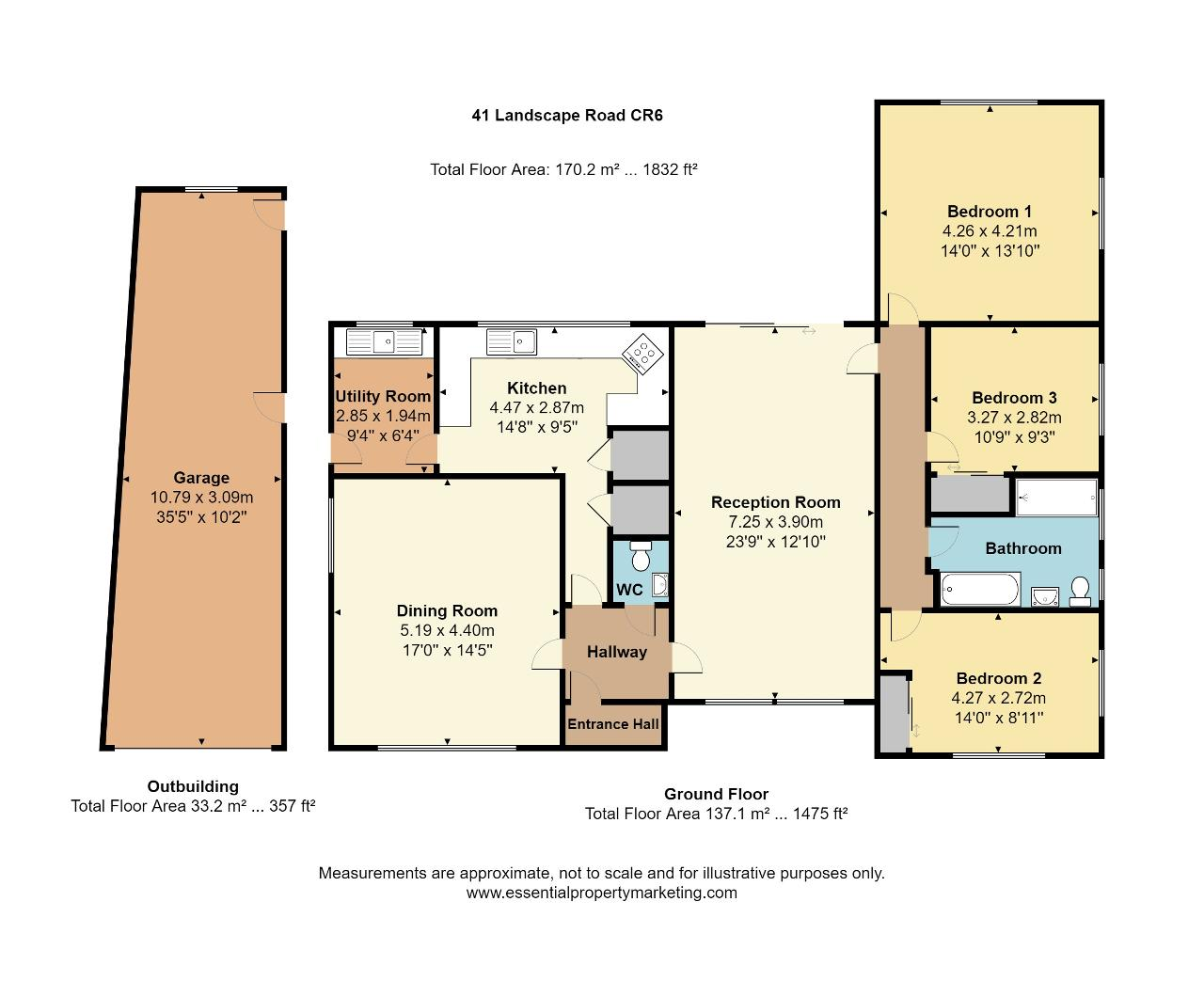
CHAIN FREE - This spacious detached bungalow occupies a fantastic corner position being well screened from the road by mature hedging. Sitting on the corner of Homefield Road and Landscape Road this desirable setting is a rare find. The property is well planned with 2 lovely large reception rooms, the lounge enjoying front to back aspects. The kitchen is a great size with separate utility room, all found off a bright and spacious hallway. Separately are the 3 bedrooms along with a family bathroom which is modern and again very spacious. Internal modernisation and updating is required. To the side of the property and approached by a wide driveway is a detached garage along with parking for several cars. Without doubt one of the main features of this lovely home are the beautiful mature and established level gardens which wrap themselves around the property and offer a high degree of privacy with an array of shrubs and bushes along with generous lawn areas. In summary this is an amazing opportunity to acquire a superb detached bungalow with accommodation approaching 2000 sq ft on a bold prominent cornet plot and within a most prestigious residential road.

Council Tax Band G

Landscape Road is located towards the popular Warlingham Village Green where an array of boutique style shops, restaurants and a supermarket can be found. Also close by is a large Sainsbury's supermarket and the delightful open space of 'Blanchmans Farm'. Upper Warlingham Station just under half a mile away, within walking distance serving Central London for commuting and Whyteleafe Station is just a little further on. The M23/25 motorways are easily accessible serving Gatwick airport and the national motorway network. Reputable schools are to be found in the surrounding areas of both state and private sectors including Warlingham High, Woldingham Girls School and Caterham.


Private Road Fee - As located on the corner of 2 roads the fees are payable in 2 parts - £60 - Landscape Road Frontage Fund & £30 to Homefield Road Maintenance Association.

Important Information

  • This is a Freehold property.

Property Ref: 2-58508_674481

Share:

Similar Properties

Mitchley Grove, Sanderstead, Surrey, CR2 9HS

4 Bedroom Semi-Detached House | Offers in excess of £850,000

Hubbard Torlot are delighted to bring to the market this stunning four double bedroom family home which enjoys a superb...

Badgers Lane, Warlingham, CR6 9JX

4 Bedroom Detached House | £850,000

This individually designed property provides versatile accommodation requiring updating ready for those who are looking...

Hurst View Road, South Croydon, CR2 7AJ

4 Bedroom Detached House | £850,000

Hubbard Torlot are delighted to bring to the market this impressive and beautifully presented four bedroom detached fami...

Shaw Crescent, Sanderstead, South Croydon, Surrey, CR2 9JB

4 Bedroom Detached House | £875,000

This impressive four-bedroom detached house offers spacious, versatile accommodation ideal for modern family living. Boa...

Church Way, Sanderstead, CR2 0JQ

4 Bedroom Detached House | Offers in excess of £900,000

Nestled along a sought-after road in Sanderstead, this attractive double-fronted period home offers the perfect blend of...

Purley Oaks Road, Sanderstead, Surrey, CR2 0NS

5 Bedroom Detached House | £950,000

CHAIN FREE - Set back from the road and approached from an remote control electric gated horseshoe driveway is this beau...

Hubbard Torlot (Sanderstead)

335 Limpsfield Road, Sanderstead, Surrey, CR2 9BY

0208 6516 679

How much is your home worth?

Use our short form to request a valuation of your property.

Request a Valuation

Mortgage Calculator

Amount Borrowed: £
Total Amount Repayable: £
Total Monthly Payment: £
©2025 The Guild of Property Professionals. All rights reserved. Terms and Conditions | Privacy Policy | Cookie Policy | Complaints Policy | Members Login
The Guild of Property Professionals Trading Address: 121 Park Lane, London W1K 7AG. GPEA Limited. Registered in England & Wales.  Company No: 02819824.  Registered Office Address: 2 St. Stephen's Court, St. Stephen's Road, Bournemouth, Dorset, England, BH2 6LA.  VAT Registration No: 576 8795 61
Book a Property Valuation Update Cookies Preferences