Jodrell Street, Abbey Green, Nuneaton, CV11 5EQ

Guide Price
£165,000
SSTC
This property listing is now SSTC

3 Bedroom Terraced House for sale in Warwickshire

2 3 1
  • Centre Terraced House
  • Located In Abbey Green
  • Front Lounge, Dining Room & Kitchen
  • Lobby & Ground Floor Bathroom
  • Three Bedrooms
  • Neat Garden
  • Ideal First Time Buy/Investment
  • Early Viewing Advised
  • EPC Rating C
  • Council Tax Band A

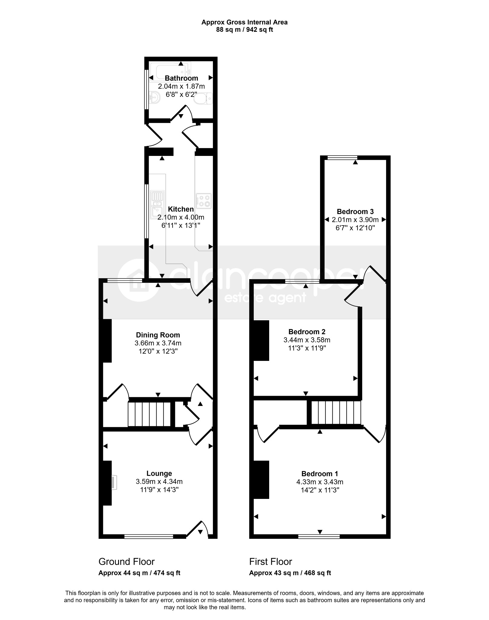
Here is a Centre Terraced House situated in the desirable Abbey Green area of Nuneaton. This property presents an excellent opportunity for first-time buyers or young families seeking a comfortable and conveniently located home. Its prime position ensures easy access to Nuneaton town centre, with its array of shops and amenities, as well as the mainline train station, making commuting straightforward. No upward chain.
The property welcomes you into a bright front lounge via the double glazed door, featuring a double glazed window that allows natural light to flood the space, complemented by a radiator and an attractive feature fireplace, creating a warm and inviting atmosphere. The inner hall provides practical under-stairs storage, leading seamlessly into the dining room. This second reception area is ideal for family meals or entertaining, benefiting from a radiator, a double glazed window, and an enclosed staircase ascending to the first floor.
The heart of the home, the kitchen, is thoughtfully designed with an inset sink unit, an integrated oven, hob, and extractor fan. It boasts a range of fitted units, ample work surfaces, and wall cupboards, providing generous storage. Plumbing is in place for a washing machine, with additional space allocated for both a tumble dryer and a fridge freezer. A fitted boiler ensures efficient heating, and a double glazed window to the side, adding to the bright feel. Adjacent to the kitchen, a lobby offers further convenience with a storage cupboard, radiator, and another double glazed window.
The ground floor is completed by a well-appointed bathroom, featuring a white suite. This includes a panelled bath with a shower over, a pedestal wash hand basin, and a low-level WC. A radiator and a double glazed window ensure comfort and ventilation.
Ascending to the first floor, the landing serves all three bedrooms and includes a radiator. The main bedroom is a comfortable retreat, benefiting from an over-stairs storage cupboard, a radiator, and a double glazed window. Bedrooms two and three are equally well-proportioned, each featuring a radiator and a double glazed window, making them suitable for children, guests, or a home office.
Externally, the property boasts a delightful rear garden, designed for low maintenance and enjoyment. It comprises a paved patio area, perfect for outdoor dining and relaxation, a pathway, and a neatly maintained lawn. Fenced boundaries provide privacy and security, while a convenient side pedestrian access gate enhances practicality. This property is considered an ideal first-time buy or young family home, offering a blend of comfort, convenience, and value. Early viewing advised.

Front Lounge11' 9" x 14' 3"
Inner Hall
Dining Room12' x 12' 3"
Kitchen6' 11" x 13' 1"
Lobby
Ground Floor Bathroom6' 8" x 6' 2"
Landing
Bedroom 114' 2" x 11' 3"
Bedroom 211' 3" x 11' 9"
Bedroom 36' 7" x 12' 10"
Garden
Local AuthorityNuneaton & Bedworth Borough Council.
Agents NoteWe have not tested any of the electrical, central heating or sanitary ware appliances. Purchasers should make their own investigations as to the workings of the relevant items. Floor plans are for identification purposes only and not to scale. All room measurements and mileages quoted in these sales details are approximate. Subjective comments in these details imply the opinion of the selling Agent at the time these details were prepared. Naturally, the opinions of purchasers may differ. These sales details are produced in good faith to offer a guide only and do not constitute any part of a contract or offer. We would advise that fixtures and fittings included within the sale are confirmed by the purchaser at the point of offer. Images used within these details are under copyright to Alan Cooper Estates and under no circumstances are to be reproduced by a third party without prior permission.

Important Information

  • This is a Freehold property.
  • This Council Tax band for this property is: A

Property Ref: 435664

Share:

Similar Properties

Westbury Road, Stockingford, Nuneaton, CV10 8HJ

3 Bedroom Terraced House | Guide Price £165,000

Here is a Centre Terraced House situated in the established Stockingford area of Nuneaton. This charming three-bedroom,...

Quantock Drive, Church Farm, Nuneaton, Warwickshire

3 Bedroom Semi-Detached House | £165,000

Ideal young family home! Here is a most attractive modern Semi Detached House offering well planned family accommodati...

Cedar Road, Camp Hill, Nuneaton CV10 9DN

2 Bedroom Terraced House | Guide Price £165,000

Welcome to this Centre Terrace Residence located on Cedar Road, Nuneaton, an ideal opportunity for first-time buyers loo...

Dahlia Walk, Bermuda Park, Nuneaton, Warwickshire

3 Bedroom Semi-Detached House | £167,000

Here is a modern corner Semi Detached Residence pleasantly situated upon this highly regarded estate, which is convenien...

Tomkinson Road, Stockingford, Nuneaton, CV10 8BN

2 Bedroom Terraced House | Guide Price £168,000

A traditional style centre terrace residence offering much improved and well maintained accommodation ideal for the firs...

Arbury Mansion, Arbury Garth, Nuneaton, Warwickshire

2 Bedroom Flat | £168,950

Here is a superb Second Floor Apartment (with lift or staircase access) forming part of a select and truly distinctive d...

Alan Cooper Estates (Nuneaton)

22 Newdegate Street, Nuneaton, Warwickshire, CV11 4EU

024 7634 9336

How much is your home worth?

Use our short form to request a valuation of your property.

Request a Valuation

Mortgage Calculator

Amount Borrowed: £
Total Amount Repayable: £
Total Monthly Payment: £
©2026 The Guild of Property Professionals. All rights reserved. Terms and Conditions | Privacy Policy | Cookie Policy | Complaints Policy | Members Login
The Guild of Property Professionals Trading Address: 121 Park Lane, London W1K 7AG. GPEA Limited. Registered in England & Wales.  Company No: 02819824.  Registered Office Address: 2 St. Stephen's Court, St. Stephen's Road, Bournemouth, Dorset, England, BH2 6LA.  VAT Registration No: 576 8795 61
Book a Property Valuation Update Cookies Preferences