Skeggles Close, Royal Park, Nuneaton, CV11 6TZ

£407,500

4 Bedroom Detached House for sale in Warwickshire

1 4 2
  • Superb Detached Residence
  • Favoured Location
  • Excellent Family Home
  • Many Pleasing Features
  • Family Dining Kitchen
  • Four Bedrooms & En-Suite
  • Garage Conversion
  • Viewing Recommended
  • EPC Rating C
  • Council Tax Band E

Alan Cooper Estates are delighted to present this superbly appointed Detached Residence, built by Bellway Homes to a high specification and thoughtfully designed to suit the needs of a modern family lifestyle. This property benefits from many pleasing features, is presented in excellent order throughout, and is certainly worthy of a close internal inspection.
Pleasantly situated upon the highly favoured Royal Park estate, just off The Long Shoot, this home offers convenient daily access to Nuneaton's town centre, a wealth of local amenities, and excellent road links. The location is particularly appealing for families, with good access to local school catchment areas, making daily commutes and school runs straightforward.
A highlight of this home is the impressive garage conversion, which now serves as a versatile salon space, complete with its own side entrance and a convenient WC. This offers fantastic potential for a home business, a dedicated hobby room, or an additional reception area, catering to a variety of family requirements.
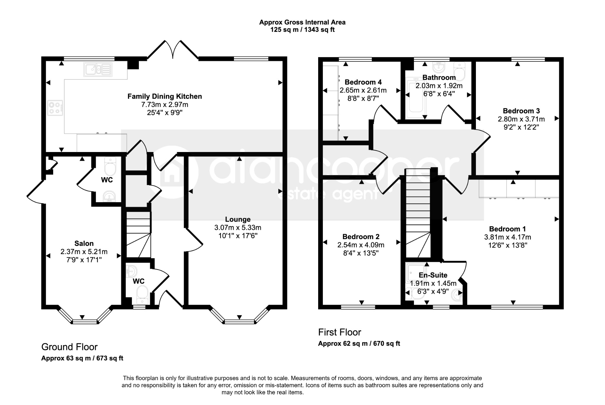
The main home comprises a welcoming reception hall, leading to a convenient guests' cloakroom. The delightful lounge features attractive panelling to one wall and a charming bay window to the front elevation, creating a comfortable and inviting space for relaxation.
The heart of the home is the spacious open plan family dining kitchen, which boasts a stylish and comprehensive range of fitted units, a built-in oven and hob, an integrated dishwasher and fridge freezer. Windows and glazed doors open directly onto the garden, seamlessly blending indoor and outdoor living.
Upstairs, the landing provides access to four well proportioned bedrooms, ensuring ample space for a growing family. The master bedroom benefits from an en-suite shower room, offering a private retreat, while a separate family bathroom serves the remaining bedrooms, all finished to a high standard.
Externally, the property features a full-width driveway providing ample parking for multiple vehicles. The rear garden has been thoughtfully landscaped for ease of maintenance, incorporating a pleasant patio area perfect for outdoor dining and an artificial lawn, ensuring a green space all year round without the upkeep.
We invite you to view our online Home360 virtual tour to fully appreciate the quality and layout of this exceptional family home. Schedule an appointment to view with Alan Cooper Estates today to avoid disappointment.
Our experienced sales team are always on hand to answer any questions you may have and guide you through the buying process.
Reception Hall
Guests Cloakroom
Lounge10' 1" x 17' 6" into the bay
Family Dining Kitchen25' 4" x 9' 9'
Landing
Bedroom 112' 6" x 13' 8"
En-Suite Shower Room
Bedroom 28' 4" x 13' 5"
Bedroom 39' 2" x 12' 2"
Bedroom 48' 8" x 8' 7"
Family Bathroom
Driveway
Garden
Salon7' 9" x 17' 1" into the bay
Separate WC
Local AuthorityNuneaton & Bedworth Borough Council.
Agents NoteWe have not tested any of the electrical, central heating or sanitary ware appliances. Purchasers should make their own investigations as to the workings of the relevant items. Floor plans are for identification purposes only and not to scale. All room measurements and mileages quoted in these sales details are approximate. Subjective comments in these details imply the opinion of the selling Agent at the time these details were prepared. Naturally, the opinions of purchasers may differ. These sales details are produced in good faith to offer a guide only and do not constitute any part of a contract or offer. We would advise that fixtures and fittings included within the sale are confirmed by the purchaser at the point of offer. Images used within these details are under copyright to Alan Cooper Estates and under no circumstances are to be reproduced by a third party without prior permission.

Important Information

  • This is a Freehold property.
  • This Council Tax band for this property is: E

Property Ref: 498493

Share:

Similar Properties

Julius Way, Eaton Place, Nuneaton, CV11 6ZR

4 Bedroom Detached House | Guide Price £400,000

Alan Cooper Estates are delighted to present this superbly appointed double fronted Detached Residence designed to suit...

Corrib Road, Eliot's View, Nuneaton, CV10 0QF

4 Bedroom Detached House | Offers Over £400,000

Here is a superb Detached Residence built by Redrow Homes to a high specification and offering spacious accommodation de...

Sundial Way, St James Gate, Weddington, Nuneaton, CV10 0FU

4 Bedroom Detached House | Offers Over £400,000

A truly stunning three storey double fronted Detached Residence presented in immaculate order throughout with many featu...

Roseway, Stoche Acre, Stoke Golding, CV13 6HQ

4 Bedroom Detached House | Guide Price £415,000

We are delighted to present this superbly appointed 'nearly new' Detached Residence built to a high specification. This...

Wadebridge Drive, Horeston Grange, Nuneaton, CV11 6SY

4 Bedroom Detached House | Guide Price £415,000

Here is a modern Detached Residence offering excellent family accommodation with four bedrooms and a double garage, plea...

Gorse Farm Road, Thornhill, Nuneaton, CV11 6TH

4 Bedroom Detached House | Guide Price £420,000

Discover this substantial Detached Family Residence , perfectly situated in a highly desirable Nuneaton estate, with fou...

Alan Cooper Estates (Nuneaton)

22 Newdegate Street, Nuneaton, Warwickshire, CV11 4EU

024 7634 9336

How much is your home worth?

Use our short form to request a valuation of your property.

Request a Valuation

Mortgage Calculator

Amount Borrowed: £
Total Amount Repayable: £
Total Monthly Payment: £
©2026 The Guild of Property Professionals. All rights reserved. Terms and Conditions | Privacy Policy | Cookie Policy | Complaints Policy | Members Login
The Guild of Property Professionals Trading Address: 121 Park Lane, London W1K 7AG. GPEA Limited. Registered in England & Wales.  Company No: 02819824.  Registered Office Address: 2 St. Stephen's Court, St. Stephen's Road, Bournemouth, Dorset, England, BH2 6LA.  VAT Registration No: 576 8795 61
Book a Property Valuation Update Cookies Preferences