FREEHOLD Shop + Upper floor flat, Queens Road, Watford WD17

Asking Price
£680,000

Not Specified for sale in Watford

  • Freehold Unit : Business unaffected
  • Shop + 3 bedroom Flat
  • Long Lease on Shop (rental income)
  • AST income on Flat with potential to increase

For Sale: Ground Floor Commercial with a 3-bedroom Residential Flat Above

Location: Queens Road, Watford, WD17 2LA

Filey Properties are delighted to present an excellent investment opportunity to the market.

This mixed-use property currently generating a combined rental income of up to £31,560 pa from both the ground floor Commercial and Residential Flat above. Situated in a desirable location by Atria Watford, the property is in close proximity to local amenities, transport links, and is within easy reach of Retail and Leisure facilities.

Leased Ground Floor Unit: Business unaffected

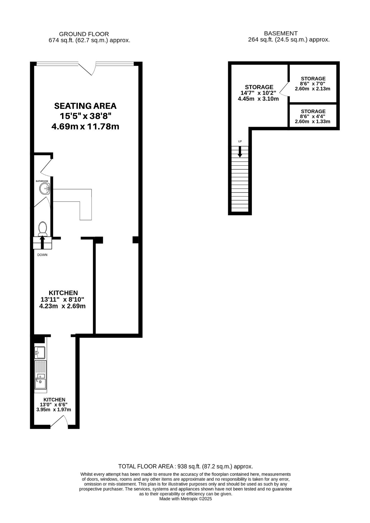
The ground floor commercial, which has a recently renewed interior, possesses a beautiful frontage, generous kitchen with a downstairs basement for stock.

First Floor Flat: 3 bedroom

The 3-bedroom Flat above is well-sized with 2 bedrooms on first floor and 1 bedroom in a loft conversion, has the potential to be rented room by room as studios with HMO. Property offers a private, separated access for the occupiers and brings in a high yield opportunity with strong returns relative to the asking price.

Rental Income Breakdown:

Shop - £1500 pcm / £18,000 pa (15-year lease, recently agreed)

Residential Flat - £1,380 pcm / £13,560 pa

Combined - £31,560, with Potential to Increase

Don’t Miss Out on This Investment Opportunity.

Contact Us Today on to arrange a viewing right away!

Important Information

  • This is a Freehold property.

Property Ref: fps01439

Share:

Similar Properties

Higham Road, Tottenham, N17

3 Bedroom House | Asking Price £675,000

Situated on the sought-after Higham Road, N17, this charming Three-Bedroom Terraced House offers fantastic living space,...

The Vale, Muswell Hill, N10

3 Bedroom End of Terrace House | Asking Price £675,000

We are delighted to offer on the market this attractive End-of-Terrace Three-Bedroom House with a Large Private Driveway...

Hale End Road, Walthamstow, E17

3 Bedroom House | Asking Price £640,000

Filey Properties are delighted to offer on the market this Three Bedroom Terraced House situated in Walthamstow, E17. T...

Anderson Close, Broxbourne, EN10

4 Bedroom House | Asking Price £739,995

Welcome to this beautifully presented Four Bedroom Semi-Detached Family Home, ideally situated within the exclusive Scho...

Kenworthy Road, Hackney, E9

3 Bedroom Semi-Detached House | Asking Price £800,000

Filey Properties are delighted to offer on the market this beautifully presented Three Bedroom End-of-Terrace House in a...

Caldecott Way, Clapton, E5

5 Bedroom End of Terrace House | Asking Price £900,000

This well-presented end-of-terrace Five-Bedroom Townhouse, arranged over Three Storeys, is ideally located on the ever-p...

Filey Properties (Enfield)

78 Lancaster Road, Enfield, London, EN2 0BZ

0203 231 4081

How much is your home worth?

Use our short form to request a valuation of your property.

Request a Valuation

Mortgage Calculator

Amount Borrowed: £
Total Amount Repayable: £
Total Monthly Payment: £
©2026 The Guild of Property Professionals. All rights reserved. Terms and Conditions | Privacy Policy | Cookie Policy | Complaints Policy | Members Login
The Guild of Property Professionals Trading Address: 121 Park Lane, London W1K 7AG. GPEA Limited. Registered in England & Wales.  Company No: 02819824.  Registered Office Address: 2 St. Stephen's Court, St. Stephen's Road, Bournemouth, Dorset, England, BH2 6LA.  VAT Registration No: 576 8795 61
Book a Property Valuation Update Cookies Preferences