King Alfred's Courtyard, Wells

£220,000

2 Bedroom Retirement Property for sale in Wells

2 2 1
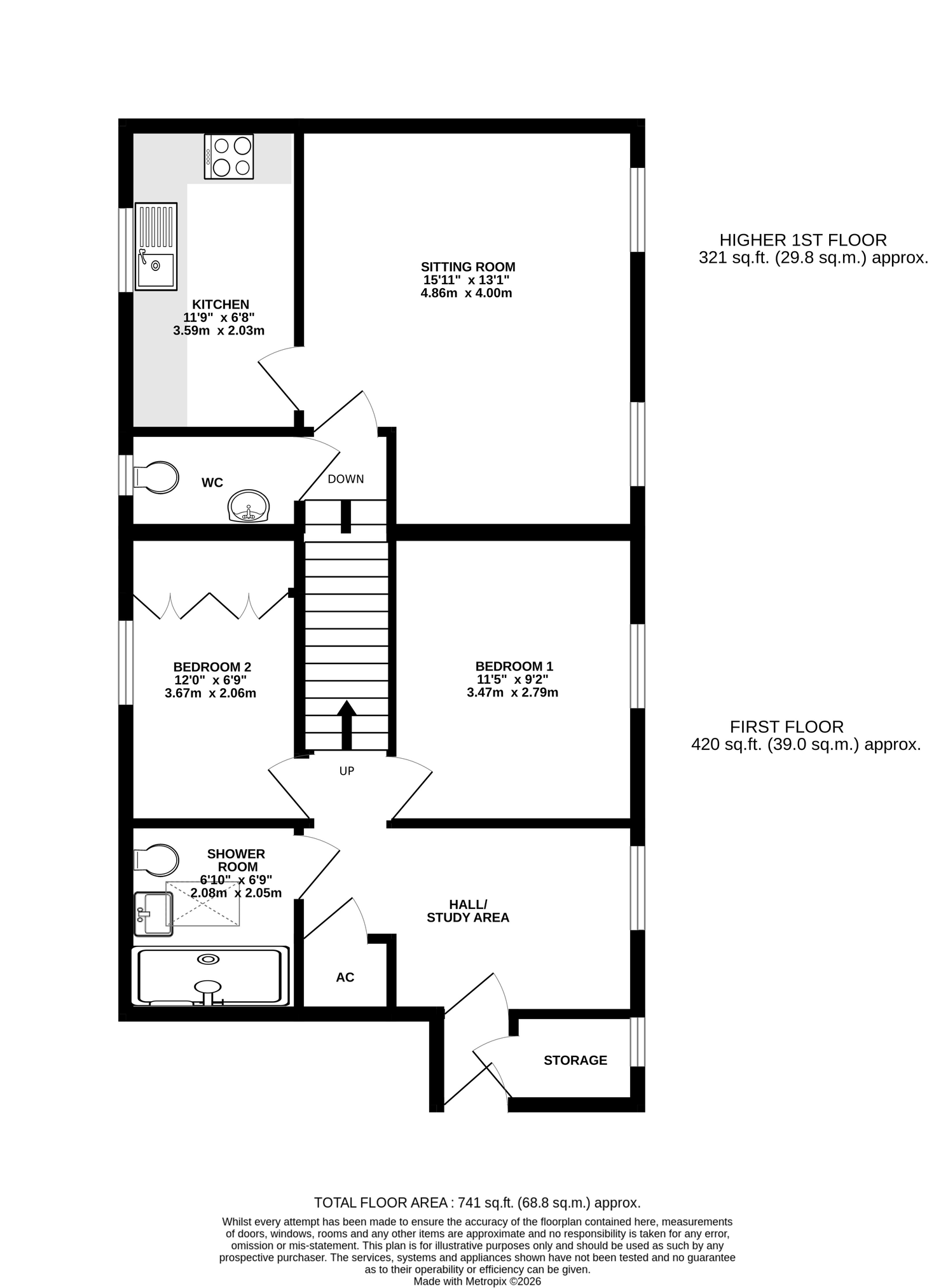
  • The lower level of the apartment provides a welcoming entrance hall featuring a useful study area, a large walk-in storage/cloaks cupboard, plus an airing cupboard.
  • Spacious shower room with walk-in shower, basin with storage cabinet below, WC, wall-mounted heater, heated towel rail and an opening overhead skylight for natural light and ventilation.
  • Two bedrooms (one with fitted double wardrobe)
  • The upper level is accessed by a short straight flight of shallow stairs c/w Stannah stair lift:
  • Bright, sunny L-shaped sitting room with feature electric fire and a recessed dining area. Two windows overlook the communal courtyard.
  • Fitted kitchen with a range of base and wall units plus integrated appliances. A window over the sink provides plenty of natural light.
  • A guest cloakroom with WC and wash basin at the top of the stairs means there’s a loo on both levels!
  • Emergency pull cords are fitted in every room for 24/7 peace of mind.
  • Electric Heating.
  • Intercom access system for visitors.

A spacious split-level apartment for the over 55s within the very heart of
the city, yet very quiet and secure. Set on the first floor and served by a
lift. Communal facilities include a residents’ lounge (see pic bottom right), gardens, residents’
parking (subject to availability) and a pre-bookable guest suite.
No onward chain.

Location
Set just off the end of the High Street in a central yet protected and secure area. Wells is the smallest city in England and offers a vibrant high street with a variety of independent shops and restaurants as well as a twice-weekly market and a choice of four supermarkets including Waitrose. Amenities include a leisure centre, independent cinema and a theatre. Bristol and Bath lie c.22 miles to the north and north-east respectively, each with mainline train stations. Castle Cary station
(c.11 miles away) also provides a regular direct service to London Paddington. Bristol International Airport is c.15 miles to the north-west. Wells bus station is less than 5 minutes’ walk from the property.

Directions
On foot from the offices of Holland & Odam, cross the road and turn left following the High Street towards St. Cuthbert’s church. Turn right into Priest Row where one of the entrances to King Alfreds Courtyard can be found on the right just beyond the two shops.

Material Information

Identity Verification
To ensure full compliance with current legal requirements, all buyers are required to verify their identity and risk status in line with anti-money laundering (AML) regulations before we can formally proceed with the sale. This process includes a series of checks covering identity verification, politically exposed person (PEP) screening, and AML risk assessment for each individual named as a purchaser. In addition, for best practice, we are required to obtain proof of funds and where necessary, to carry out checks on the source of funds being used for the purchase. These checks are mandatory and must be completed regardless of whether the purchase is mortgage-funded, cash, or part of a related transaction. A disbursement of £49 per individual (or £75 per director for limited company purchases) is payable to cover all aspects of this compliance process. This fee represents the full cost of conducting the required checks and verifications. You will receive a secure payment link and full instructions directly from our compliance partner, Guild365, who carry out these checks on our behalf.

Important Information

  • This is a Leasehold property.
  • The annual cost for the ground rent on this property is £678
  • The annual service charges for this property is £6254
  • This Council Tax band for this property is: D

Property Ref: QHK437483

Share:

Similar Properties

Douglas Drive, Shepton Mallet

3 Bedroom Semi-Detached House | £220,000

A semi-detached house set in a good sized, level plot with a range of outbuildings and offered for sale with no onward c...

Lower Chapel Court, South Horrington, Wells, Somerset

2 Bedroom Terraced House | £215,000

A well presented two bedroom terrace house set in the popular area of South Horrington. Comprising two double bedrooms a...

Carlton Court, Wells

1 Bedroom Retirement Property | £215,000

A second floor apartment within a purpose built development for the over 55's served by a lift. Overlooking the Bishops...

Gate Lane, Wells

3 Bedroom Flat | £225,000

A purpose-built property with its own entrance offering stylish accommodation laid out over the first and second floors....

The Cloisters South Street, Wells

2 Bedroom Retirement Property | Offers Over £234,500

A second floor apartment for the over 55's overlooking Wells Recreation Ground from the sitting room and both bedrooms....

Lethbridge Road, Wells

2 Bedroom Bungalow | £235,000

A well presented two bedroom bungalow set towards the end of a quiet cul-de-sac. Benefitting from having a garage and dr...

Holland & Odam (Wells)

Wells, Somerset, BA5 2AE

01749 671020

How much is your home worth?

Use our short form to request a valuation of your property.

Request a Valuation

Mortgage Calculator

Amount Borrowed: £
Total Amount Repayable: £
Total Monthly Payment: £
©2026 The Guild of Property Professionals. All rights reserved. Terms and Conditions | Privacy Policy | Cookie Policy | Complaints Policy | Members Login
The Guild of Property Professionals Trading Address: 121 Park Lane, London W1K 7AG. GPEA Limited. Registered in England & Wales.  Company No: 02819824.  Registered Office Address: 2 St. Stephen's Court, St. Stephen's Road, Bournemouth, Dorset, England, BH2 6LA.  VAT Registration No: 576 8795 61
Book a Property Valuation Update Cookies Preferences