Broadwater Crescent, Welwyn Garden City, AL7

£425,000
SSTC
This property listing is now SSTC

3 Bedroom Terraced House for sale in Welwyn Garden City

2 3 1
  • Three Bedroom Family Home
  • Immaculately Presented Throughout
  • Extended Porch
  • Modern Fitted Kitchen
  • Under-Floor Heating
  • Downstairs W/C
  • Gated front Garden
  • Extended Area To The Rear
  • Walking Distance To Mainline Train Station

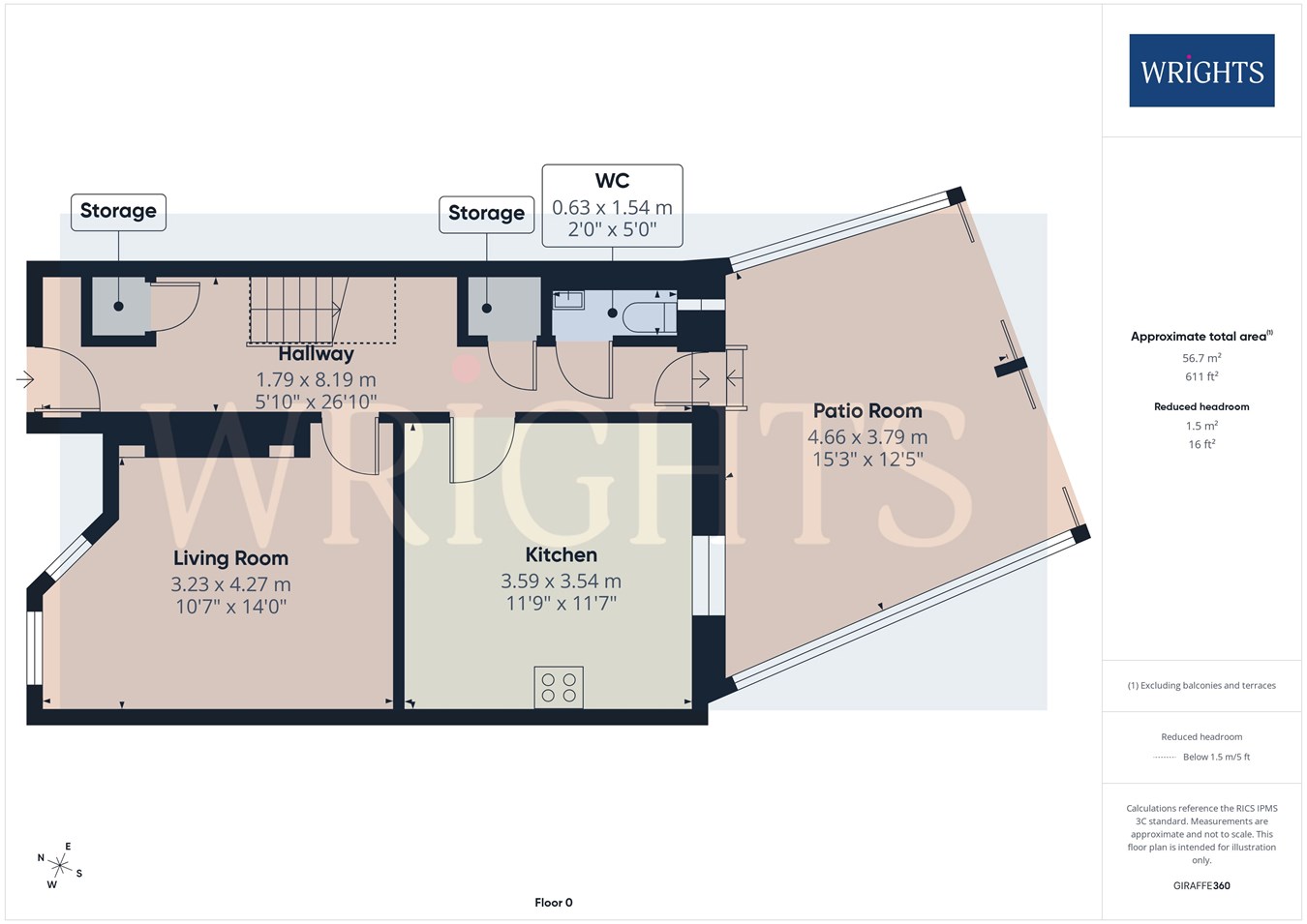
A real credit to it's current owners and beautifully presented throughout, this stunning three-bedroom terraced home has been thoughtfully upgraded and offers stylish, well-designed living space ideal for modern family life. Upon entering the property, you are welcomed by an extended front porch area, providing a practical space for coats and shoes. The entrance hallway benefits from bespoke under-stairs storage and additional cupboards, along with a convenient downstairs W/C. The living room is tastefully decorated and features fitted blinds, a ceiling fan and an attractive media wall, creating a comfortable and contemporary space for relaxing or entertaining. A real highlight of the home is the modern fitted kitchen, finished to a high standard with genuine quartz worktops, integrated NEFF appliances, combining both style and functionality. There is also the added bonus of under floor heating in the kitchen, hallway, porch and cloakroom. Ascending to the first floor, there is a stylishly tiled family bathroom comprising a shower over the bath, wash basin, heated towel rail and W/C. The landing also provides access to a useful storage cupboard. The single bedroom has been cleverly designed with a bed built into the box over the stairs, maximising space, and includes a ceiling fan. The second bedroom is a well-proportioned double with a ceiling fan. The principal bedroom also benefits from a convenient ceiling fan and a television seamlessly built into the wall. The loft has been insulated, boarded and power added for convenient additional storage space.

Externally, the property continues to impress with a fantastic covered patio room, featuring a composite roof with skylights and heavy-duty weatherproof curtains, creating a versatile outdoor space that can be enjoyed throughout the year. There is a laid to lawn, generous shed and gated access to the rear residential parking area (permits required). To the front, the property enjoys an attractive lawned garden with established flower beds and a designated bin storage area, all neatly enclosed by fencing which enhances both privacy and kerb appeal. Viewings are highly recommended.Welcome To Broadwater Crescent
This impressive turn-key family home is one not to miss. From the well maintained front garden, the tone is set for what is to come. The extended front porch offers convenient storage, and this only continues as you continue through the property, with bespoke storage units throughout the hallway. The under-floor heating is something that you can't go without once you experience it. The lounge has fitted blinds and a media wall to keep space to a premium, with the added luxury of a ceiling fan for those warmer days and nights. A real stand out is the modern fitted kitchen with quartz work surfaces and NEFF appliances. The downstairs also has a w/c, alleviating the need for everyone to go upstairs. The first floor offers a single bedroom that has maximised the space in the room by utilizing the box over the stairs, a double bedroom and master bedroom, again with a TV embedded in the wall - All of which have fans in. The tiled family bathroom has a shower over the bath, basin and w/c.
This property is ideally located for local schooling, amenities, the town centre and mainline trains into London, adding to the appeal for up-sizers, commuters or investors.

External
The rear of the property offers a year round space ideal for relaxing or entertaining. The composite roof with skylights offers plenty of natural light, the electric heater offers warmth on those colder days and the large heavy duty weather-proof curtains offer views out to the laid to lawn garden. A spacious shed offers convenient storage and there is the added benefit of gated rear access to a residential parking area. The front garden has well maintained boarders, pathway, lawn and bin area all framed by your private gate and fencing.

About Welwyn Garden City
Welwyn Garden City was founded by Sir Ebenezer Howard in the 1920s and designated a new town in 1948. It was aimed to combine the benefits of the city and countryside. Welwyn Garden City was an escape from life in overcrowded cities to a place of sunshine, leafy lanes, countryside and cafes. Emphasis was placed on the Garden City's healthy environment. Today the town centre is a busy and bustling place with a selection of shops. The Howard Shopping Centre is located in the centre, where you can find a selection of high street favourites including John Lewis. There is also a Waitrose, Sainsburys and ALDI. There is also a quaint cinema, showing the latest films. If you fancy a spot of lunch the town is home to a plethora of coffee shops, independent restaurants and well known chains including the French restaurant Cote which overlooks the fountain and for a real buzzing atmosphere.

Buyer Information
In accordance with the UK's Anti Money Laundering (AML) regulations, we must verify the identity of all potential buyers at the time an offer is accepted. To achieve this, we utilise a third-party Identity Verification System. There is a nominal fee of £35 (per person) inclusive of VAT for this service. Buyers must be made aware of this information prior to having their offer accepted as this will form part of the process of agreeing a sale in a timely manner.

Important Information

  • This is a Freehold property.

Property Ref: 30076872

Share:

Similar Properties

Salmon Close, Welwyn Garden City, AL7

3 Bedroom End of Terrace House | Guide Price £425,000

**CHAIN FREE** Introducing a beautifully presented THREE BEDROOM END TERRACE family home, perfectly situated in the hear...

Great Dell, Welwyn Garden City, AL8

3 Bedroom End of Terrace House | £425,000

Welcome to Great Dell, a charming end terrace family home positioned on an elevated position off Knightsfield. This 1950...

Guessens Road, Welwyn Garden City, AL8

3 Bedroom Terraced House | Offers Over £425,000

**CHAIN FREE WEST SIDE FAMILY HOME AT THE HEART OF THE TOWN CENTRE** This well proportioned and much loved three bedroom...

Knightsfield, Welwyn Garden City, AL8

3 Bedroom Terraced House | £440,000

This freshly decorated three-bedroom family home offers spacious accommodation in the  prime location of AL8 WEST SIDE p...

Upperfield Road, Welwyn Garden City, AL7

3 Bedroom Semi-Detached House | £450,000

Nestling behind its pretty hedgerow and Wrought iron gates is this immaculately presented three bedroom SEMI DETACHED fa...

Daniells, Welwyn Garden City, AL7

3 Bedroom End of Terrace House | £450,000

**CHAIN FREE** This is a delightful opportunity to acquire this extremely well loved family residence in a highly sought...

Wrights Estate Agency (Welwyn Garden City)

36 Stonehills, Welwyn Garden City, Hertfordshire, AL8 6PD

01707 332211

How much is your home worth?

Use our short form to request a valuation of your property.

Request a Valuation

Mortgage Calculator

Amount Borrowed: £
Total Amount Repayable: £
Total Monthly Payment: £
©2026 The Guild of Property Professionals. All rights reserved. Terms and Conditions | Privacy Policy | Cookie Policy | Complaints Policy | Members Login
The Guild of Property Professionals Trading Address: 121 Park Lane, London W1K 7AG. GPEA Limited. Registered in England & Wales.  Company No: 02819824.  Registered Office Address: 2 St. Stephen's Court, St. Stephen's Road, Bournemouth, Dorset, England, BH2 6LA.  VAT Registration No: 576 8795 61
Book a Property Valuation Update Cookies Preferences