West Cliff Road, Dawlish, EX7

£550,000

4 Bedroom Semi-Detached House for sale in West Cliff Road

2 4 2

A rare opportunity to purchase this substantial and individual house located in a well regarded area convenient for the town, beach and coastal paths. The accommodation is light and spacious with much of the original character retained.
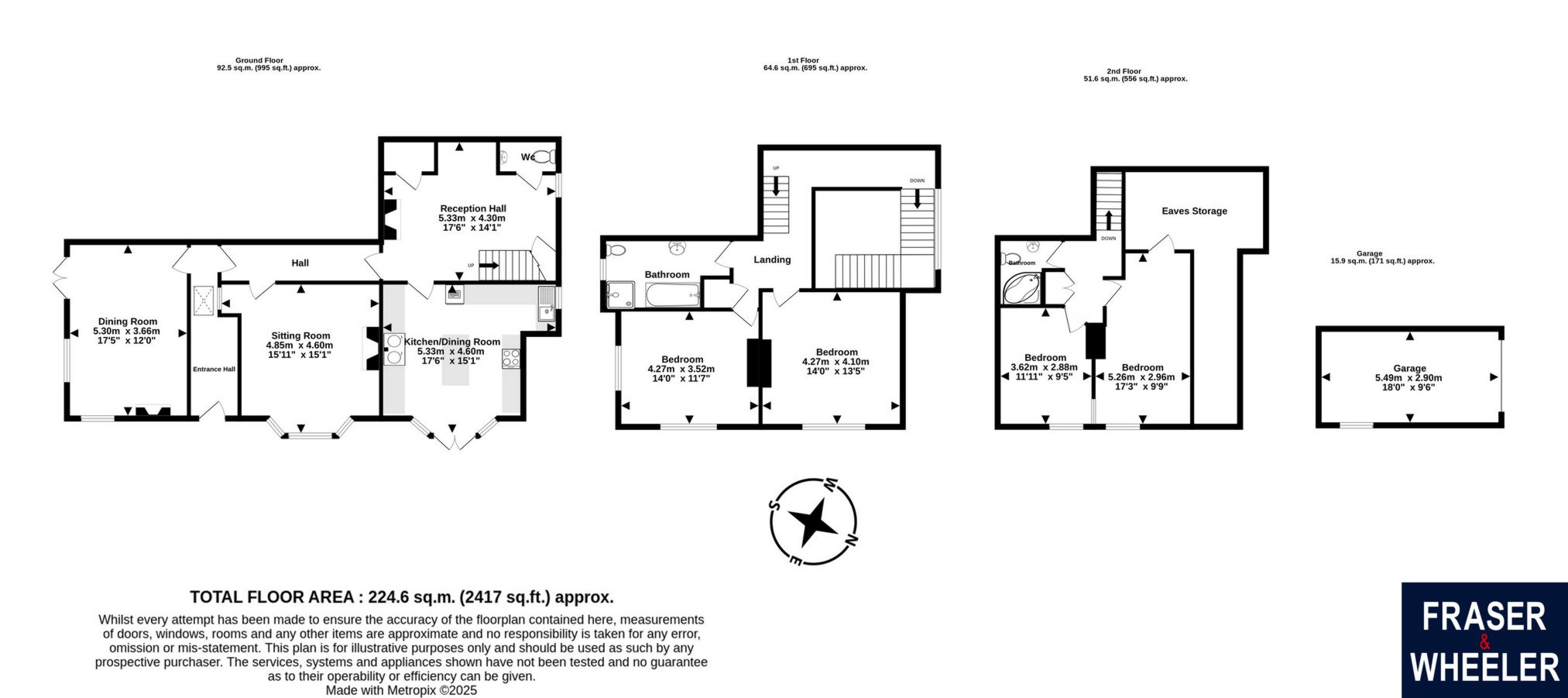
Entrance Hall, Sitting Room, Lounge, Kitchen/Breakfast Room, Cloakroom, Impressive Hall, Galleried Landing, 4 Double Bedrooms, 2 Bathrooms, Large Garden, Parking For Several Vehicles, Garage.
Tenure: Freehold. Council Tax Band: E, EPC - E.

Location: Situated in a well regarded, tree lined road, Penwerris offers easy access to the town centre with its central lawn and brook, and a range of amenities, shops, cafes and pubs all within half a mile. The mainline railway station is a similar distance and regular bus services run just a few yards from the property. The sandy beach at Coryton Cove is only about a quarter of a mile easy walk.

Accommodation: The property forms half of what was originally a large detached house which we believe was built in the 1920’s before being divided to form two properties in the 1950’s. Fortunately much of the original character has been retained with high ceilings and large windows providing a light and spacious feel to this comfortable home. The original grandeur of the property is best illustrated by the impressive hall with its wide staircase leading to a galleried landing and a log burner forms a focal point. This great space can serve for a variety of purposes such as dining, studying or simply lounging.

The property has been sympathetically updated over the years, for example the double glazed windows are set in hardwood frames and the gas central heating is now powered by a range which forms a central feature in the kitchen/breakfast room. In this room French doors open out onto one of the two main areas of garden which is laid to lawn with well stocked borders and most importantly benefits from the best of the morning sun. An additional living room has been added which has been designed to also maximise the light and has French doors opening onto a patio and the other area of garden and there is a further sitting room with bay window and a gas fired coal effect stove is set into a feature fireplace.

On the first floor are two double bedrooms, both enjoying a pleasant outlook and a modern bathroom with shower enclosure and bath.

On the top floor are two further double bedrooms, both of which enjoy glimpses of the sea in the distance, ample storage and a bathroom.

Outside: The gardens are a particular feature with lawns, secluded suntrap seating areas, flower beds and a variety of shrubs and fruit trees.

Parking: There is ample space to park several vehicles and there is also a detached garage.

Measurements

Sitting Room: 15'11" x 15'1" (4.85m x 4.60m)

Dining/Garden Room: 17'5" x 12'0" (5.31m x 3.66m)

Reception/Dining Hall: 17'6" x 14'1" (5.33m x 4.29m)

Kitchen/Dining Room: 17'6" x 15'1" (5.33m x 4.60m)

First Floor

Bedroom 1: 14'0" x 13'5" (4.27m x 4.09m)

Bedroom 2: 14'0" x 11'7" (4.27m x 3.53m)

Bathroom

Second Floor

Bedroom 3: 17'3" x 9'9" (5.26m x 2.97m)

Bedroom 4: 11'11" x 9'5" (3.63m x 2.87m)

Bathroom

Outside

Garage: 18'0" x 9'6" (5.49m x 2.90m)

Important Information

  • This is a Freehold property.

Property Ref: FAW004498

Share:

Similar Properties

Warren Road, Dawlish Warren, EX7

4 Bedroom Detached House | £550,000

This deceptively spacious, charming chalet-style bungalow offers flexible living with multiple reception rooms, a sleek...

Amethyst Drive, Teignmouth, TQ14

4 Bedroom Detached House | £549,950

NO ONWARD CHAIN. A contemporary three storey family home with open views, flexible living space, balcony, garden and int...

Shillingate Close, Dawlish, EX7

4 Bedroom Bungalow | £537,500

Situated in a select cul - de- sac and backing onto a small woodland, this spacious detached bungalow enjoys a fabulous...

South Town, Kenton, EX6

4 Bedroom Detached House | Guide Price £575,000

Barnsfield House is a spacious, detached, 4 bedroom, 2 reception room period house, located on the edge of the extremely...

Staplake Road, Starcross, EX6

4 Bedroom Bungalow | Guide Price £575,000

A substantial and well-proportioned detached bungalow set within a generous and private plot, offering versatile accommo...

Kenbury Crescent, Cockwood, EX6

3 Bedroom Detached House | Guide Price £599,950

Wonderful views of the estuary can be enjoyed from this deceptively spacious 3 double bedroom detached home situated in...

Fraser & Wheeler (Dawlish) (Dawlish)

Dawlish, Devon, EX7 9HB

01626 862379

How much is your home worth?

Use our short form to request a valuation of your property.

Request a Valuation

Mortgage Calculator

Amount Borrowed: £
Total Amount Repayable: £
Total Monthly Payment: £
©2026 The Guild of Property Professionals. All rights reserved. Terms and Conditions | Privacy Policy | Cookie Policy | Complaints Policy | Members Login
The Guild of Property Professionals Trading Address: 121 Park Lane, London W1K 7AG. GPEA Limited. Registered in England & Wales.  Company No: 02819824.  Registered Office Address: 2 St. Stephen's Court, St. Stephen's Road, Bournemouth, Dorset, England, BH2 6LA.  VAT Registration No: 576 8795 61
Book a Property Valuation Update Cookies Preferences