Manor Road, West Ealing, Greater London. W13

£400,000

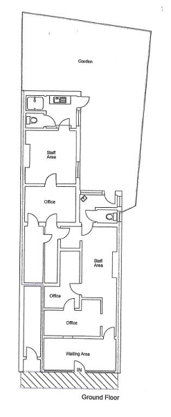
Shop for sale in West Ealing

  • Commercial premises for sale
  • Long lease
  • Currently tenanted
  • Potential for further development stpp
  • Call for more details
  • Prime located for West Ealing station & Cross Rail

Castle Hill Properties are pleased to offer this newly refurbished to a high standard commercial premises. The property is being sold with a long lease and is currently tenanted. The premises is located on the popular tree lined Avenue which includes an array of boutique shops and is within seconds of West Ealing station which will include Cross Rail. For more details, please call our office on 020 8998 1118.

Important Information

  • This is a Leasehold property.

Property Ref: 127654_PRA10880

Share:

Similar Properties

Karoline Gardens, Greenford, London. UB6

2 Bedroom Flat | POA

BRAND NEW 2 bedroom apartment with modern decor & spacious living, ideal for first time buyers. Includes share of freeho...

Umberville Way, Slough

3 Bedroom End of Terrace House | Guide Price £399,995

Guide Price £399,995 - £424,995. Three Bed End Of Terrace, Front & Rear Gardens, Open Plan, Modernised Kitchen & Bathroo...

The Broadway , West Ealing, London. W13

2 Bedroom Flat | £375,000

NEWLY DECORATED 2 bedroom apartment available chain free. Includes bathroom & en-suite shower, private balcony, long lea...

Studland Road, Hanwell, London. W7

2 Bedroom Apartment | Guide Price £415,000

READY TO MOVE IN TO - 2 bedroom apartment with large private garden. Includes balcony, separate newly refurbished kitche...

Studland Road, Hanwell, London. W7

2 Bedroom Flat | £415,000

READY TO MOVE IN TO - 2 bedroom apartment with large private garden. Includes balcony, separate newly refurbished kitche...

Mayfield Gardens, London

3 Bedroom Maisonette | £425,000

AN IDEAL FIRST HOME with this 3 bedroom split level maisonette. The property includes garden with garage, bathroom & ens...

Castle Hill Properties (West Ealing)

West Ealing, London, W13 8JR

020 8998 1118

How much is your home worth?

Use our short form to request a valuation of your property.

Request a Valuation

Mortgage Calculator

Amount Borrowed: £
Total Amount Repayable: £
Total Monthly Payment: £
©2026 The Guild of Property Professionals. All rights reserved. Terms and Conditions | Privacy Policy | Cookie Policy | Complaints Policy | Members Login
The Guild of Property Professionals Trading Address: 121 Park Lane, London W1K 7AG. GPEA Limited. Registered in England & Wales.  Company No: 02819824.  Registered Office Address: 2 St. Stephen's Court, St. Stephen's Road, Bournemouth, Dorset, England, BH2 6LA.  VAT Registration No: 576 8795 61
Book a Property Valuation Update Cookies Preferences