Arlington Road, West Ealing, Greater London. W13

£1,075,000
SSTC
This property listing is now SSTC

5 Bedroom Semi-Detached House for sale in West Ealing

2 5 2
  • 5 bedroom semi detached Victorian house
  • Warm & inviting with retained period features including fireplaces
  • Manicured south facing garden
  • Utility room
  • 2 bathrooms & cloakroom
  • Walking distance to West Ealing & Ealing Broadway stations
  • Perfect family home with mounds of potential
  • Viewings highly recommended

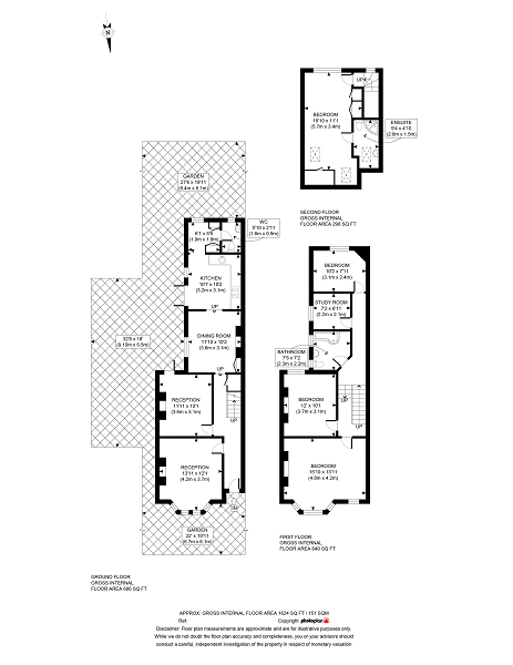
If you are looking for a family home with character, space and within walking distance of train stations, shops & schools, then this is the house for you. We are pleased to offer this substantial 5 bedroom semi-detached Victorian house within the highly desired St Stephens area. The property includes 4 double bedrooms, 1 single bedroom/study, 2 good size reception rooms with fireplace, an open plan dining room/kitchen, utility room, downstairs cloakroom, family bathroom & en-suite. The property also benefits from a well maintained south facing garden with part patio and grass and a lovely front garden. The period features have been well maintained in the property with beautiful fireplaces and original sach windows. The property is walking distance to both West Ealing station & Ealing Broadway station (will be part of Cross rail), local schools & amenities including a Waitrose within easy reach. This house is ideal for a family & viewings are highly recommended and can be arranged by appointment only. Please call us on 020 8998 1118.

Important Information

  • This is a Freehold property.

Property Ref: 127654_PRA10598

Share:

Similar Properties

Brand new 3 bed with 3 private terraces

3 Bedroom Apartment | £1,030,000

Viewings available on this brand new 3 bed apartment with 3 private terraces, 2 bath, private entrance & walking distanc...

The Avenue, London

4 Bedroom Not Specified | POA

***INVESTMENT OPPORTUNITY*** - commercial with residential unit above. There is potential for conversion into 3-4 apartm...

Brand new & largest 2 bed - The Mall, Ealing

2 Bedroom Apartment | £950,000

Brand new 947 sqft 2-bedroom apartment in Ealing Broadway with floor-to-ceiling windows, a balcony with city views, and...

North Town Moor, Maidenhead

4 Bedroom Detached House | Offers in region of £1,225,000

Fantastic opportunity for an end user looking to run a business, includes additional land to the side for parking or an...

The Avenue, West Ealing, London. W13

4 Bedroom Terraced House | £1,250,000

INVESTMENT OPPORTUNITY - commercial & potential for conversion into 3-4 apartments above (stpp). The property is ideally...

The Avenue, West Ealing, London. W13

4 Bedroom Terraced House | £1,250,000

INVESTMENT OPPORTUNITY - potential for conversion into 3-4 apartments (stpp). The property is ideally located in the hea...

Castle Hill Properties (West Ealing)

West Ealing, London, W13 8JR

020 8998 1118

How much is your home worth?

Use our short form to request a valuation of your property.

Request a Valuation

Mortgage Calculator

Amount Borrowed: £
Total Amount Repayable: £
Total Monthly Payment: £
©2026 The Guild of Property Professionals. All rights reserved. Terms and Conditions | Privacy Policy | Cookie Policy | Complaints Policy | Members Login
The Guild of Property Professionals Trading Address: 121 Park Lane, London W1K 7AG. GPEA Limited. Registered in England & Wales.  Company No: 02819824.  Registered Office Address: 2 St. Stephen's Court, St. Stephen's Road, Bournemouth, Dorset, England, BH2 6LA.  VAT Registration No: 576 8795 61
Book a Property Valuation Update Cookies Preferences