Park Way, West Molesey

Guide Price
£975,000

3 Bedroom Semi-Detached House for sale in West Molesey

3 3 2
  • East / West Molesey Border
  • Generous Front & Rear Garden
  • Near Hurst Meadows & River Thames
  • Three Reception Rooms | Period Fireplaces
  • Three Bedrooms | Plus Loft Room
  • Extensive Driveway Parking
  • Two bathrooms (incl. D/S Shower Room)
  • Double Garage + Utility Room
  • Extended Family Home / Flexible Accommodation
  • Modernised Condition | Scope to Extend

An attractive bay fronted semi-detached family home with delightful gardens front and rear, driveway parking for three / four cars, in addition to a large attached garage including a recessed workspace and storage.

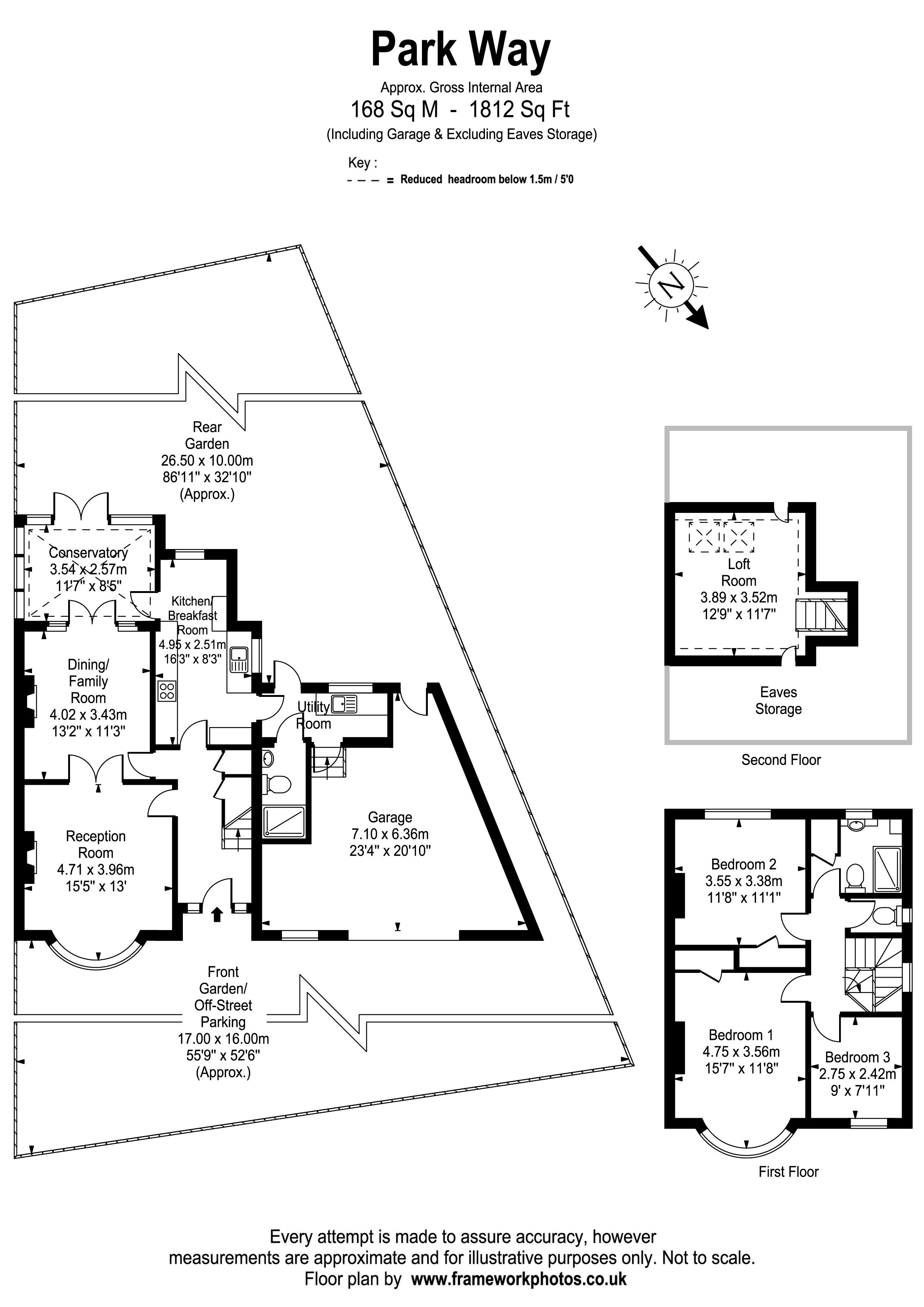
Occupying an expansive corner position – Park Way with Hurst Lane – this property enjoys a lovely open and leafy outlook with views towards Hurst Meadows.  This traditional family home already affords plenty of flexible space due to various additions over the years and now provide a generous overall floor area of 168 sqm, over 1,800 sq ft (inc. garage and loft room).  However, there is further scope to extend or remodel if necessary, subject to the usual consents being obtained.  

Internally, the property has been updated by the current owners to include a lovely new kitchen/breakfast room and main family bathroom, updated wiring, and various redecorations.   These works have enhanced the many period features on display such as stripped and varnished floorboards, panel doors, dado and picture rails, as well as distinctive French style fireplaces to the two main living rooms. 

The accommodation comprises storm porch with hardwood front door having stained and leaded glass windows, leading to a good size entrance hall with under-stairs storage cupboards. There are two large independent reception rooms separated by interconnecting double doors: the front room with a 'five pane' bay window and a middle reception room, currently set up as a dining/family room, opens to a playroom which, in turn, opens to the garden.  The kitchen has a small breakfast room extension and a side door leading to a useful utility room with internal access to the garage, and also a separate downstairs shower room.  

Upstairs provides three bedrooms (two doubles and a good single), refitted family bathroom with toilet and separate W.C. next door.  From the landing are fixed timber steps leading to an incredibly useful loft room with twin Velux windows. Most of the external doors and windows are double glazed, and gas central heating is operated by a Baxi Boiler (installed 2018/19).    

Externally, the gardens are beautifully established, planted with a variety of specimen plants, trees and shrubs. The front garden has a well-maintained lawn with central pathway whilst the paved driveway provides ample private off-road parking behind double gates. The double size garage with electric 'up-and-over' door provides roof/void storage. There is also a recessed area with workbench and rear door to garden. The back garden has a large side / rear patio, central lawn with a further raised hard-landscaped terrace to the rear, sheltered by a lovely Persian silk tree, and there are also two Acer trees.

Location:  Located within easy reach of East Molesey's main High Street (Walton Road), Hampton Court Railway Station and Village.  The Thames towpath is a short walk away and travels past the cricket, rowing/sailing clubs and Molesey Lock, down to Historic Hampton Court Bridge, and Palace.   The area has an abundance of local amenities, enjoys superb schooling options as well as many open acres of parkland found in Hurst Park – just across the road (see aerial shots), two royal parks (Bushy Park and Home Park) and Molesey Heath nature reserve.   The former Pavilion sports club (soon to be David Lloyd Leisure & Spa) is a short stroll away and The Hurst Pool is also nearby. 

Important Information

  • This is a Freehold property.

Property Ref: M&B1295

Share:

Similar Properties

Clinton Avenue, East Molesey

3 Bedroom House | Guide Price £975,000

A traditional bay fronted semi-detached family home situated in a quiet and peaceful cul-de-sac yet with easy access to...

Dennis Road, East Molesey

3 Bedroom House | Guide Price £975,000

A superb semi-detached Victorian villa situated in a highly regarded East Molesey Village side road, extensively refurbi...

Feltham Avenue, East Molesey

4 Bedroom Ground Floor Flat | Guide Price £950,000

A rare opportunity to purchase a duplex freehold property in a prime central Hampton Court location with views over Mole...

Quinton Road, Thames Ditton

3 Bedroom House | Asking Price £985,000

Miles & Bird are delighted to offer to the market a brand new semi-detached house in a cul-de-sac location near Giggs Hi...

Wick Road, Teddington

4 Bedroom House | Guide Price £985,000

A tastefully refurbished four bedroom, two bathroom, Victorian property situated in much requested Teddington enclave wi...

Dudley Road, Walton-On-Thames

4 Bedroom House | Guide Price £995,000

A traditional gable and bay fronted, detached family home positioned at the end of no through road within a highly covet...

Miles & Bird (East Molesey)

East Molesey, Surrey, KT8 9HA

020 3875 3875

How much is your home worth?

Use our short form to request a valuation of your property.

Request a Valuation

Mortgage Calculator

Amount Borrowed: £
Total Amount Repayable: £
Total Monthly Payment: £
©2026 The Guild of Property Professionals. All rights reserved. Terms and Conditions | Privacy Policy | Cookie Policy | Complaints Policy | Members Login
The Guild of Property Professionals Trading Address: 121 Park Lane, London W1K 7AG. GPEA Limited. Registered in England & Wales.  Company No: 02819824.  Registered Office Address: 2 St. Stephen's Court, St. Stephen's Road, Bournemouth, Dorset, England, BH2 6LA.  VAT Registration No: 576 8795 61
Book a Property Valuation Update Cookies Preferences