Station Road, Angmering, West Sussex, BN16

£700,000
SSTC
This property listing is now SSTC

4 Bedroom Detached House for sale in West Sussex

4
  • Characterful Detached Residence
  • Fantastic Plot with Impressive Frontage
  • Four Double Bedrooms
  • Two Reception Rooms
  • Fitted Kitchen & Utility Room
  • Main Bathroom & Cloakroom
  • Single Garage
  • EPC D. Council Tax Band F

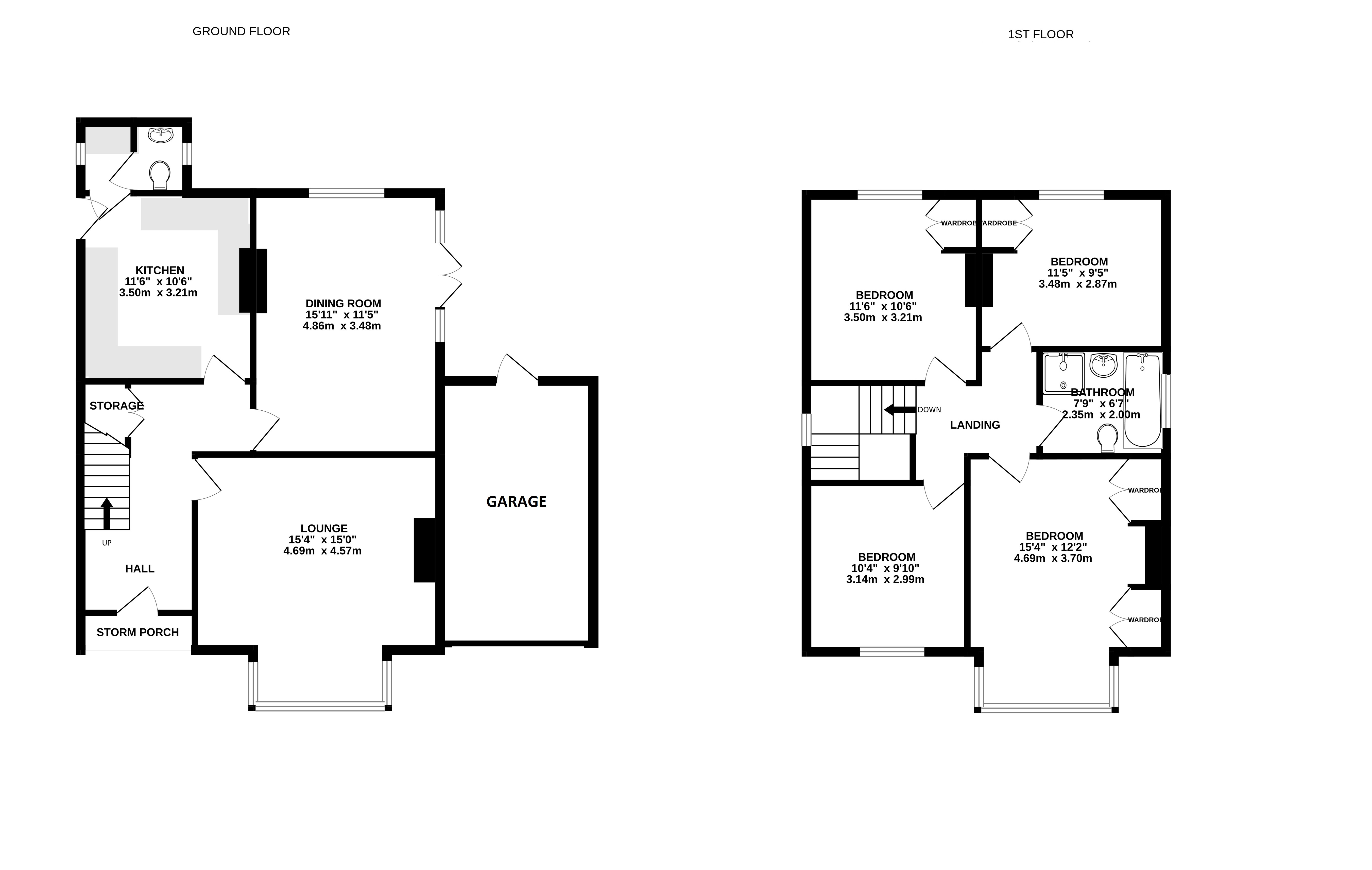
This FOUR BEDROOM DETACHED residence is very privately situated, and beyond its gated entrance enjoys a generous and secluded plot. An impressive driveway leads to the house which comprises two receptions rooms, a fitted kitchen with separate utility, a ground floor cloakroom, four well-appointed bedrooms and a family bathroom. As well as the single garage to the side, there is plenty of scope to extend or develop the property, or perhaps the possibility for double garaging to the front of the plot, all subject to any usual permissions. Viewing is highly advised.

Prepare to be impressed by this handsome detached property that is ideally situated behind a gated entrance!

Accommodation begins with a welcoming entrance hall, leading to two principle reception rooms; currently a living room with feature fireplace and a dining room to the rear. A fitted kitchen provides ample storage and work surface space and there is a separate utility room and cloakroom too.

On the first floor are four excellent bedrooms - all capable of being double rooms - which share a family bathroom that boasts a separate shower cubicle.

An impeccably presented frontage is mostly laid to lawn with three and shrub borders with an extensive, approach driveway that provides parking for several vehicles as well as a driveway to the side of the property. A secluded rear garden again is mostly lawn with patio seating.

Important Information

  • This is a Freehold property.

Property Ref: ANG190200

Share:

Similar Properties

Oakwood Drive, Bramley Green, Angmering, West Sussex, BN16

6 Bedroom Detached House | £700,000

Graham Butt Estate Agents are delighted to offer this SIX BEDROOM detached farmhouse style property, available to the ma...

Eyebright, Angmering, West Sussex, BN16

4 Bedroom Detached House | £685,000

** HOME AVAILABLE ** Introducing Meadow Gate, the brand new bespoke Cul de Sac private housing development by award-winn...

Eyebright Lane, Angmering, West Sussex, BN16

4 Bedroom Detached House | £685,000

** HOME AVAILABLE ** Introducing Meadow Gate, the brand new bespoke Cul de Sac private housing development by award-winn...

Bramley Way, Angmering, West Sussex, BN16

6 Bedroom Detached House | £730,000

We are thrilled to bring this Berkeley built executive 'Farmhouse' property to the market which boasts a sensational SIX...

Eyebright Lane, Angmering, West Sussex, BN16

4 Bedroom Detached House | £745,000

Stylish & Spacious 4/5 Bedroom Home in Exclusive Private Cul-de-Sac. Set within a bespoke private cul-de-sac, this Roffe...

North Drive, Angmering, West Sussex, BN16

3 Bedroom Detached House | £765,000

Charming three bedroom detached chalet located on the ever-popular North Drive in Angmering, this attractive three-bedro...

Graham Butt Estate Agents (Angmering)

Square, Angmering, West Sussex, BN16 4EA

01903 778877

How much is your home worth?

Use our short form to request a valuation of your property.

Request a Valuation

Mortgage Calculator

Amount Borrowed: £
Total Amount Repayable: £
Total Monthly Payment: £
©2026 The Guild of Property Professionals. All rights reserved. Terms and Conditions | Privacy Policy | Cookie Policy | Complaints Policy | Members Login
The Guild of Property Professionals Trading Address: 121 Park Lane, London W1K 7AG. GPEA Limited. Registered in England & Wales.  Company No: 02819824.  Registered Office Address: 2 St. Stephen's Court, St. Stephen's Road, Bournemouth, Dorset, England, BH2 6LA.  VAT Registration No: 576 8795 61
Book a Property Valuation Update Cookies Preferences