Norfolk Gardens, Littlehampton, West Sussex, BN17

£285,000
SSTC
This property listing is now SSTC

3 Bedroom Terraced House for sale in West Sussex

3
  • Three Bedroom Terraced Home
  • Vendor Suited
  • West Facing Low Maintenance Rear Garden
  • Gas Central Heating | Double Glazed Windows
  • Ground Floor Cloakroom | Parque Flooring
  • Rental Value Approx. £1300 Per Month

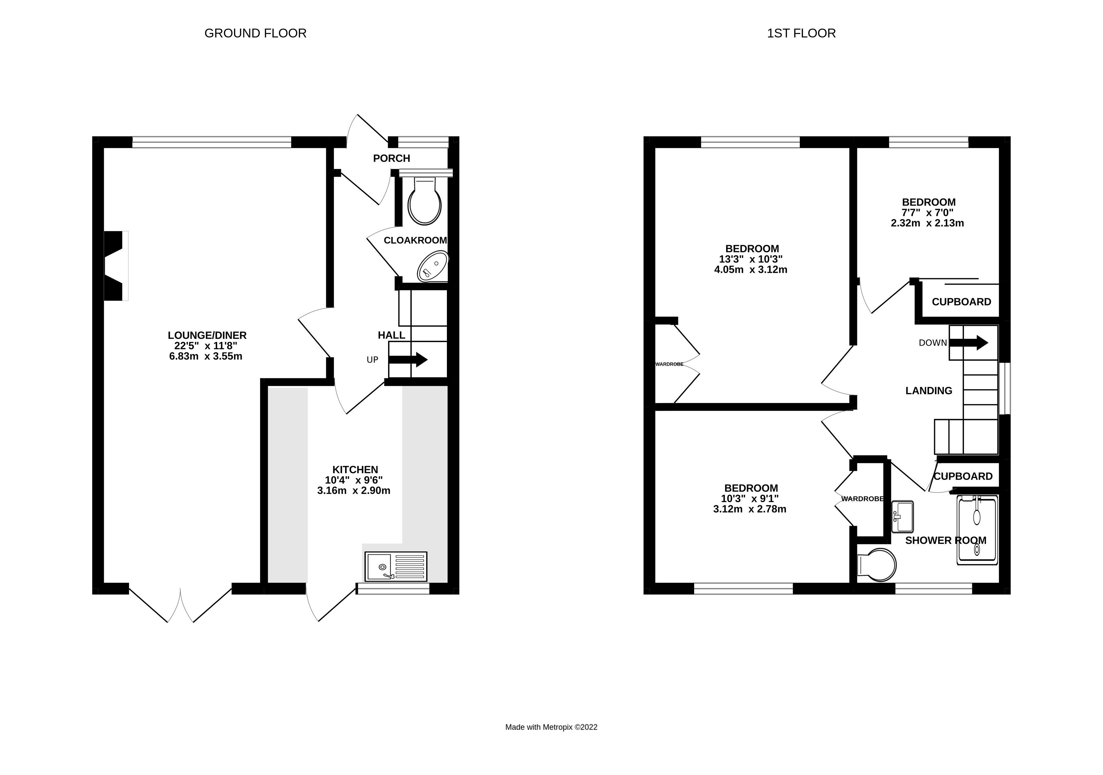
This spacious three bedroom terraced home is perfectly situated overlooking beautifully maintained communal gardens and is well presented throughout! The property boasts spacious accommodation and a low maintenance WEST FACING PRIVATE REAR GARDEN featuring a large storage shed/workshop with power and lighting. Other key features include a spacious dual aspect living/dining room with restored Parque flooring and double patio doors opening up onto the rear garden. The modern fitted kitchen is a great size and also allows access out into the garden. Upstairs provides three good sized bedrooms, all offering built in storage, and the modern shower room features a walk in shower, hand basin and WC. The property is double glazed with gas central heating throughout. Viewing is highly recommended to avoid missing out on this gem!

Littlehampton is a coastal gem sheltered by the South Downs. Situated at the mouth of the picturesque River Arun, it is a charmingly individual seaside town with a distinctive maritime character. Over the past few years the town has had a revamp and is now challenging Brighton, Shoreham, Hove, Worthing and Chichester as "the place to live".

Littlehampton offers a choice of beaches. There is East Beach with its long promenade, parklands, funfair and traditional seaside fun or the unspoiled grassy sand dunes of West Beach. The River Arun divides Littlehampton’s East and West beaches with its harbour and marina. Together, the river and sea offer a range of pursuits from boating trips to deep sea fishing, scuba diving, water skiing and sailing. Other attractions include a golf course, theatre, sports centre, museum and the distinctive and award winning East Beach Café, whilst Harbour Park, an all-weather adventure village, offers family fun for all ages.

This property is situated within a short walk from Littlehampton's superb beaches and recreational facilities and the town centre with its many amenities which include a mainline station to Gatwick Airport and London Victoria, doctors, dentists, primary and junior schools and the Littlehampton Academy.

Important Information

  • This is a Freehold property.

Property Ref: LIT220371

Share:

Similar Properties

York Road, Littlehampton, West Sussex, BN17

2 Bedroom Terraced House | £285,000

This spacious Edwardian two bedroom terraced house is offered to the market in superb decorative order throughout, perfe...

Granville Road, Littlehampton, West Sussex, BN17

3 Bedroom Apartment | Offers in excess of £280,000

Offered to the market with no onward chain and a share of the freehold, this beautifully presented two/three bedroom gro...

Northway Road, Littlehampton, West Sussex, BN17

3 Bedroom Semi-Detached House | £279,950

NO ONWARD CHAIN! Situated in a sought-after location, this spacious three-bedroom semi-detached home offers fantastic po...

Constable Gardens, Littlehampton, West Sussex, BN17

2 Bedroom Terraced House | £289,950

Step into this beautifully presented two double bedroom terraced home, perfect for first-time buyers, downsizers, or inv...

Clun Road, Wick, Littlehampton, West Sussex, BN17

2 Bedroom Terraced House | £289,950

A MUST SEE! This spacious two-bedroom terraced home is a fantastic opportunity for first-time buyers, downsizers, or sav...

Gloucester Place, Littlehampton, West Sussex, BN17

3 Bedroom Terraced House | £289,950

Perfectly positioned within easy walking distance of Littlehampton’s town centre and mainline railway station; with dire...

Graham Butt Estate Agents (Littlehampton)

75 High Street, Littlehampton, West Sussex, BN17 5AG

01903 717177

How much is your home worth?

Use our short form to request a valuation of your property.

Request a Valuation

Mortgage Calculator

Amount Borrowed: £
Total Amount Repayable: £
Total Monthly Payment: £
©2026 The Guild of Property Professionals. All rights reserved. Terms and Conditions | Privacy Policy | Cookie Policy | Complaints Policy | Members Login
The Guild of Property Professionals Trading Address: 121 Park Lane, London W1K 7AG. GPEA Limited. Registered in England & Wales.  Company No: 02819824.  Registered Office Address: 2 St. Stephen's Court, St. Stephen's Road, Bournemouth, Dorset, England, BH2 6LA.  VAT Registration No: 576 8795 61
Book a Property Valuation Update Cookies Preferences