Eagles Chase, Littlehampton, West Sussex, BN17

Offers in excess of
£220,000

1 Bedroom End of Terrace House for sale in West Sussex

1
  • End Terraced Freehold House
  • One Double Bedroom
  • Private Driveway (Up To 3 Cars)
  • Popular Bird Estate
  • Private Rear/Side Garden | Side Access
  • Rental Value Approx. £900-£1000pcm

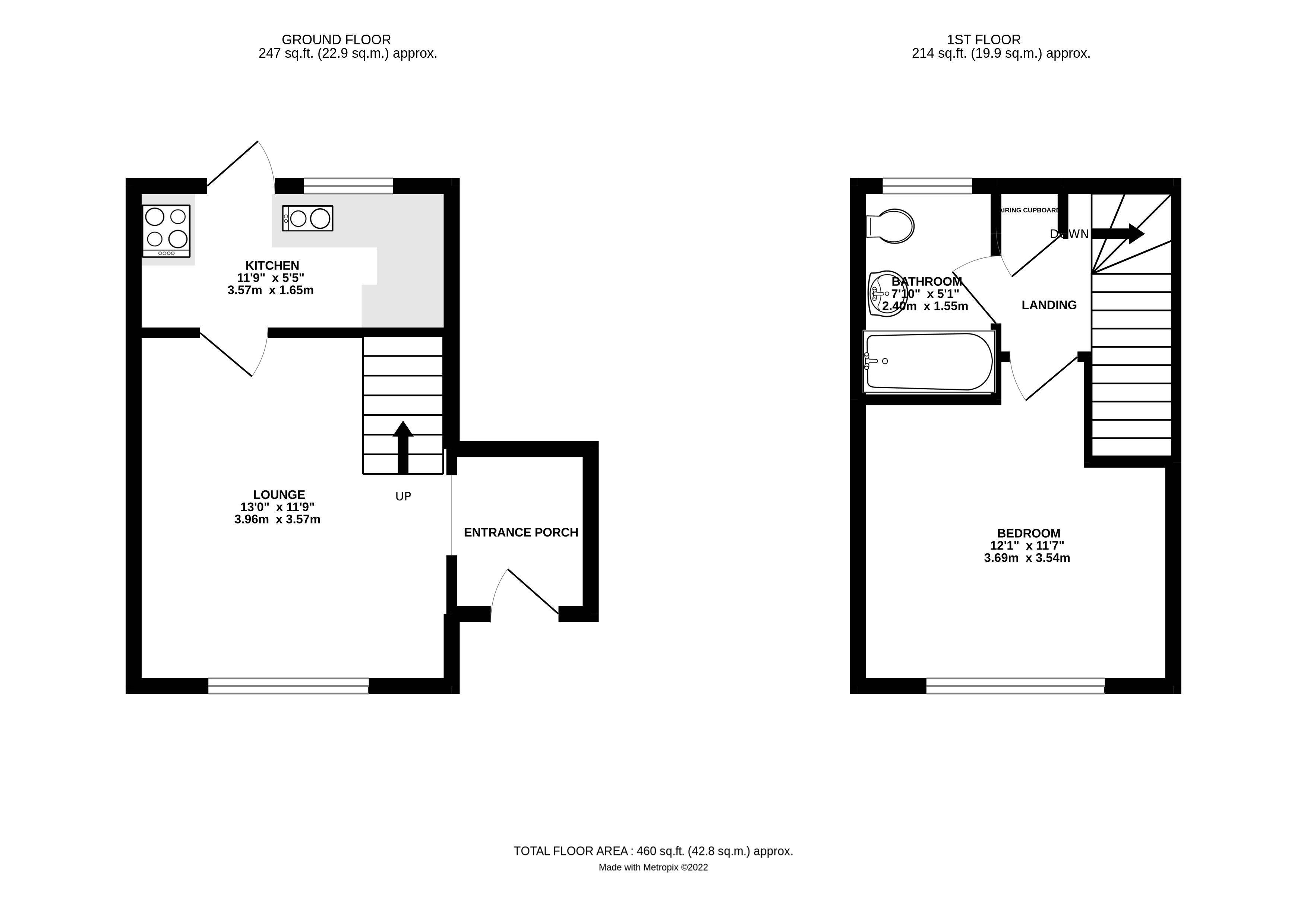
A fantastic opportunity to step onto the property ladder with this beautifully presented one double bedroom end-of-terrace home, complete with a private driveway directly outside and a wonderfully private, low-maintenance rear/side garden. Bright, spacious and ready to move straight into, the property offers a welcoming entrance hall leading to a generous lounge; perfectly sized for relaxing or entertaining, with ample room for a small dining table. The modern re-fitted kitchen sits to the rear and opens directly onto the garden, creating an easy flow between indoor and outdoor living. The landscaped garden has been thoughtfully designed for minimal upkeep, featuring seating areas ideal for morning coffee or evening unwinding, along with a useful storage shed and convenient side access. Upstairs, you’ll find a well-proportioned double bedroom and a modern bathroom fitted with a bath and shower above, hand basin and WC. Ideal for first-time buyers, downsizers or investors alike, this charming home combines comfort, convenience and outdoor space; a rare find at this level. Early viewing is highly recommended!

Littlehampton is a coastal gem sheltered by the South Downs. Situated at the mouth of the picturesque River Arun, it is a charmingly individual seaside town with a distinctive maritime character. Over the past few years the town has had a revamp and is now challenging Brighton, Shoreham, Hove, Worthing and Chichester as "the place to live".

Littlehampton offers a choice of beaches. There is East Beach with its long promenade, parklands, funfair and traditional seaside fun or the unspoiled grassy sand dunes of West Beach. The River Arun divides Littlehampton’s East and West beaches with its harbour and marina. Together, the river and sea offer a range of pursuits from boating trips to deep sea fishing, scuba diving, water skiing and sailing. Other attractions include a golf course, theatre, sports centre, museum and the distinctive and award winning East Beach Café, whilst Harbour Park, an all-weather adventure village, offers family fun for all ages.   
This property is situated within a short walk from Littlehampton's superb beaches and recreational facilities and the town centre with its many amenities which include a mainline station to Gatwick Airport and London Victoria, doctors, dentists, primary and junior schools and the Littlehampton Academy.

The sand dunes and West Beach form part of a Site of Special Scientific Interest (SSSI), extending towards Climping village. This protected area is home to one of only three sand dune systems in West Sussex, alongside a shingle beach, a rare habitat in the UK. The soft muds and sands provide a vital food source for wintering birds, while fossil hunters may even uncover hidden treasures along the shore. On clear days, the stunning coastal views stretch as far as Bognor and the Isle of Wight, making this a truly unique and picturesque natural landscape.

Important Information

  • This is a Freehold property.

Property Ref: LIT240158

Share:

Similar Properties

Hampton Court, River Road, Littlehampton, West Sussex, BN17

2 Bedroom Terraced House | Offers in excess of £215,000

A fantastic opportunity to purchase this FREEHOLD two bedroom 'cottage style' terraced house, located in Hampton Court,...

Blackbourne Chase, Littlehampton, West Sussex, BN17

2 Bedroom Apartment | £210,000

This beautifully presented and generously sized two double bedroom first-floor apartment is ideally positioned within th...

Blackbourne Chase, Littlehampton, West Sussex, BN17

2 Bedroom Apartment | £210,000

Located on the ever popular Kingley Gate development, this exceptionally BRIGHT AND SPACIOUS two bedroom first floor fla...

Nursery Gardens, Wick, Littlehampton, West Sussex, BN17

3 Bedroom Terraced House | £225,000

Tucked away in a quiet cul-de-sac, this generously proportioned three-bedroom home offers both comfort and convenience,...

Benjamin Gray Drive, Littlehampton, West Sussex, BN17

2 Bedroom Apartment | £230,000

This well presented two double bedroom first floor apartment is offered to the market with the benefit of having NO ONWA...

The Swallows, St. Catherines Road, Littlehampton, West Sussex, BN17

2 Bedroom Apartment | £230,000

NO ONWARD CHAIN! Just a short stroll from the beach, town centre, and mainline train station, this bright and spacious t...

Graham Butt Estate Agents (Littlehampton)

75 High Street, Littlehampton, West Sussex, BN17 5AG

01903 717177

How much is your home worth?

Use our short form to request a valuation of your property.

Request a Valuation

Mortgage Calculator

Amount Borrowed: £
Total Amount Repayable: £
Total Monthly Payment: £
©2026 The Guild of Property Professionals. All rights reserved. Terms and Conditions | Privacy Policy | Cookie Policy | Complaints Policy | Members Login
The Guild of Property Professionals Trading Address: 121 Park Lane, London W1K 7AG. GPEA Limited. Registered in England & Wales.  Company No: 02819824.  Registered Office Address: 2 St. Stephen's Court, St. Stephen's Road, Bournemouth, Dorset, England, BH2 6LA.  VAT Registration No: 576 8795 61
Book a Property Valuation Update Cookies Preferences