Hill House, Defence Close, West Thamesmead, SE28

£225,000

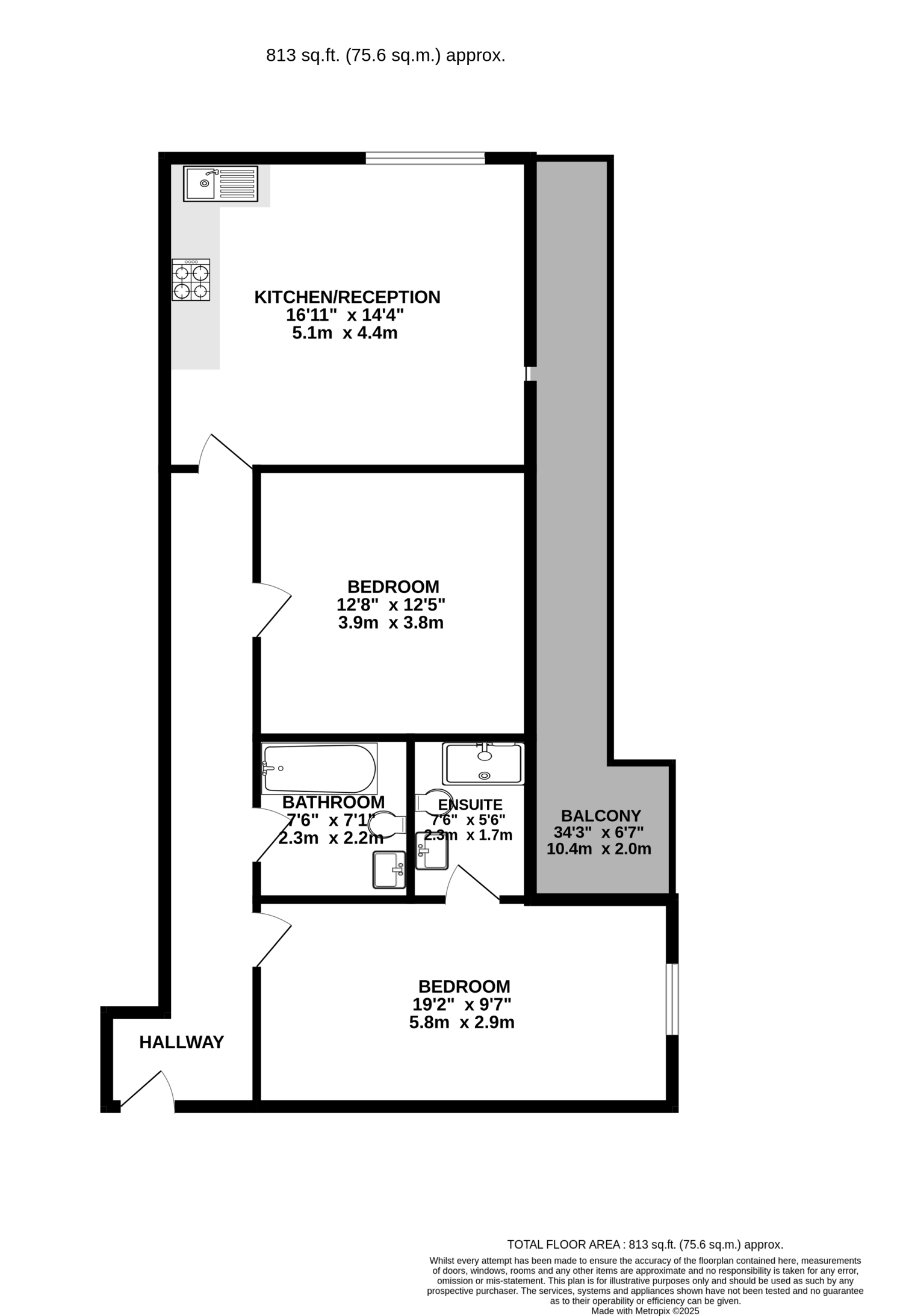
2 Bedroom Apartment for sale in West Thamesmead

1 2 2
  • Penthouse Apartment
  • COMPLIANT EWS1 FORM!
  • 5th Floor
  • Two Double Bedrooms
  • Two Bathrooms
  • Large Balcony
  • Great Views
  • Off Street Parking

A beautifully presented two bedroom, two bathroom penthouse apartment, ideally positioned within the sought-after Hill House development on Defence Close, West Thamesmead, SE28.
Occupying an enviable top-floor position, this impressive penthouse offers bright, spacious accommodation finished to a good standard throughout. The property features a generous open-plan reception room, flooded with natural light and seamlessly connecting to a modern, fully fitted kitchen with integrated appliances — perfect for both everyday living and entertaining.
The principal bedroom benefits from fitted wardrobes and a contemporary en-suite shower room, while the second double bedroom is equally well-proportioned and serviced by a stylish family bathroom. Both bathrooms are finished with sleek, modern fittings.
Further highlights include storage, quality flooring, and access to well-maintained communal areas. Residents enjoy the peace of a modern development while remaining conveniently close to local amenities, riverside walks, and transport links, offering easy access into Canary Wharf and central London

Property Ref: 10623517

Share:

Similar Properties

Herbert Road, Plumstead, SE18 3PP

2 Bedroom Flat | £225,000

We are excited to present this delightful two-bedroom flat, ideally located on the top floor and spanning two levels, of...

40A, The Oval, Sidcup, DA15

2 Bedroom Bungalow | £225,000

Asking Price £225,000.CASH BUYERS ONLYNestled in the esteemed area of The Oval in Sidcup, this unique two-bedroom detach...

Fantail Close, Thamesmead, SE28

2 Bedroom Ground Floor Flat | £225,000

We are acting in the sale of the above property and have received an offer of £210,000 on the above property.

Manorside Close, Abbey Wood, SE2

1 Bedroom Maisonette | £229,995

**1 Bedroom 1st Floor Maisonette for Sale in Abbey Wood, SE2**This charming 1-bedroom maisonette, located on the 1st flo...

Wellington Street, Woolwich, SE18 6QB

1 Bedroom Flat | £230,000

This recently refurbished one-bedroom ex-local flat is set on the first floor on Wellington Street, in the heart of Wool...

Mineral Street, Plumstead, London, SE18 1 QR

1 Bedroom Flat | £230,000

This well-proportioned one-bedroom first-floor flat is ideally situated just off Plumstead High Street, benefiting from...

hi-residential (Plumstead)

Plumstead, London, SE18 3TN

020 8316 6616

How much is your home worth?

Use our short form to request a valuation of your property.

Request a Valuation

Mortgage Calculator

Amount Borrowed: £
Total Amount Repayable: £
Total Monthly Payment: £
©2026 The Guild of Property Professionals. All rights reserved. Terms and Conditions | Privacy Policy | Cookie Policy | Complaints Policy | Members Login
The Guild of Property Professionals Trading Address: 121 Park Lane, London W1K 7AG. GPEA Limited. Registered in England & Wales.  Company No: 02819824.  Registered Office Address: 2 St. Stephen's Court, St. Stephen's Road, Bournemouth, Dorset, England, BH2 6LA.  VAT Registration No: 576 8795 61
Book a Property Valuation Update Cookies Preferences