Suffolk Road Westbury

Guide Price
£475,000

5 Bedroom Detached House for sale in Westbury

3 5 3
  • Five bedrooms, two with en-suites
  • Spacious living accommodation over three floors
  • Two reception rooms plus study and conservatory
  • Private, enclosed garden
  • Driveway parking and garage
  • Close to local schools, shops, and transport links
  • Excellent potential to update and personalise

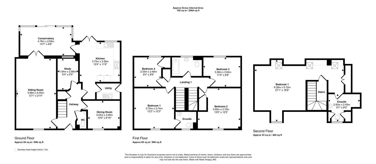
Positioned on the sought-after Leigh Park development, this substantial detached home offers a generous amount of space arranged over three floors, making it ideal for a growing family. While the property would benefit from some updating, it presents a wonderful opportunity to create a stylish, modern home tailored to your own tastes.

The ground floor is well laid out, featuring a welcoming hallway, two reception rooms, a separate study, and a bright conservatory overlooking the garden. The kitchen includes a useful utility room and there is also a downstairs WC.

On the first floor, you’ll find four bedrooms, including a spacious double with ensuite, plus a family bathroom. The top floor is entirely dedicated to an impressive principal bedroom suite, with a large en-suite bathroom and plenty of storage space.

Outside, the enclosed rear garden offers a safe and private space for children or pets, with side access leading to the driveway, with ample parking and the double garage.

This is a great chance to secure a generously proportioned family home in a prime location

Westbury is a thriving and well-connected market town nestled in the heart of Wiltshire, offering excellent access to Warminster, Salisbury, Frome, and Bath via the A36. The town is home to a selection of well-regarded schools, including Westbury Infants, Westbury Church of England Junior School, and Matravers Secondary School.
Surrounded by beautiful countryside, Westbury is perfect for outdoor enthusiasts, with scenic walks and cycle routes on the doorstep. From panoramic views across the iconic White Horse to peaceful rambles through Clanger Woods, the area offers something for everyone. The renowned Longleat Estate is also just eight miles away.

Westbury benefits from superb rail connections, with direct services to Bath, London Paddington, Cardiff, Portsmouth, and Swindon from the town’s railway station. At the heart of the town lies the historic 14th-century All Saints Church, surrounded by a range of independent shops, cafés, and a weekly farmers' market.

Everyday amenities are well catered for, with Aldi, Tesco Express, Lidl, and Morrisons all within easy reach. For sports and leisure, residents can enjoy the facilities at Leighton Recreation Centre, the local swimming pool, and several well-equipped gyms.

Important Information

  • This is a Freehold property.
  • This Council Tax band for this property is: F
  • EPC Rating is C

Property Ref: DDW_DDW250249

Share:

Similar Properties

Wellhead Lane Westbury

3 Bedroom Detached House | Offers in excess of £475,000

Charming detached 3-bedroom home in a wonderful peaceful location. Bright, spacious, and stylish interiors with a landsc...

Ethendun Bratton

4 Bedroom Detached House | Asking Price £465,000

A wonderful four bedroom modern detached home in the heart of the popular village of Bratton. *No onward chain*

Mays Drive Westbury

4 Bedroom Detached House | Offers in excess of £450,000

A spacious detached family home occupying a prime position in this coveted development, presented in show home condition...

Bury Mead Codford St Peter

4 Bedroom Detached House | Offers Over £485,000

A wonderful four bedroom detached family home in the sought after village of Codford St Peter. A superb opportunity for...

Fell Road Westbury

5 Bedroom Detached House | Offers in excess of £485,000

A substantial and attractive double fronted detached family home situated in this desirable location, close to local ame...

Callaway Gardens Westbury

4 Bedroom Detached House | Offers in excess of £490,000

A spacious luxury detached family home which revels in this superb position backing onto open countryside, part of this...

Davies & Davies (Westbury)

Westbury, Wiltshire, BA13 3BW

01373 859 944

How much is your home worth?

Use our short form to request a valuation of your property.

Request a Valuation

Mortgage Calculator

Amount Borrowed: £
Total Amount Repayable: £
Total Monthly Payment: £
©2025 The Guild of Property Professionals. All rights reserved. Terms and Conditions | Privacy Policy | Cookie Policy | Complaints Policy | Members Login
The Guild of Property Professionals Trading Address: 121 Park Lane, London W1K 7AG. GPEA Limited. Registered in England & Wales.  Company No: 02819824.  Registered Office Address: 2 St. Stephen's Court, St. Stephen's Road, Bournemouth, Dorset, England, BH2 6LA.  VAT Registration No: 576 8795 61
Book a Property Valuation Update Cookies Preferences