Primmers Place, Westbury

Offers in excess of
£250,000

3 Bedroom Terraced House for sale in Westbury

1 3 2
  • SPACIOUS THREE BEDROOM TERRACE HOME A VERY SHORT WALK TO WESTBURY TRAIN STATION AND WESTBURY SAILING LAKE LOCATED IN A QUIET CUL DE SAC TWO ALLOCATED PARKING SPACES A PLAYGROUND AND GREENERY PE...

Located in a sought-after residential area, this modern townhouse offers a perfect blend of style and comfort and is ideal as a first time purchase, investment or those looking for more space.

Boasting three bedrooms, this property exudes a homely atmosphere with its contemporary design and spacious layout. Located in a quiet Cul de sac a very short walk to Westbury train station.

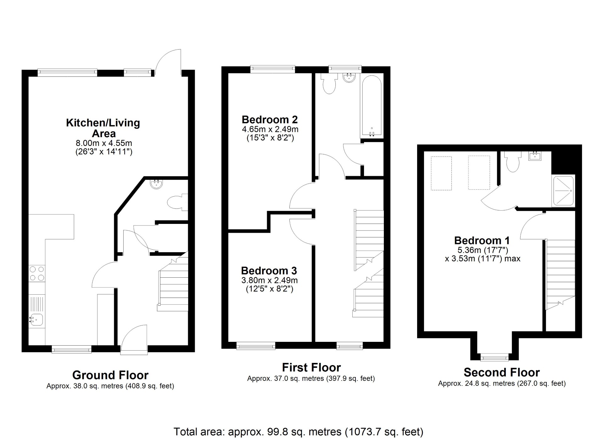
As you enter the property you are greeted by a bright and airy hallway leading into a wonderful open plan kitchen/living/dining room with dual aspect windows, a breakfast bar and a rear door leading out to your garden. This room is the hub of the home and is perfect for entertaining guests or family evenings together. A convenient cloakroom concludes the ground floor. The first floor continues to impress with two spacious double bedrooms. A family bathroom with large airing cupboard completes the first floor. The second floor is a magnificent principal bedroom with ensuite shower room.

Externally the property boasts a low maintenance garden ideal for summer BBQs. A gate to the rear provides access to two allocated parking spaces. Located a very short walk to Westbury Sailing Lake for dog walkers to enjoy local footpaths and easy access to the train station and schools means this property is a must see.

Westbury is a vibrant and popular market town located in the heart of Wiltshire which provides excellent access to Warminster, Salisbury, Frome and Bath via the A36. The town is well served with several respected Schools, Westbury Infants, Westbury Church Of England Junior and Matravers Secondary. Residents are able to take full advantage of the gorgeous countryside that surrounds the town, with some beautiful walks and cycle rides nearby, not to mention Longleat which is 8 miles distant, so whether it be a stroll to enjoy the vista across the White Horse and beyond or perhaps a ramble in Clanger Woods this has it all. Superb rail links are on hand courtesy of Westbury Railway Station which is less than a mile away, offering a direct line to Bath, London Paddington, Cardiff, Bristol, Portsmouth, Swindon and, of course, not forgetting Cornwall. The historic 14th century All Saints Church is located off the main square and you will find a number of independent shops and cafe's to enjoy along with a Farmers Market which meets on a weekly basis. The town has three large supermarkets with Aldi, Lidl and Morrisons to choose from. On the sports and leisure side there is Leighton Recreation Centre a local swimming pool and several gyms where you can work up a sweat.

Important Information

  • This is a Freehold property.
  • EPC Rating is C

Property Ref: DDW260088

Share:

Similar Properties

Timor Road, Westbury

3 Bedroom End of Terrace House | Offers Over £250,000

A brilliant three bedroom end of terrace home advertised with no onward chain, parking and located in a fantastic reside...

Kendrick Close, Westbury

3 Bedroom Semi-Detached House | Offers in excess of £250,000

A three bedroom semi detached home in a quiet cul de sac. Perfect for first time buyers or those looking for more space.

Chalfield Close, Warminster

3 Bedroom End of Terrace House | Guide Price £245,000

This well proportioned three bedroom end-terraced family home located in peaceful cul-de-sac location, is very well-pres...

Grenadier Close, Warminster

3 Bedroom Terraced House | Offers in excess of £255,000

A wonderful three bedroom home in the heart of Warminster located in a quiet cul de sac with driveway parking and a well...

The Crescent, Westbury

3 Bedroom Semi-Detached House | Offers in excess of £255,000

A newly refurbished three bedroom semi detached home with parking for multiple cars, south facing garden and spacious op...

Priory Cottages, Stradbrook

2 Bedroom End of Terrace House | Offers in excess of £260,000

Charming Grade II Listed Cottage with Countryside Views - sought after location.

Davies & Davies (Westbury)

Westbury, Wiltshire, BA13 3BW

01373 859 944

How much is your home worth?

Use our short form to request a valuation of your property.

Request a Valuation

Mortgage Calculator

Amount Borrowed: £
Total Amount Repayable: £
Total Monthly Payment: £
©2026 The Guild of Property Professionals. All rights reserved. Terms and Conditions | Privacy Policy | Cookie Policy | Complaints Policy | Members Login
The Guild of Property Professionals Trading Address: 121 Park Lane, London W1K 7AG. GPEA Limited. Registered in England & Wales.  Company No: 02819824.  Registered Office Address: 2 St. Stephen's Court, St. Stephen's Road, Bournemouth, Dorset, England, BH2 6LA.  VAT Registration No: 576 8795 61
Book a Property Valuation Update Cookies Preferences