Wetherby, Chatsworth Drive, LS22

£675,000
SSTC
This property listing is now SSTC

4 Bedroom Detached House for sale in Wetherby

3 4 2
  • Skilfully extended detached family home
  • Three reception rooms
  • Two bedrooms to first floor with house bathroom
  • Two bedrooms to ground floor with shower room
  • Stunning L-Shaped kitchen diner with integrated appliances
  • Driveway parking and integral garage
  • Generous sized rear garden with stone flagged patio seating
  • Established gardens to front and rear
  • Excellent location

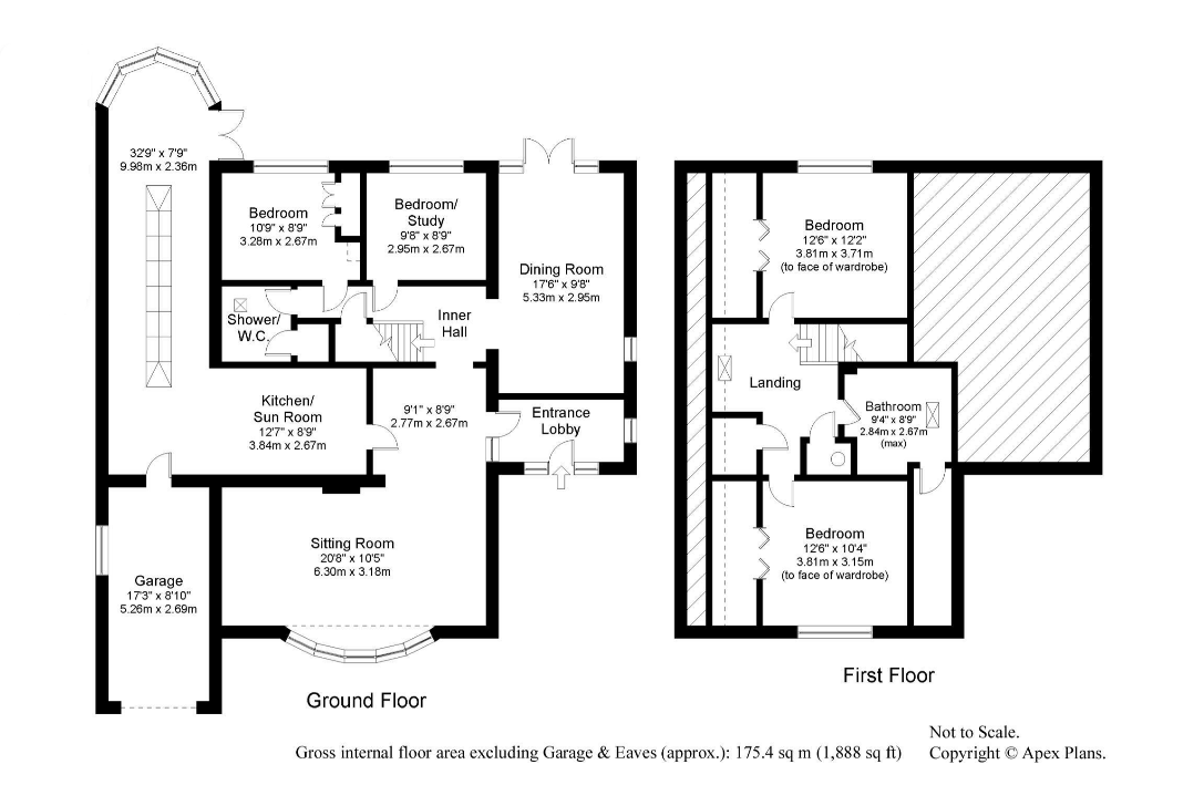
An impressive and skilfully extended four bedroom detached home occupying a choice position with generous sized private gardens to rear situated upon this popular residential development off Spofforth Hill 

Situated in a sought-after residential location set back from Spofforth Hill, this tastefully extended property offers impressive and well presented living accommodation in excess of  approx. 1888 sq ft.

Entering through a double-glazed front door into a welcoming entrance porch, internal doors open into a bright and spacious L-shaped living room. A feature bay window to the front floods the space with natural light, while a stylish fireplace with black marble hearth, timber surround, and inset gas fire creates a charming focal point.

Extended to the left hand side, a truly stunning 'L-shaped' kitchen, dining, and family space forms the heart of the home. Complemented with a a striking lantern-style ceiling window, curved double-glazed windows, and French doors opening onto the rear garden, this area enjoys an abundance of natural light throughout the day.

The contemporary kitchen is fitted with a sleek range of handle-less wall and base units, work surfaces with matching upstands and tiled splashbacks. High-specification integrated appliances include a double electric oven with grill function, integrated microwave, five-ring gas hob with extractor above, under-counter dishwasher, washing machine, and wine fridge. There is also a designated recess to accommodate an American-style fridge freezer. Wide-board laminate flooring flows seamlessly from the kitchen and breakfast bar into the family seating area and benefits from underfloor heating.

An open archway leads from the inner hallway to an extended reception room, currently used as formal dining room. Enjoying a charming double-glazed porthole window to the side and French style patio doors opening onto the attractive rear garden. 

The ground floor further benefits from a guest bedroom with aspect over the rear garden, and a fourth bedroom/study offering flexible accommodation. These bedrooms are served by a modern ground floor shower room.

To the first floor, the landing gives access to two deep storage cupboards—one housing the insulated hot water tank with shelving above—as well as a useful recess used as home office space. A loft access hatch opens to a partially boarded attic space providing additional storage.

The house bathroom is of generous proportions and features a modern four-piece suite comprising low flush w.c., vanity wash basin with cupboard storage, panelled bath, and large step-in shower cubicle. Further access is available to deep eaves storage.

The principal bedroom is a generous double room with fitted eaves storage wardrobes and a large double-glazed window enjoying elevated views over the rear garden and beyond. A second spacious double bedroom is situated to the front of the property, with a double-glazed window and sliding doors leading to extensive eaves storage.

Externally, a tarmac driveway provides ample off-road parking and leads to an integral garage, fitted with an electric up-and-over door, lighting, power, sink unit and wall-mounted Ideal Logic gas-fired central heating boiler. 

The front garden is neatly landscaped, set largely to lawn with established borders behind a low stone wall. The rear garden is a particular highlight, boasting a generous lawn, established flower beds stocked with mature shrubs, flowering bushes, and fruit trees. A stone-flagged patio offers the perfect spot for outdoor entertaining and alfresco dining during warmer months. Timber fencing provides privacy, and a timber shed offers useful outdoor storage.

Important Information

  • This is a Freehold property.
  • This Council Tax band for this property is: E

Property Ref: 634392

Share:

Similar Properties

Boston Spa, Fountains Avenue, LS23

4 Bedroom Detached House | £675,000

An extended four bedroom two bathroom detached house providing excellent family accommodation ideally located on this po...

Boston Spa, Westwood Way, LS23

3 Bedroom Detached House | £675,000

An outstanding stone-built detached residence, originally designed as a four-bedroom home and now reconfigured to provid...

Wetherby ~ Ezart Avenue, LS22

4 Bedroom Detached House | Guide Price £675,000

A contemporary and beautifully presented four bedroom, two bathroom, detached family home located on the highly sought a...

Shadwell, Ash Hill Gardens, LS17

4 Bedroom Detached House | £680,000

Enjoying a choice corner plot, this beautifully presented and extended four bedroomed detached family home reveals light...

Little Ribston, Near Wetherby, Wetherby Road, LS22

4 Bedroom Detached House | Guide Price £699,500

Built in 2021 to a high specification, this impressive four bedroom detached home offers a perfect blend of contemporary...

Bardsey, Mill Lane, LS17

4 Bedroom Detached House | £699,950

An infrequent opportunity to purchase a sizeable four bedroom detached family home on this desirable lane boasting gener...

Renton & Parr (Wetherby)

Wetherby, West Yorkshire, LS22 6LN

01937 582731

How much is your home worth?

Use our short form to request a valuation of your property.

Request a Valuation

Mortgage Calculator

Amount Borrowed: £
Total Amount Repayable: £
Total Monthly Payment: £
©2026 The Guild of Property Professionals. All rights reserved. Terms and Conditions | Privacy Policy | Cookie Policy | Complaints Policy | Members Login
The Guild of Property Professionals Trading Address: 121 Park Lane, London W1K 7AG. GPEA Limited. Registered in England & Wales.  Company No: 02819824.  Registered Office Address: 2 St. Stephen's Court, St. Stephen's Road, Bournemouth, Dorset, England, BH2 6LA.  VAT Registration No: 576 8795 61
Book a Property Valuation Update Cookies Preferences