Deborah Close, Whitstable

£315,000
SSTC
This property listing is now SSTC

2 Bedroom Semi-Detached Bungalow for sale in Whitstable

2 1
  • * WATCH OUR VIDEO WALK THROUGH TOUR *
  • Semi-Detached Bungalow
  • Two Double Bedrooms
  • Lounge/Diner Opening to Kitchen
  • Modern Fitted Bathroom
  • Large Detached Garage
  • 45ft Rear Garden
  • No Upward Chain
  • Popular Location
  • Early Viewing Recommended

No upward chain with this good size semi-detached bungalow offering light and airy accommodation. The property incorporates spacious entrance hall giving access to all room plus door to rear garden, two double bedrooms, lounge/diner opening to kitchen and a good size modern fitted bathroom. There are gardens to front and rear plus generous sized shared driveway providing access to a large detached garage. The property is conveniently situated with Tesco's superstore being about 525 yards away. Bus services to the harbour town of Whitstable (approx. 0.8 mile) and the Cathedral City of Canterbury (approx. 6.2 miles) are available in Millstrood Road about 525 yards with Whitstable mainline railway station about a mile away.

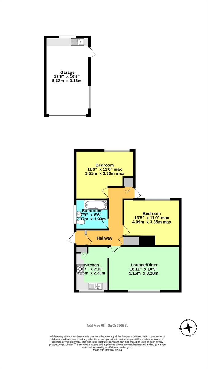
Enclosed Porch   
Double glazed UPVC front entrance door to enclosed porch.

Entrance Hall   
Partially glazed painted wood front entrance door. Radiator. Thermostat control for central heating. Access via loft ladder to insulated and partly boarded loft with light. Linen cupboard with shelves. Cupboard housing Worcester combination gas boiler supplying hot water and central heating. Double glazed door to rear garden.

Lounge/Diner   16' 11 x 10' 9 (5.16m x 3.28m)
Window to front overlooking garden. Radiator. Opening to kitchen.

Kitchen   10' 7 x 7' 10 (3.23m x 2.39m)
Matching range of wall and base units. Inset single drainer stainless steel 1½ bowl sink unit. Work surfaces. Partially tiled walls. Inset gas hob with stainless steel extractor cooker hood above and built-in fan assisted oven below. Plumbing for washing machine. Window to front overlooking garden. Radiator. Downlighters. Larder cupboard with light.

Bedroom 1   13' 5 x 11' 0 into recess (4.09m x 3.36m)
Window to rear overlooking garden. Radiator.

Bedroom 2   11' 6 x 11' 0 max (3.51m x 3.36m)
Window to rear overlooking garden. Radiator.

Bathroom   7' 9 x 6' 6 (2.37m x 1.99m)
Suite in white comprising panelled shower bath with mixer tap, separate shower unit over bath with screen to side, wash hand basin set into vanity unit with cupboard and WC with concealed cistern. Chrome heated towel rail. Frosted window to side. Downlighters. Tiled floor. Extractor fan.

Front Garden   
Border wall to front. Mainly laid to gravel with raised beds with shrubs. Generous sized shared driveway leading to garage.

Garage   18' 5 x 10' 5 (5.62m x 3.18m)
Garage with power and light. Double glazed window to side and rear. Personal door to rear garden.

Rear Garden   22' 0 x 45' 0 (6.71m x 13.72m)
Mainly laid to lawn with two paved patio areas. Gated pedestrian side access. Enclosed with fencing.

Main Services
The following mains services are connected to the property electricity, water, gas, drainage and a telephone line. All services will be subject to the appropriate companies transfer conditions.

Heating
Central heating is provided by a gas fired boiler situated in the hall way cupboard and hot water radiators as indicated in these particulars.

Windows
The windows are generally of UPVC double glazed units.

Tenure
The property is to be sold Freehold with vacant possession.

Council Tax
We are advised by the Valuation Office that the property is currently within Council Tax Band C. The amount payable under tax band C for the year 2024/2025 is £1,952.69.

Viewing
Please ring us to make an appointment. We are open from 9am to 6pm Monday to Friday, 9am to 5pm Saturdays and by appointment only on Sundays.

Agent Notes
Kent Estate Agencies gives notice for themselves and for the sellers of the property, whose agents they are that any floor plans, plans or mapping and measurements are approximate quoted in metric with imperial equivalents. All are for general guidance only and whilst every attempt has been made to ensure accuracy, they must not be relied on. The measurements are provided in accordance with the R.I.C.S. Code of Measuring Practice 6th edition.
We have not carried out a structural survey and the services, appliances and specific fittings have not been tested and therefore no guarantee can be given that they are in working order. Photographs are reproduced for general information and it must not be inferred that any item shown is included with the property. Prospective purchasers or lessees should seek their own professional advice. Kent Estate Agencies retain the copyright in all advertising material used to market this property.
No person in the employment of Kent Estate Agencies has any authority to make any representation or warranty whatever in relation to this property. Purchase prices, rents or other prices quoted are correct at the date of publication and, unless otherwise stated, exclusive of VAT.
For a free valuation of your property contact the number on this brochure. Printed 10th February 2025

Important Information

  • This is a Freehold property.

Property Ref: 57384_75DAA7

Share:

Similar Properties

Millstrood Road, Whitstable

2 Bedroom Semi-Detached Bungalow | £315,000

This semi-detached bungalow, situated on a generously sized and established plot, boasts a westerly-facing rear garden....

Favourite Road, Whitstable

2 Bedroom Semi-Detached House | £275,000

Situated on the desirable outskirts of Whitstable, this well-presented end-terrace house offers an excellent opportunity...

Victoria Place, Faversham

1 Bedroom Terraced House | Guide Price £250,000

Nestled in the heart of Faversham's historic town centre, this delightful one-bedroom terrace house is brimming with pot...

Golden Hill, Whitstable

3 Bedroom Terraced House | £325,000

Nestled in a sought-after location, this beautifully extended three-bedroom mid-terrace home offers a perfect blend of m...

Linnet Avenue, Whitstable

3 Bedroom Semi-Detached House | £339,995

A well-presented semi-detached house with no onward chain and estuary views. Occupying an elevated position in a sought-...

Harbour Street, Whitstable

3 Bedroom Terraced House | £350,000

Situated in a sought after town centre location, this period mid-terrace house offers convenience and ample living space...

Kent Estate Agencies (Whitstable)

High Street, Whitstable, Kent, CT5 1BQ

01227 213101

How much is your home worth?

Use our short form to request a valuation of your property.

Request a Valuation

Mortgage Calculator

Amount Borrowed: £
Total Amount Repayable: £
Total Monthly Payment: £
©2025 The Guild of Property Professionals. All rights reserved. Terms and Conditions | Privacy Policy | Cookie Policy | Complaints Policy | Members Login
The Guild of Property Professionals Trading Address: 121 Park Lane, London W1K 7AG. GPEA Limited. Registered in England & Wales.  Company No: 02819824.  Registered Office Address: 2 St. Stephen's Court, St. Stephen's Road, Bournemouth, Dorset, England, BH2 6LA.  VAT Registration No: 576 8795 61
Book a Property Valuation Update Cookies Preferences