Joy Lane, Whitstable

Offers in excess of
£720,000
Under Offer
This property listing is now Under Offer

4 Bedroom Detached House for sale in Whitstable

4 2
  • Sought After Location
  • Substantial Detached Passive Home
  • Four Double Bedrooms
  • En-Suite Shower Room & Modern Bathroom
  • Mature Private & Secluded Rear Garden
  • Potential for Further Expansion (STPP)
  • Solar Panels & Air Source Heat Pump
  • Off-Road Parking & Integral Garage
  • Close to Whitstable Town Centre
  • No Forward Chain

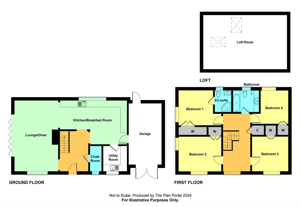
The Oak House, a substantial detached passive home, offers an unparalleled blend of eco-friendly living and modern comfort. Boasting four generously proportioned double bedrooms, this residence provides ample space for family living or hosting guests. On entering the home you are greeted by the large entrance with its feature welsh oak beams. The thoughtfully designed home offers a generous living space with a modern kitchen/breakfast area housing an array of fitted appliances and large island unit opening to the lounge/diner resulting in ample natural light flooding the ground floor accommodation. A utility room and cloakroom are also found to the ground floor. Oak stairs lead to the first floor with four double bedrooms and sleek modern bathroom with the principal bedroom also having the luxury of an en-suite shower room. For those with ambitious visions, the property presents exciting potential for further expansion, subject to obtaining the necessary planning permission, offering the opportunity to tailor the space to your evolving needs.

Nestled within a mature private and secluded rear garden and large patio area, this property offers a serene retreat from the hustle and bustle of everyday life.
The property benefits from a block paved driveway proving off-road parking to the front and an integral garage with large storage space above.

When the home was built, the aim was for it to be as energy efficient as it could be. Equipped with low energy LED, solar panels and an air source heat pump, this home exemplifies sustainable living, reducing its environmental footprint while providing year-round comfort, helping to keep running costs to a minimum.

Situated in close proximity to Whitstable Town Centre and just off Joy Lane within walking distance to Whitstable seafront, the residence benefits from easy access to the fashionable Whitstable High Street with its wide variety of individual shops and eateries (0.6 miles) all within a short distance. Whitstable mainline line railway station is about 1 mile away.

Non-Approved Draft Details   

Entrance Hall   
Oak front entrance door with double glazed panel. Tiled floor with underfloor heating. Oak staircase with glass balustrade leading to first floor semi-galleried landing. Downlighters. Opening to lounge/diner. Opening to kitchen/breakfast room.

Cloakroom   
Suite in white comprising wash hand basin set into vanity unit with cupboard below, granite surround, granite upstand and close coupled WC. Tiled floor with underfloor heating. Frosted window to front. Extractor fan.

Lounge/Diner   21' 4 x 13' 1 (6.51m x 3.99m)
Freestanding log burning stove. Window to front. Tiled floor with underfloor heating. Thermostat control for central heating. Bi-folding doors to rear garden. Downlighters.

Kitchen/Breakfast Room   19' 10 max x 13' 5 (6.05m x 4.09m)
Beautiful handmade solid wood Higham kitchen with matching range of wall and base units. Inset single drainer stainless steel Franke 1.5 bowl sink unit. Granite work surfaces with drainer grooves and upstands. Large island unit with breakfast bar area, granite worktop and a variety of drawers below including recycling bin storage. Inset five ring gas hob with stainless steel and glass extractor cooker above. Built-in fan assisted electric double oven. Integrated dishwasher and fridge. Integrated bespoke fitted larder cupboard. Window to rear. Tiled floor with underfloor heating. Downlighters. Personal door to garage. Door to utility room. Opening to Lounge/Diner.

Utility Room   7' 6 x 7' 4 (2.29m x 2.24m)
Range of matching wall and base units. Inset stainless steel sink unit. Granite work surfaces with drainer grooves and upstands. Tiled floor with underfloor heating. Window to front. Plumbing for washing machine. Downlighters.

Spacious Semi-Galleried Landing   
Window to front. Access via loft ladder to insulated and large boarded loft with light and two Velux windows. Airing cupboard housing lagged hot water cylinder. Central heating thermostat control for underfloor heating.

Bedroom 1   10' 10 x 10' 6 plus recess (3.31m x 3.21m)
Window to side overlooking garden. Large built-in wardrobe with shelves, hanging space and light. Radiator. Door to en-suite.

En-Suite   6' 6 x 5' 0 (1.99m x 1.53m)
Suite in white comprising fully tiled shower cubicle with rainfall shower head, wash hand basin set into vanity unit with granite top and cupboard below and close coupled WC. Heated towel rail. Tiled walls. Frosted window to rear. Downlighters. Tiled floor with underfloor heating. Extractor fan.

Bedroom 2   13' 1 x 10' 8 (3.99m x 3.26m)
Windows to front and side overlooking garden. Built-in double wardrobe with light, shelves and hanging space. Downlighters. Radiator.

Bedroom 3   11' 0 x 10' 3 (3.36m x 3.13m)
Window to front. Large built-in wardrobe with light, shelves and hanging space. Downlighters. Radiator.

Bedroom 4   10' 3 x 8' 4 (3.13m x 2.54m)
Window to rear. Large built-in wardrobe with light, shelves and hanging space. Downlighters. Radiator.

Bathroom   8' 2 x 6' 7 (2.49m x 2.01m)
Suite in white comprising panelled bath with mixer tap, separate shower unit over bath with screen to side, large vanity unit with granite top and inset wash hand basin with cupboard below and close coupled WC. Heated towel rail. Tiled walls. Frosted window to rear. Downlighters. Tiled flooring with underfloor heating. Extractor fan. Shaver point.

Integral Garage   19' 3 x 9' 11 (5.87m x 3.03m)
Garage with personal door to kitchen/breakfast room, door to rear garden and double timber doors to front. Power and light. Consumer units. Well-lit second floor work area accessed by ladder.

Front Garden   
Border hedge to front. Block paved driveway extending to the side of the property providing off road parking. Path to front door.

Rear and Side Garden   36' 0 x 38' 0 plus 58ft 0 x 8ft 0 (10.98m x 11.59m)
The garden is southerly facing. Landscaped garden mainly laid to lawn with well stocked beds with flowers, bushes and shrubs. Large paved patio area. Timber shed. Outside tap. Outside lighting. Gated pedestrian side access. Paved path leading to personal garage door and log store.

Other Information   
The roof of the property is fitted with solar panels linked to the national grid, obtaining FIT returns.

Main Services
The following mains services are connected to the property electricity, water, gas, drainage and a telephone line. All services will be subject to the appropriate companies transfer conditions.

Heating
Central heating is provided by ASHP (air source heat pump) supplying underfloor heating as indicated in these particulars. We are advised by the vendor that quarterly RHI payments are received.

Windows
The windows are generally of stained oak framed and double glazed sealed units.

Tenure
The property is to be sold Freehold with vacant possession.

Council Tax
We are advised by the Valuation Office that the property is currently within Council Tax Band E. The amount payable under tax band E for the year 2026/2027 is £2,930.88.

Viewing
Please ring us to make an appointment. We are open from 9am to 6pm Monday to Friday, 9am to 5pm Saturdays and by appointment only on Sundays.

Agent Notes
Kent Estate Agencies gives notice for themselves and for the sellers of the property, whose agents they are that any floor plans, plans or mapping and measurements are approximate quoted in metric with imperial equivalents. All are for general guidance only and whilst every attempt has been made to ensure accuracy, they must not be relied on. The measurements are provided in accordance with the R.I.C.S. Code of Measuring Practice 6th edition. We have not carried out a structural survey and the services, appliances and specific fittings have not been tested and therefore no guarantee can be given that they are in working order. Photographs are reproduced for general information and it must not be inferred that any item shown is included with the property. Prospective purchasers or lessees should seek their own professional advice. Kent Estate Agencies retain the copyright in all advertising material used to market this property. No person in the employment of Kent Estate Agencies has any authority to make any representation or warranty whatever in relation to this property. Purchase prices, rents or other prices quoted are correct at the date of publication and, unless otherwise stated, exclusive of VAT. For a free valuation of your property contact the number on this brochure. Printed 24th March 2026

Important Information

  • This is a Freehold property.

Property Ref: A3A8CE

Share:

Similar Properties

Hazlemere Road, Seasalter, Whitstable

4 Bedroom Detached House | £625,000

Perfectly positioned in a highly sought-after location just a short walk from Whitstable's picturesque seafront, this ex...

Cromwell Road, Whitstable

3 Bedroom Terraced House | £600,000

Situated in the heart of Whitstable's vibrant town centre, this extended mid-terrace residence represents a rare opportu...

Belmont Road, Whitstable

3 Bedroom Semi-Detached House | £550,000

Located in an exclusive private gated development on the outskirts of central Whitstable, this contemporary three-bedroo...

Joy Lane, Whitstable

4 Bedroom Detached House | £795,000

This detached house has been extended and remodelled by the current owner to provide substantial living space and genero...

Cromwell Road, Whitstable

5 Bedroom Detached House | £950,000

Situated in the sought after Cromwell Road within a short stroll to Whitstable's working harbour and seafront. This larg...

Joy Lane, Whitstable

4 Bedroom Detached House | £1,175,000

Situated in the highly sought-after Joy Lane, this well presented and extended detached family home offers the perfect b...

Kent Estate Agencies (Whitstable)

High Street, Whitstable, Kent, CT5 1BQ

01227 213101

How much is your home worth?

Use our short form to request a valuation of your property.

Request a Valuation

Mortgage Calculator

Amount Borrowed: £
Total Amount Repayable: £
Total Monthly Payment: £
©2026 The Guild of Property Professionals. All rights reserved. Terms and Conditions | Privacy Policy | Cookie Policy | Complaints Policy | Members Login
The Guild of Property Professionals Trading Address: 121 Park Lane, London W1K 7AG. GPEA Limited. Registered in England & Wales.  Company No: 02819824.  Registered Office Address: 2 St. Stephen's Court, St. Stephen's Road, Bournemouth, Dorset, England, BH2 6LA.  VAT Registration No: 576 8795 61
Book a Property Valuation Update Cookies Preferences