Ramsden View Road, Wickford

£350,000

3 Bedroom Plot for sale in Wickford

3
  • PLANNING APPROVED FOR A 3 BEDROOM BUNGALOW
  • BUILDING PLOT
  • DETACHED FAMILY HOME
  • ENSUITE TO MASTER
  • IDEA FOR SELF BUILD
  • THREE BEDROOM
  • OPEN PLAN LIVING
  • OVER LOOKING FIELDS
  • SEMI RURAL LOCATION
  • BASILDON PLANNING FOR FURTHER INFORMATION - 25/01056/FULL

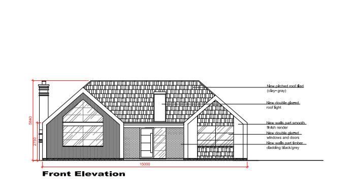
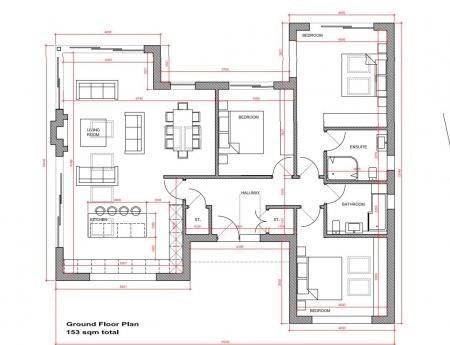
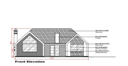
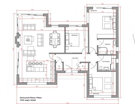
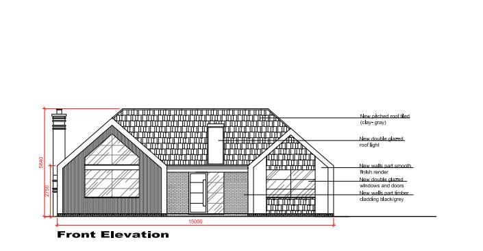
*** PLANNING APPROVED *** READY TO BUILD ***

An exceptional opportunity to acquire a planning-approved residential building plot, offered plot only, with full planning permission granted for the construction of a high-quality three-bedroom detached bungalow.

This attractive and well-positioned plot provides a rare chance for self-builders, downsizers or developers to deliver a modern single-storey home without the delays and uncertainty associated with securing planning consent. The approved scheme offers a carefully considered layout designed to suit contemporary living while retaining broad market appeal.

The planning permission allows for the construction of a spacious three-bedroom detached bungalow, arranged over a single level and extending to approximately 153 sq m (where applicable). The design focuses on practicality, accessibility and generous internal proportions.

-The approved accommodation comprises:

-A large open-plan kitchen, dining and living area, designed as the central hub of the home

-Three well-proportioned double bedrooms

-Principal bedroom with en-suite shower room

-Separate family bathroom

-Central hallway providing excellent circulation

-Two useful storage cupboards

-Direct access to the garden from the main living space

The layout has been designed to maximise natural light and provide a strong connection between internal living areas and the garden, making it ideal for both everyday living and entertaining.

Please contact the office for further information.

Important Information

  • This is a Freehold property.

Property Ref: 34386183

Share:

Similar Properties

Long Meadow Drive, Wickford

2 Bedroom Semi-Detached Bungalow | Guide Price £350,000

*** GUIDE PRICE £350,000 - £375,000 *** CHAIN FREE ***Nestled in the charming area of Long Meadow Drive, Wickford, this...

Coxes Farm Road, Billericay

3 Bedroom Land | Offers in excess of £350,000

** Development Opportunity ** Land with Planning Permission for a 3 Bedroom Chalet, Coxes Farm, Billericay **An excellen...

Rushbrook Avenue, Runwell

2 Bedroom Maisonette | £350,000

** SOLD PRIOR TO MARKETING MORE PROPERTIES REQUIRED ** We are pleased to confirm that this property was successfully sol...

Church End Lane, Runwell, Wickford

3 Bedroom Semi-Detached Bungalow | Guide Price £375,000

** GUIDE PRICE £375,000 - £400,000 ** Cowling & Payne bring to the market, this well presented THREE bedroom semi-detach...

Pebmarsh Drive, Wickford

3 Bedroom Semi-Detached House | £375,000

Situated within a highly sought-after location in Wickford, this beautifully presented three bedroom semi-detached famil...

Kenley Close, Wickford

2 Bedroom Semi-Detached House | Offers in region of £375,000

Nestled in the quiet cul-de-sac of Kenley Close, Wickford. This well-presented and extended two-bedroom property offers...

Cowling & Payne (Wickford)

Runwell Road, Wickford, Essex, SS11 7AB

01268 730 707

How much is your home worth?

Use our short form to request a valuation of your property.

Request a Valuation

Mortgage Calculator

Amount Borrowed: £
Total Amount Repayable: £
Total Monthly Payment: £
©2026 The Guild of Property Professionals. All rights reserved. Terms and Conditions | Privacy Policy | Cookie Policy | Complaints Policy | Members Login
The Guild of Property Professionals Trading Address: 121 Park Lane, London W1K 7AG. GPEA Limited. Registered in England & Wales.  Company No: 02819824.  Registered Office Address: 2 St. Stephen's Court, St. Stephen's Road, Bournemouth, Dorset, England, BH2 6LA.  VAT Registration No: 576 8795 61
Book a Property Valuation Update Cookies Preferences