Bradford Leigh Bradford on Avon

Offers Over
£600,000

4 Bedroom Detached House for sale in Wiltshire

1 4 1
  • Driveway Parking & Garage (With The Addition Of A Second Driveway)
  • Substantial Plot Offering Mature Wraparound Gardens
  • Highly Extendable STPP
  • Semi-Rural Location With Fantastic Vehicular Access To Bradford-On-Avon, Bath & The M4
  • Far Reaching Views From First Floor Accommodation
  • No Onward Chain

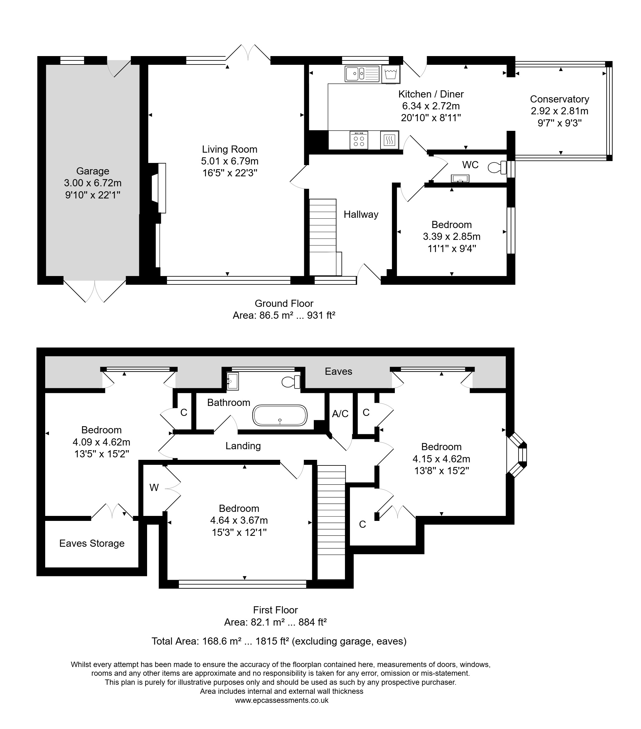
Offered with no onward chain, this spacious family home boasts generous room sizes with a bright and airy feel throughout owing to the large window panes and uninterrupted aspects throughout. The property occupies a large plot and consists of mature wraparound gardens and is home to a variety of flowers, plants, shrubs and trees. There are multiple zones of the garden to enjoy making this a real gem for family use!
Internally the property consists of a large entrance hall which is centrally placed and offers access to the living room, kitchen/diner, ground floor bedroom, cloakroom and also offers passage to the first floor. The sitting room is a wonderful space featuring a wood burning stove and a dual aspect view creating a very bright and welcoming space. The kitchen diner is a lateral space with a mixture of base level and eye level units and features a window and patio door to the rear aspect. The kitchen diner flows well into the conservatory which is a triple aspect space, allowing lots of light to naturally fill the kitchen. The first floor accommodation comprises three spacious bedrooms and a family bathroom featuring a rolltop bath.

The house is situated on the outskirts of Bradford on Avon in the Hamlet of Bradford Leigh, offering access to Christchurch Primary School and St Laurence Secondary school. It is within reach of the town centre with its shops, public houses, indoor swimming pool and railway facilities. The comprehensive facilities of Trowbridge are 3 miles away with the Georgian city of Bath being 8 miles distant.

Important Information

  • This is a Freehold property.
  • This Council Tax band for this property is: F
  • EPC Rating is E

Property Ref: DDB_DDB110200

Share:

Similar Properties

Whitehill Bradford On Avon

4 Bedroom Detached House | Offers in excess of £600,000

Situated in this prime location on the Bath side of Bradford on Avon, a spacious detached family home which provides a g...

Winsley Road Bradford On Avon

4 Bedroom Detached House | Offers Over £600,000

A well appointed family home benefitting from a high spec kitchen diner, four spacious bedrooms and a dual aspect sittin...

Church Street Norton St Philip

3 Bedroom End of Terrace House | Asking Price £580,000

A beautiful 3-bedroom period house in a peaceful village setting. The property is end of terrace with a generous corner...

The Street Broughton Gifford

4 Bedroom Semi-Detached House | Guide Price £625,000

A stylish, practical family home offering contemporary decor blended with striking character features including exposed...

Church Street Norton St Phillip

3 Bedroom Not Specified | Asking Price £650,000

A beautiful 3-bedroom period house in a peaceful village setting. This property boasts an extremely spacious garden, ide...

Bradford Road Winsley

3 Bedroom Detached House | Guide Price £650,000

One of the few blank canvases remaining on the Bradford Road, offering the next owner reams of adaptability and growth S...

Davies & Davies (Bradford on Avon)

Bradford on Avon, Wiltshire, BA15 1JY

01225 867 555

How much is your home worth?

Use our short form to request a valuation of your property.

Request a Valuation

Mortgage Calculator

Amount Borrowed: £
Total Amount Repayable: £
Total Monthly Payment: £
©2026 The Guild of Property Professionals. All rights reserved. Terms and Conditions | Privacy Policy | Cookie Policy | Complaints Policy | Members Login
The Guild of Property Professionals Trading Address: 121 Park Lane, London W1K 7AG. GPEA Limited. Registered in England & Wales.  Company No: 02819824.  Registered Office Address: 2 St. Stephen's Court, St. Stephen's Road, Bournemouth, Dorset, England, BH2 6LA.  VAT Registration No: 576 8795 61
Book a Property Valuation Update Cookies Preferences