Bond Street, Trowbridge

Asking Price
£220,000
SSTC
This property listing is now SSTC

Land for sale in Wiltshire

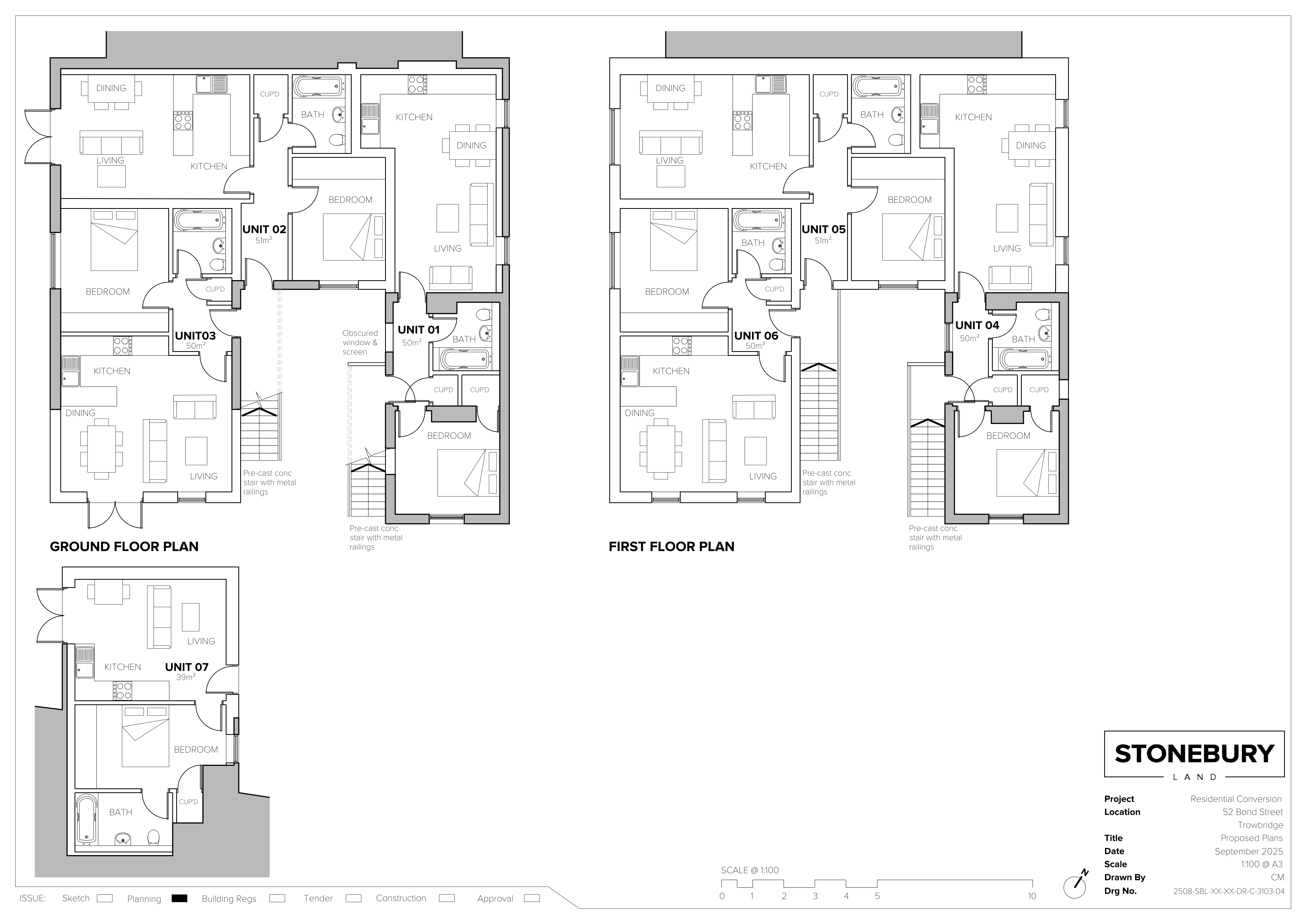
  • EXCITING DEVELOPMENT OPPORTUNITY FULL PLANNING PERMISSION GRANTED 7 ONE BEDROOM PROPERTIES EACH WITH SEPARATE ENTRANCES OFF STREET PARKING, CYCLE STORAGE & OUT DOOR SPACE CLOSE TO TOWN CENTRE & RA...

With full planning permission for 7 one bedroom properties, this exciting development opportunity includes parking and outdoor space. A short distance from both the town centre and railway station, the scheme would work well as a build to rent or to sell as individual apartments (subject to creation of leases).

This scheme comprises part conversion and part new build to create 7 dwellings. Each would have their own private entrance, open plan living space and double bedroom. In addition, there is outside space which would allow for allocated parking and garden areas.

The full planning documents can be accessed via the Wiltshire Planning Portal with the reference PL/2025/07290.

Bond Street is conveniently located a short distance from the town centre and railway station within the Newtown Conservation Area. The development is subject to a community infrastructure levy and a buyer must satisfy themselves with regards to how much this would be.

Trowbridge is the county town of Wiltshire found close to the western border with Somerset. On the fringe of the town centre, you find Trowbridge Town Park, a large open space with a host of activities, tree lined paths and a riverside walk to Biss Meadows Country Park. St Stephens Place provides several dining options along with a multi-screen cinema complex. There are a wide variety of historic buildings around the town along with a selection of beautiful walks nearby, including the Kennet and Avon Canal and Southwick Country Park. The town has superb transport links with Trowbridge station providing access to London as well as a short ride to the world heritage city of Bath. The A350 passes the fringe of the town, leading to the M4 via Chippenham and the A303 and A36 to the south.

Important Information

  • This is a Freehold property.
  • This property is exempt from EPC Rating

Property Ref: DDT260209

Share:

Similar Properties

Nightingale Road, Trowbridge

2 Bedroom End of Terrace House | Asking Price £220,000

With two double bedrooms as well as a spacious amount of living accommodation, this property is in need of some modernis...

Lambrok Close, Trowbridge

3 Bedroom Semi-Detached House | Asking Price £220,000

Backing onto open countryside, this three bedroom home is an exciting renovation project with a wonderfully proportioned...

Tudor Drive, Trowbridge

3 Bedroom Terraced House | Asking Price £220,000

Overlooking public green space, this three bedroom home has generously sized front and rear gardens. Well presented thro...

The Tabernacle, Church Street

2 Bedroom Flat | Asking Price £225,000

***OVER 60% NOW SOLD*** This wonderful and unique two bedroom apartment is found within this highly anticipated town cen...

Adcroft Drive, Trowbridge

2 Bedroom Detached House | Asking Price £225,000

This two double bedroom detached home is situated within close proximity to the town centre, whilst also offering a good...

Chestnut Grove, Trowbridge

3 Bedroom Terraced House | Asking Price £230,000

A spacious mid terrace family home situated in the convenient location, part of a small cul de sac, enjoying a delightfu...

Davies & Davies (Trowbridge)

Trowbridge, Wiltshire, BA14 8HA

01225 753 858

How much is your home worth?

Use our short form to request a valuation of your property.

Request a Valuation

Mortgage Calculator

Amount Borrowed: £
Total Amount Repayable: £
Total Monthly Payment: £
©2026 The Guild of Property Professionals. All rights reserved. Terms and Conditions | Privacy Policy | Cookie Policy | Complaints Policy | Members Login
The Guild of Property Professionals Trading Address: 121 Park Lane, London W1K 7AG. GPEA Limited. Registered in England & Wales.  Company No: 02819824.  Registered Office Address: 2 St. Stephen's Court, St. Stephen's Road, Bournemouth, Dorset, England, BH2 6LA.  VAT Registration No: 576 8795 61
Book a Property Valuation Update Cookies Preferences