Roman Place Westbury

Guide Price
£375,000
SSTC
This property listing is now SSTC

4 Bedroom Not Specified for sale in Wiltshire

2 4 3
  • An exclusive collection of 2, 3 & 4 bedroom homes
  • Ready to move into with all furniture, light fittings and window dressings included
  • Kitchen/Diner perfect for socialising
  • Integrated quality appliances
  • Quality build; superb attention to detail.
  • Master suite with dressing area and en suite
  • Main bathroom and a separate shower room
  • 10 year LABC guarantee
  • Train station on your doorstep with direct line to Paddington

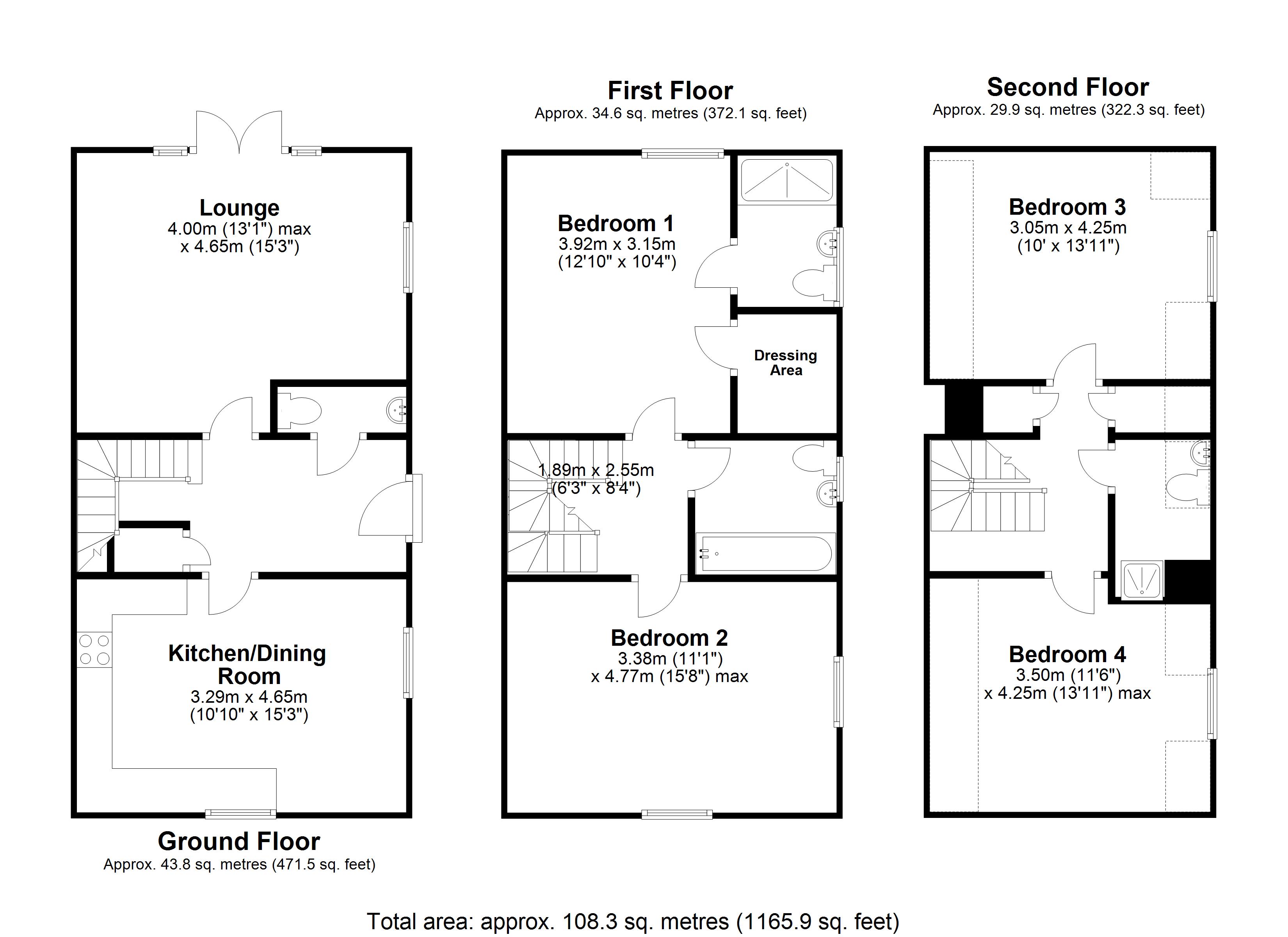
Introducing a stunning new build semi-detached house, boasting four spacious bedrooms. This exquisite property offers a range of desirable features, perfect for relaxing and entertaining. With allocated parking for three cars, convenience is ensured for residents and their guests.

Step inside and be greeted by a modern and stylish interior, thoughtfully designed with contemporary living in mind. The spacious living room, benefits from double doors into the garden and the well-appointed kitchen, dining area, creates an inviting space for socialising and family gatherings.

Each of the four bedrooms offers ample space and natural light, providing a tranquil haven for rest and relaxation. The principal bedroom benefits from an en-suite bathroom and a dressing area, adding a touch of luxury to your daily routine.

Situated in a sought-after location on the development the property benefits from privacy and far reaching views to the Westbury White Horse. This property provides easy access to local amenities, schools, and transport links, making it an ideal choice as your next home.

PREDICTED ENERGY ASSESSMENT – B - 84
ENVIRONMENTAL IMPACT – B - 85

Important Information

  • This is a Freehold property.
  • The annual service charges for this property is £230

Property Ref: DDW_DDW240585

Share:

Similar Properties

Cheyney Walk Westbury

3 Bedroom Detached Bungalow | Guide Price £375,000

A beautifully presented and deceptively spacious three-bedroom bungalow, tucked away in a peaceful residential setting y...

Leighton Park Road Westbury Leigh

4 Bedroom Semi-Detached House | Asking Price £375,000

*** £10,000 towards your moving costs. READY NOW*** A stunning brand new semi detached family home situated in this fabu...

The Picquet Bratton,

2 Bedroom Detached House | Guide Price £375,000

A brilliant two bedroom bungalow in the heart of Bratton close to amenities. With over 1500 sq ft of living space this p...

West Street, Warminster

4 Bedroom Detached House | Offers in excess of £380,000

A wonderful four bedroom detached home in the popular central location in Warminster close to local amenities and Warmin...

Greenhill Place

4 Bedroom Semi-Detached House | Offers in excess of £385,000

A beautiful four bedroom semi detached home in the idyllic village of Codford St Peter, with far reaching views over adj...

Leighton Park Road Westbury Leigh

4 Bedroom Semi-Detached House | Asking Price £385,000

A stunning brand new semi detached family home situated in this fabulous location, close to beautiful open countryside,...

Davies & Davies (Westbury)

Westbury, Wiltshire, BA13 3BW

01373 859 944

How much is your home worth?

Use our short form to request a valuation of your property.

Request a Valuation

Mortgage Calculator

Amount Borrowed: £
Total Amount Repayable: £
Total Monthly Payment: £
©2026 The Guild of Property Professionals. All rights reserved. Terms and Conditions | Privacy Policy | Cookie Policy | Complaints Policy | Members Login
The Guild of Property Professionals Trading Address: 121 Park Lane, London W1K 7AG. GPEA Limited. Registered in England & Wales.  Company No: 02819824.  Registered Office Address: 2 St. Stephen's Court, St. Stephen's Road, Bournemouth, Dorset, England, BH2 6LA.  VAT Registration No: 576 8795 61
Book a Property Valuation Update Cookies Preferences