Primmers Place Westbury

Offers Over
£265,000

3 Bedroom Terraced House for sale in Wiltshire

1 3 2
  • SPACIOUS PRINCIPAL BEDROOM WITH ENSUITE
  • LARGE OPEN PLAN KITCHEN/DINING/LIVING ROOM
  • THREE DOUBLE BEDROOMS
  • A VERY SHORT WALK TO WESTBURY TRAIN STATION
  • AND WESTBURY SAILING LAKE
  • WELL PRESENTED AND MAINTAINED THROUGHOUT
  • NO ONWARD CHAIN
  • GARAGE AND PARKINGWELL MAINTAINED GARDEN WITH REAR ACCESS TO PARKING AND THE GARAGE

Located in a sought-after residential area, this modern townhouse offers a perfect blend of style and comfort and is offered to market with no onward chain.

Boasting three bedrooms, this property exudes a homely atmosphere with its contemporary design and spacious layout. The quiet surroundings provide a peaceful living environment, ideal for families upsizing or professionals seeking to purchase their first home.

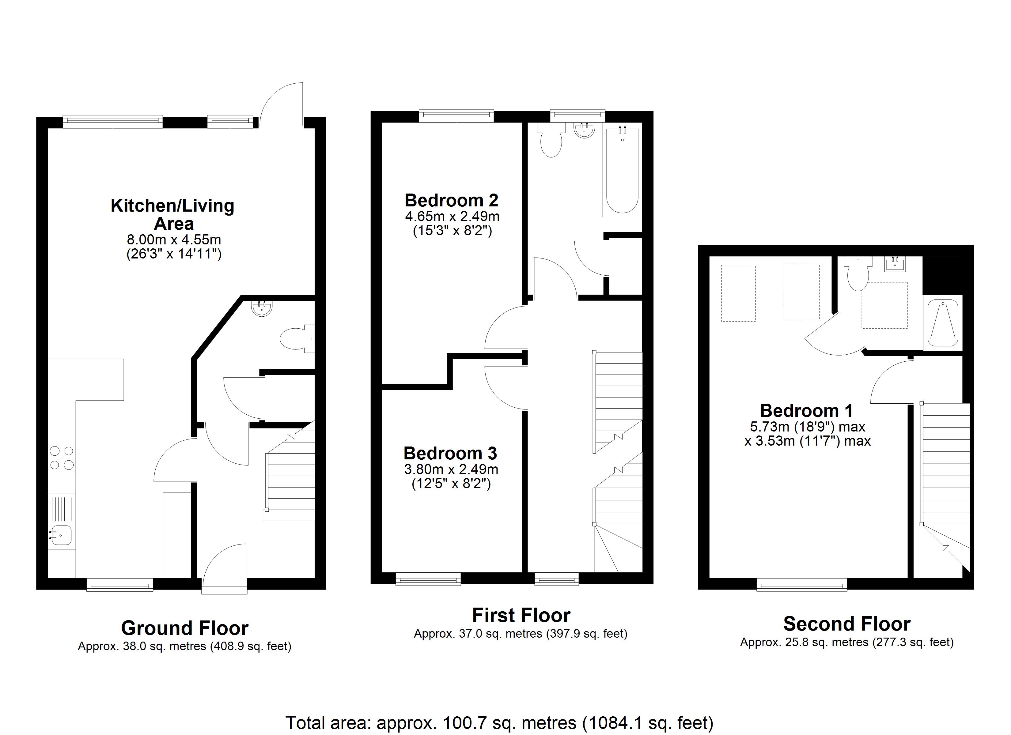
As you enter the property you are greeted by a bright and airy hallway leading into a wonderful open plan kitchen/living/dining room with dual aspect windows, a breakfast bar and a rear door leading out to your garden. This room is the hub of the home and is perfect for entertaining guests or family evenings together. A convenient cloakroom concludes the ground floor. The first floor continues to impress with two spacious double bedrooms. A family bathroom with large airing cupboard completes the first floor. The second floor is a magnificent principal bedroom with ensuite shower room.

Externally the property boasts a well-maintained garden ideal for summer BBQs. A gate to the rear provides access to an allocated parking space and the garage. Located a very short walk to Westbury Sailing Lake for dog walkers to enjoy local footpaths and easy access to the train station and schools means this property is a must see.

Westbury is a vibrant and popular market town located in the heart of Wiltshire which provides excellent access to Warminster, Salisbury, Frome and Bath via the A36. The town is well served with several respected Schools, Westbury Infants, Westbury Church Of England Junior and Matravers Secondary. Residents are able to take full advantage of the gorgeous countryside that surrounds the town, with some beautiful walks and cycle rides nearby, not to mention Longleat which is 8 miles distant, so whether it be a stroll to enjoy the vista across the White Horse and beyond or perhaps a ramble in Clanger Woods this has it all. Superb rail links are on hand courtesy of Westbury Railway Station which is less than a mile away, offering a direct line to Bath, London Paddington, Cardiff, Bristol, Portsmouth, Swindon and, of course, not forgetting Cornwall. The historic 14th century All Saints Church is located off the main square and you will find a number of independent shops and cafe's to enjoy along with a Farmers Market which meets on a weekly basis. The town has three large supermarkets with Aldi, Lidl and Morrisons to choose from. On the sports and leisure side there is Leighton Recreation Centre a local swimming pool and several gyms where you can work up a sweat.

Important Information

  • This is a Freehold property.
  • This Council Tax band for this property is: C
  • EPC Rating is C

Property Ref: DDW_DDW260022

Share:

Similar Properties

All Saints Crescent Westbury

4 Bedroom Semi-Detached House | Offers Over £265,000

A wonderful 4 bedroom townhouse with versatile living space and three bathrooms.

Matravers Close Westbury

3 Bedroom Semi-Detached House | Asking Price £265,000

A wonderful three bedroom semi detached home located in a sought after development close to amenities and schools and in...

Storridge Road Westbury

3 Bedroom Semi-Detached House | Asking Price £265,000

Located in the town of Westbury, this charming 3-bedroom house offers a number of desirable features, including an invit...

Boyd Road Westbury

3 Bedroom Semi-Detached House | Offers Over £270,000

A wonderful modern three bedroom double fronted semi detached home located in a sought after development close to local...

Priory Cottages Stradbrook

2 Bedroom End of Terrace House | Asking Price £275,000

Charming Grade II Listed Cottage with Countryside Views - sought after location.

Baynton Close Westbury

3 Bedroom Semi-Detached House | Offers in excess of £275,000

Semi-detached 3-bedroom house boasting a bright, luxurious, and modern interior. Stylishly designed and well-maintained,...

Davies & Davies (Westbury)

Westbury, Wiltshire, BA13 3BW

01373 859 944

How much is your home worth?

Use our short form to request a valuation of your property.

Request a Valuation

Mortgage Calculator

Amount Borrowed: £
Total Amount Repayable: £
Total Monthly Payment: £
©2026 The Guild of Property Professionals. All rights reserved. Terms and Conditions | Privacy Policy | Cookie Policy | Complaints Policy | Members Login
The Guild of Property Professionals Trading Address: 121 Park Lane, London W1K 7AG. GPEA Limited. Registered in England & Wales.  Company No: 02819824.  Registered Office Address: 2 St. Stephen's Court, St. Stephen's Road, Bournemouth, Dorset, England, BH2 6LA.  VAT Registration No: 576 8795 61
Book a Property Valuation Update Cookies Preferences