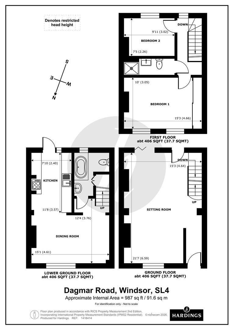
Dagmar Road, Windsor

Guide Price
£600,000

2 Bedroom House for sale in Windsor

1 2 2
  • Two Bedrooms
  • Potential to Extend (STPP)
  • Two Bathrooms
  • Modern Kitchen
  • Town Centre Location
  • Quiet One Way Residential Road
  • Private South Facing Garden

This charming two-bedroom, period home located on a quiet one-way residential road moments from Windsor town centre, benefits from two bathrooms and is arranged over three floors. This home is modern throughout and has potential to extend further (STPP).

The property includes an open-plan kitchen diner with a smart kitchen, a separate reception on the raised ground floor with a real log fire and a private south facing garden with decking.

Property Ref: 34496435

Share:

Similar Properties

Wood Close, Windsor

3 Bedroom Terraced House | £600,000

A beautifully presented 3 bedroom house that has been cleverly remodelled to provide light open plan living accommodatio...

Albert Street, Windsor

3 Bedroom Terraced House | Offers in excess of £600,000

A delightful three bedroom Victorian cottage situated on a prime residential road in Windsor Town Centre just a short wa...

Balmoral Gardens, Windsor, Berkshire

3 Bedroom Terraced House | Offers Over £600,000

An immaculate and beautifully presented 3 bedroom, 2 bathroom house located in a quiet cul-de-sac, just a short walk to...

Clewer Park, Windsor

3 Bedroom Semi-Detached House | Offers Over £610,000

A 3 bedroom semi-detached house located in a quiet cul-de-sac just a short walk from Windsor town centre with the vast a...

Balmoral Gardens, Windsor

3 Bedroom End of Terrace House | Guide Price £625,000

A well presented 3 bedroom end of terrace property situated in a popular cul-de-sac just a short walk from Windsor Town...

Edinburgh Gardens, Windsor

3 Bedroom Terraced House | Guide Price £625,000

A contemporary and beautifully presented three bedroom terraced house situated in a prime residential gated development...

Hardings Estate Agents (Windsor)

Windsor, Berkshire, SL4 1LD

01753 833118

How much is your home worth?

Use our short form to request a valuation of your property.

Request a Valuation

Mortgage Calculator

Amount Borrowed: £
Total Amount Repayable: £
Total Monthly Payment: £
©2026 The Guild of Property Professionals. All rights reserved. Terms and Conditions | Privacy Policy | Cookie Policy | Complaints Policy | Members Login
The Guild of Property Professionals Trading Address: 121 Park Lane, London W1K 7AG. GPEA Limited. Registered in England & Wales.  Company No: 02819824.  Registered Office Address: 2 St. Stephen's Court, St. Stephen's Road, Bournemouth, Dorset, England, BH2 6LA.  VAT Registration No: 576 8795 61
Book a Property Valuation Update Cookies Preferences