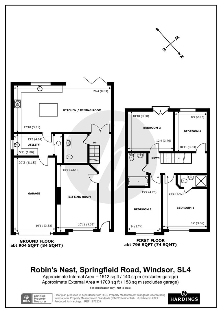
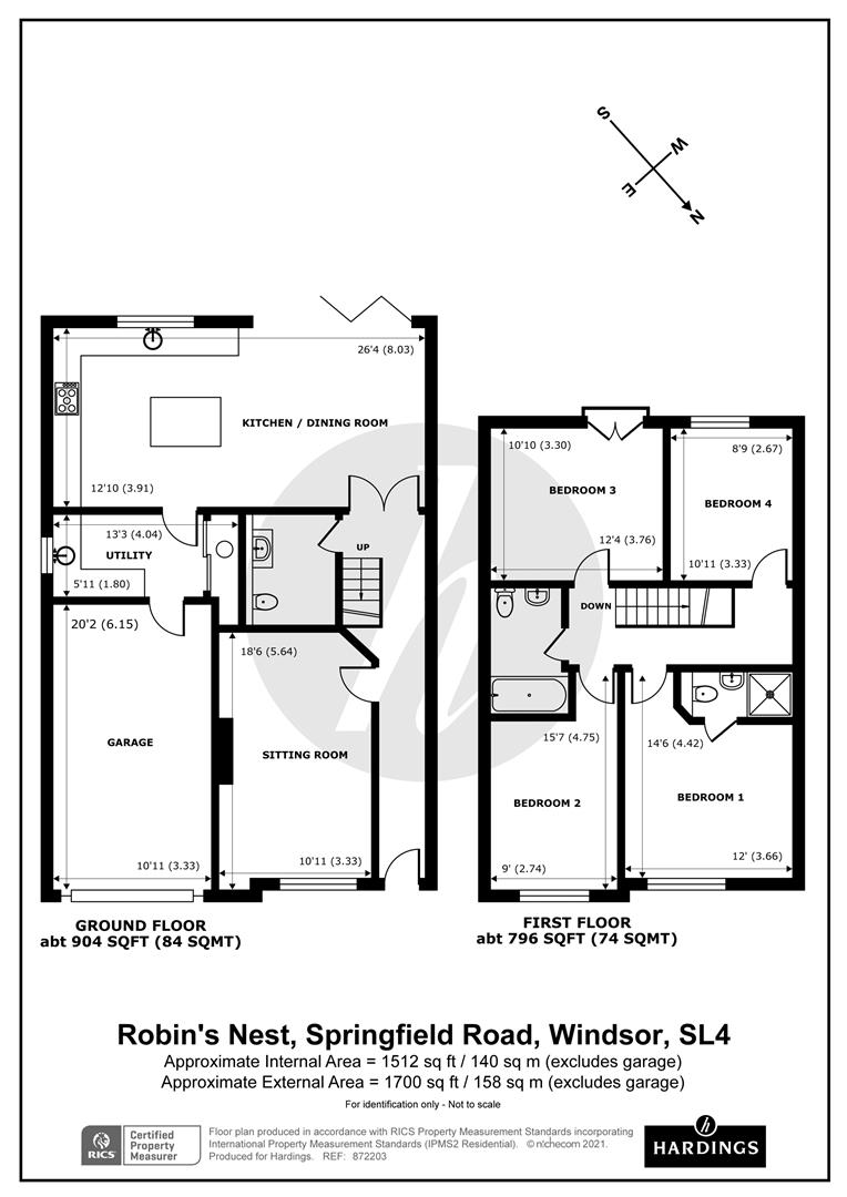
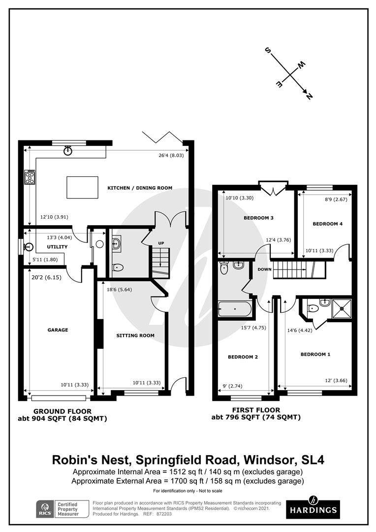
Springfield Road, Windsor

Guide Price
£900,000
SSTC
This property listing is now SSTC

4 Bedroom Semi-Detached House for sale in Windsor

2 4 2
  • Stunning 4 Bedroom Newbuild Semi-Detached House with Views of Windsor Castle
  • Energy Efficient/Smart Home
  • Driveway Parking & Further Secure Parking for 1 Car to the Rear
  • Garage (Large Enough For SUV) & Electrical Car Charging Point
  • 10 Year Structural Warranty (ICW)
  • Superior Build Quality
  • Contemporary Kitchen with Custom Painted Units and Neff Appliances
  • Landscaped South Facing Garden
  • Short Walk to Windsor Town Centre
  • EPC - B / Band E

We are delighted to introduce 'Robins Nest' to the market, a stunning 4 bedroom newbuild smart home, one of a pair of identical semi-detached houses built by luxury local builder, Titan Construction. The property is located in a popular residential area, in the catchment for excellent local schools and just a short walk to Windsor town centre with its shops, bars, restaurants and mainline rail links to London. Built to an exacting standard, boasting energy efficient heating solutions, underfloor heating throughout the ground floor and cat 6 in all rooms, the property further benefits from garage & driveway parking for, landscaped rear garden, side access and views of the castle.

Property Ref: 6500824_32895572

Share:

Similar Properties

St. Johns Square, Eton, Windsor

3 Bedroom Flat | Guide Price £900,000

A luxury three bedroom three bathroom apartment situated just behind Eton High street with secure underground parking an...

Springfield Road, Windsor

4 Bedroom Semi-Detached House | Guide Price £900,000

We are delighted to introduce 'Laverock' to the market, a stunning 4 bedroom newbuild smart home, one of a pair of ident...

Alma Road, Windsor, Berkshire

5 Bedroom End of Terrace House | Offers Over £900,000

**REFURBISHMENT OPPORTUNITY**A superb opportunity to acquire this period townhouse in the heart of Windsor's town centre...

Fairlight Avenue, Windsor

3 Bedroom House | £925,000

Rare to the market, a 3 bedroom semi detached early 1950's house located in this much coveted enclave in the heart of Wi...

Beaumont Road, Windsor, Berkshire

4 Bedroom House | Guide Price £925,000

A well presented four bedroom terraced period villa located in on a popular residential road in the town centre, just a...

Kensington Mews, Windsor

4 Bedroom Semi-Detached House | Guide Price £935,000

A very attractive 4 bedroom house occupying a prime position overlooking the green in this sought after gated developmen...

Hardings Estate Agents (Windsor)

Windsor, Berkshire, SL4 1LD

01753 833118

How much is your home worth?

Use our short form to request a valuation of your property.

Request a Valuation

Mortgage Calculator

Amount Borrowed: £
Total Amount Repayable: £
Total Monthly Payment: £
©2026 The Guild of Property Professionals. All rights reserved. Terms and Conditions | Privacy Policy | Cookie Policy | Complaints Policy | Members Login
The Guild of Property Professionals Trading Address: 121 Park Lane, London W1K 7AG. GPEA Limited. Registered in England & Wales.  Company No: 02819824.  Registered Office Address: 2 St. Stephen's Court, St. Stephen's Road, Bournemouth, Dorset, England, BH2 6LA.  VAT Registration No: 576 8795 61
Book a Property Valuation Update Cookies Preferences