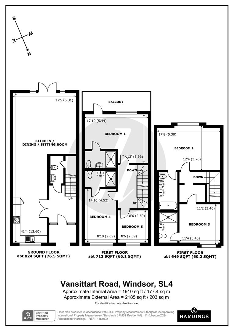
Vansittart Road, Windsor

Guide Price
£1,220,000
SSTC
This property listing is now SSTC

4 Bedroom House for sale in Windsor

1 4 4
  • Collection of 4 beautiful Newbuild Townhouses by Prestigious Developer, BellView Group
  • Principal Bedroom with En-Suite Bedroom and Terrace
  • 3 Further Double Bedrooms, 3 Ensuite Bathrooms
  • Study
  • Large Open Plan Kitchen/ Dining Room/Reception Room
  • Bi-Fold Doors onto Garden
  • Utility Room with WC
  • Town Centre Location
  • Off Street Parking for Two Cars

Forming part of a terrace of four properties, this is a luxurious four-bedroom mid terraced townhouse, with parking for 2 cars, built by luxury builders 'The BellView Group'. Located on a quiet residential road just a short walk to Windsor town centre, the property encompasses stylish and beautifully appointed accommodation throughout. On the ground floor, there is an open-plan kitchen/dining room blending seamlessly into a spacious reception area replete with high ceilings and bi-fold doors opening onto a private west-facing private garden.

Further benefits include a separate utility room with a cloakroom.
The principal bedroom, which is located on the first floor, enjoys a private terrace, ample storage and en-suite bathroom.

There are a further three double bedrooms all offered with en-suite bathrooms.
The property is ideally located for the mainline British Rail links to London (Waterloo & Paddington), M25 & M40, excellent schools and Heathrow Airport.

Property Ref: 33548126

Share:

Similar Properties

Bears Rails Park, Old Windsor, Windsor

4 Bedroom Semi-Detached House | Guide Price £1,200,000

A charming Grade II listed double fronted character house on this prestigious Berkeley/Try Homes development backing dir...

Hawtrey Road, Windsor, Berkshire

4 Bedroom Town House | £1,195,000

A beautifully presented four double bedroom modern townhouse that's been remodelled and renovated throughout to create l...

Grove House, 2 Grove Road, Windsor

4 Bedroom End of Terrace House | Guide Price £1,150,000

An elegant and beautifully maintained 4 bedroom end of terrace period town house with off street parking for 2 cars. Loc...

Bolton Road, Windsor, Berkshire

4 Bedroom Detached House | Guide Price £1,250,000

This impressive detached family home has been recently renovated and extended throughout, offering stylish and versatile...

Frances Road, Windsor, Berkshire

3 Bedroom Terraced House | Guide Price £1,250,000

A very attractive three bedroom 'part' terraced Victorian villa located in Windsor's coveted Golden Triangle, just a sho...

Grove Road, Windsor, Berkshire

4 Bedroom House | Guide Price £1,250,000

A beautifully appointed family size Victorian town house in this sought after location just moments' walk from town cent...

Hardings Estate Agents (Windsor)

Windsor, Berkshire, SL4 1LD

01753 833118

How much is your home worth?

Use our short form to request a valuation of your property.

Request a Valuation

Mortgage Calculator

Amount Borrowed: £
Total Amount Repayable: £
Total Monthly Payment: £
©2026 The Guild of Property Professionals. All rights reserved. Terms and Conditions | Privacy Policy | Cookie Policy | Complaints Policy | Members Login
The Guild of Property Professionals Trading Address: 121 Park Lane, London W1K 7AG. GPEA Limited. Registered in England & Wales.  Company No: 02819824.  Registered Office Address: 2 St. Stephen's Court, St. Stephen's Road, Bournemouth, Dorset, England, BH2 6LA.  VAT Registration No: 576 8795 61
Book a Property Valuation Update Cookies Preferences