Vansittart Road, Windsor

Offers in region of
£1,150,000

4 Bedroom Terraced House for sale in Windsor

1 4 4
  • Large Open Plan Kitchen/ Dining Room/Reception Room
  • Principal Bedroom with En-Suite Bedroom and Terrace
  • 3 Further Double Bedrooms, 3 Ensuite Bathrooms
  • Study
  • No Onward Chain
  • Bi-Fold Doors onto Garden
  • Utility Room with WC
  • Town Centre Location
  • Off Street Parking for Two Cars
  • Stamp Duty Paid

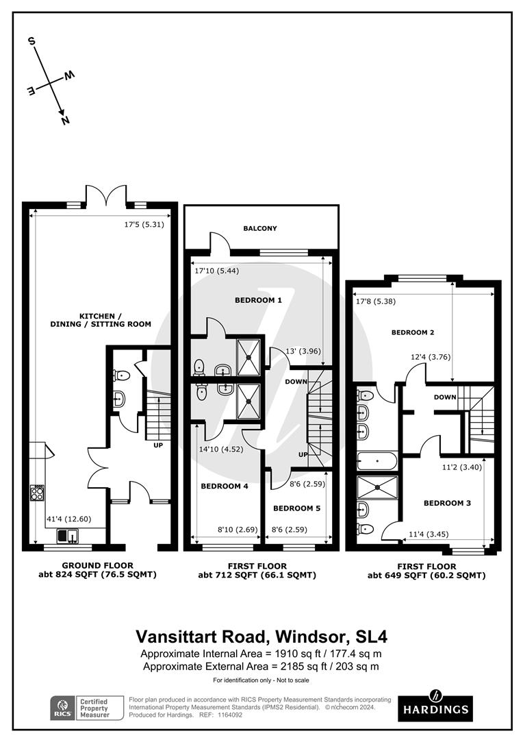
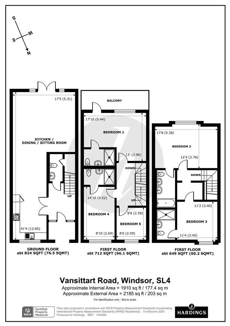
An exceptional opportunity to own this beautifully presented 5-bedroom terraced home on Vansittart Road, Windsor, offered with STAMP DUTY PAID. Situated in a highly desirable town centre location, this stylish property combines generous living space with modern comforts, off-street parking and excellent transport links, creating the perfect blend of convenience and contemporary family living.

The ground floor comprises an impressive open-plan kitchen/dining space that flows into a generous reception area, enhanced by high ceilings and bi-fold doors leading to a private west-facing garden. Additional conveniences include a separate utility room and cloakroom.

The principal bedroom occupies the first floor and benefits from a private terrace, ample fitted storage, and an en-suite bathroom. Three further double bedrooms each enjoy their own en-suite facilities.

Ideally positioned for mainline rail services to London (Waterloo and Paddington), as well as the M25 and M40, the property also offers excellent access to highly regarded schools and Heathrow Airport. Situated on a quiet residential road within easy walking distance of Windsor town centre, the property features stylish, beautifully appointed accommodation throughout.

Property Ref: 6500824_34047470

Share:

Similar Properties

Grove House, 2 Grove Road, Windsor

4 Bedroom End of Terrace House | Guide Price £1,150,000

An elegant and beautifully maintained 4 bedroom end of terrace period town house with off street parking for 2 cars. Loc...

Nightingale Walk, Windsor, Berkshire

4 Bedroom End of Terrace House | Guide Price £1,150,000

A beautifully presented four bedroom town house with ample driveway parking located in this well regarded residential de...

St. Marks Road, Windsor, Berkshire

3 Bedroom Villa | Guide Price £1,150,000

A beautifully presented Victorian villa, remodelled and extended to provide elegant and well proportioned accommodation....

Hawtrey Road, Windsor, Berkshire

4 Bedroom Townhouse | £1,195,000

A beautifully presented four double bedroom modern townhouse that's been remodelled and renovated throughout to create l...

Bears Rails Park, Old Windsor, Windsor

4 Bedroom Semi-Detached House | Guide Price £1,200,000

A charming Grade II listed double fronted character house on this prestigious Berkeley/Try Homes development backing dir...

Vansittart Road, Windsor

4 Bedroom House | Guide Price £1,220,000

Forming part of a terrace of four properties, this is a luxurious four-bedroom mid terraced townhouse, with parking for...

Hardings Estate Agents (Windsor)

Windsor, Berkshire, SL4 1LD

01753 833118

How much is your home worth?

Use our short form to request a valuation of your property.

Request a Valuation

Mortgage Calculator

Amount Borrowed: £
Total Amount Repayable: £
Total Monthly Payment: £
©2026 The Guild of Property Professionals. All rights reserved. Terms and Conditions | Privacy Policy | Cookie Policy | Complaints Policy | Members Login
The Guild of Property Professionals Trading Address: 121 Park Lane, London W1K 7AG. GPEA Limited. Registered in England & Wales.  Company No: 02819824.  Registered Office Address: 2 St. Stephen's Court, St. Stephen's Road, Bournemouth, Dorset, England, BH2 6LA.  VAT Registration No: 576 8795 61
Book a Property Valuation Update Cookies Preferences