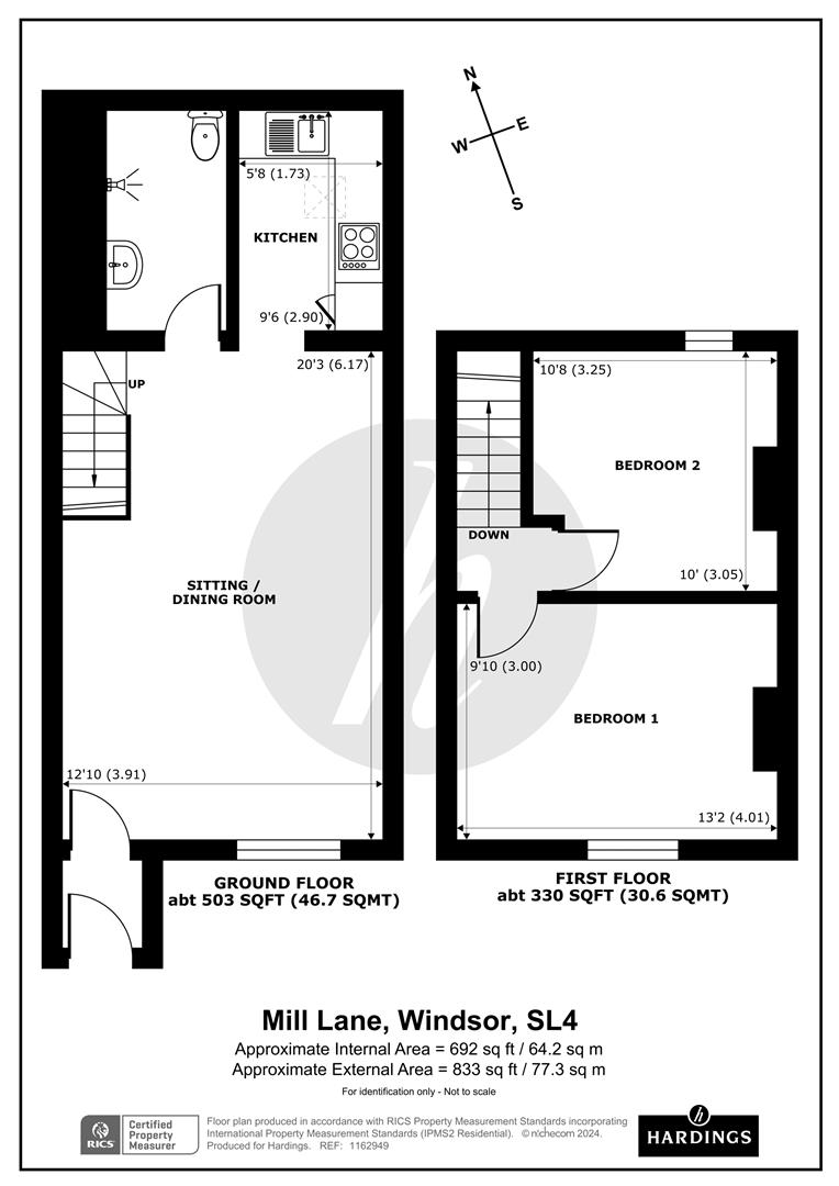
Swan Terrace, Mill Lane, Windsor

Guide Price
£400,000
SSTC
This property listing is now SSTC

2 Bedroom Terraced House for sale in Windsor

1 2 1
  • Two Bedrooms
  • Modern Integrated Kitchen
  • Open Plan Reception/ Dining Room
  • Good Condition Throughout
  • Courtyard Garden
  • Walking Distance to Town Centre
  • Tucked Away Position
  • Period Cottage
  • EPC C
  • No Onward Chain

Charming Victorian cottage with period character. It is tucked away in a secluded terrace of what were originally workmans' cottages and is within easy walking distance of Windsor Castle, the town centre, the river and both of Windsor's railway stations.

The property is in immaculate order throughout benefitting from a modern integrated kitchen and a large shower room on the ground floor. The living room has a bay window which looks out onto a south-facing private courtyard garden, a perfect area for entertaining. The property comes to the market chain free.

Property Ref: 6500824_33300542

Share:

Similar Properties

The Myrke, Datchet, Slough

3 Bedroom Semi-Detached House | Guide Price £400,000

A pretty 3 bedroom semi-detached cottage located In this quiet semi-rural cul-de-sac on the fringes of Datchet Village....

Nightingale Walk, Windsor, Berkshire

2 Bedroom Flat | Offers Over £400,000

A beautifully presented light and spacious 2 double bedroom, 2 bath ground floor apartment located in this central posit...

St. Leonards Road, Windsor

2 Bedroom Flat | Guide Price £400,000

A light and beautifully presented 2 bedroom, 2 bathroom first floor flat located in a popular development just a short w...

Albion Place, Windsor

2 Bedroom Terraced House | Guide Price £410,000

A charming 2 bedroom Victorian terraced property situated on a popular residential road close to Windsor Town Centre and...

Bridgeman Drive, Windsor

2 Bedroom Maisonette | Guide Price £410,000

A stunning two bedroom Grade II Listed apartment with wonderful features and an open plan living that has been meticulou...

Kings Road, Windsor

2 Bedroom Flat | Guide Price £415,000

A light and well proportioned two bedroom, first floor conversion flat, with sweeping views over Crown Estate Land. Loca...

Hardings Estate Agents (Windsor)

Windsor, Berkshire, SL4 1LD

01753 833118

How much is your home worth?

Use our short form to request a valuation of your property.

Request a Valuation

Mortgage Calculator

Amount Borrowed: £
Total Amount Repayable: £
Total Monthly Payment: £
©2026 The Guild of Property Professionals. All rights reserved. Terms and Conditions | Privacy Policy | Cookie Policy | Complaints Policy | Members Login
The Guild of Property Professionals Trading Address: 121 Park Lane, London W1K 7AG. GPEA Limited. Registered in England & Wales.  Company No: 02819824.  Registered Office Address: 2 St. Stephen's Court, St. Stephen's Road, Bournemouth, Dorset, England, BH2 6LA.  VAT Registration No: 576 8795 61
Book a Property Valuation Update Cookies Preferences