Wayleaves, Monkokehampton, Winkleigh, EX19

Guide Price
£225,000

Plot for sale in Winkleigh

  • Planning permission for four new homes
  • Mix of 2 and 3 bedroom houses
  • Quiet edge-of-village setting
  • Lovely countryside views
  • Gardens and parking for each plot
  • Near Hatherleigh and Okehampton
  • Perfect for a small developer

This development site sits on the edge of Monkokehampton, a quiet village in West Devon, with open countryside on all sides and the market towns of Hatherleigh and Okehampton both within easy reach.

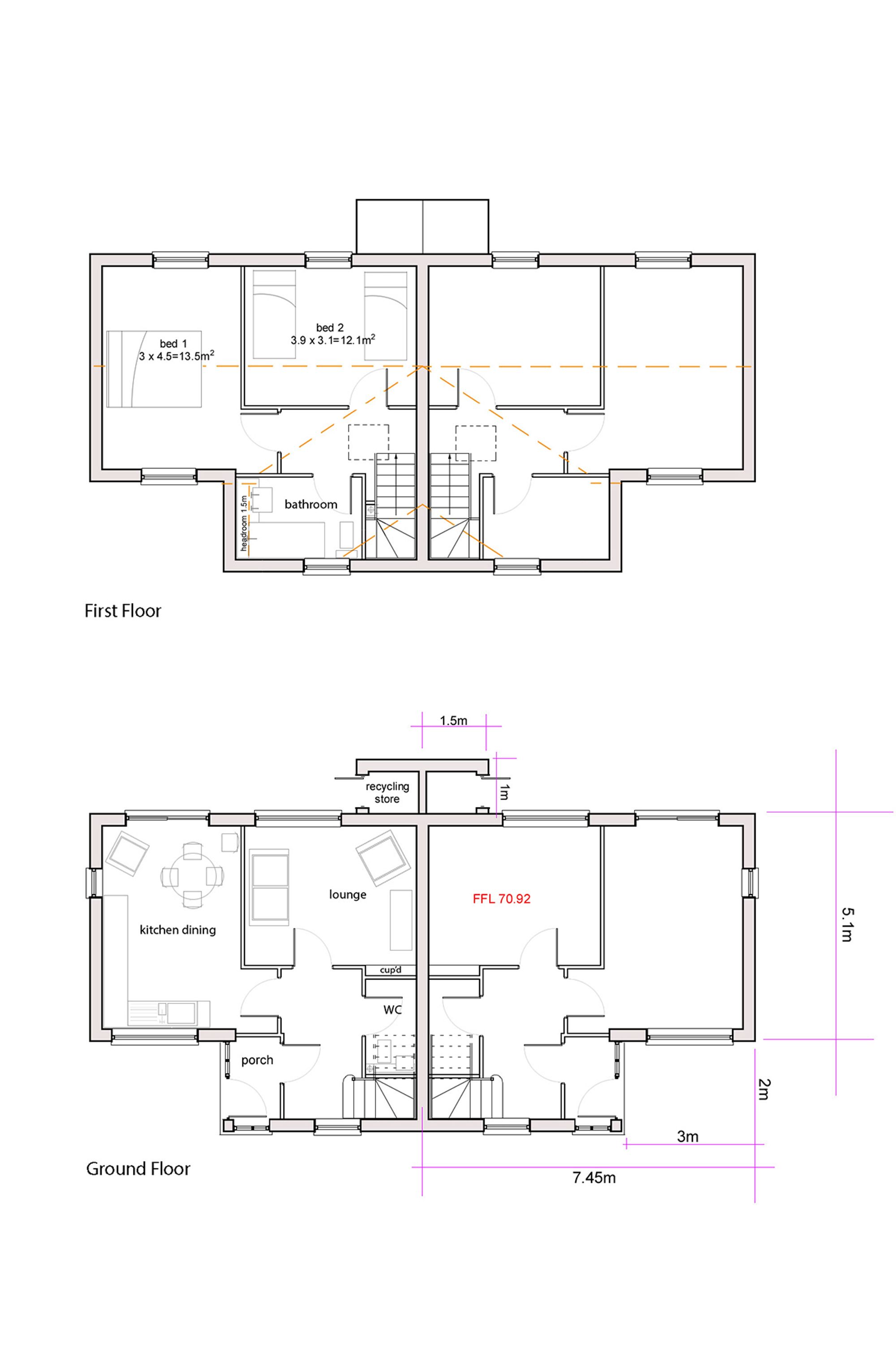
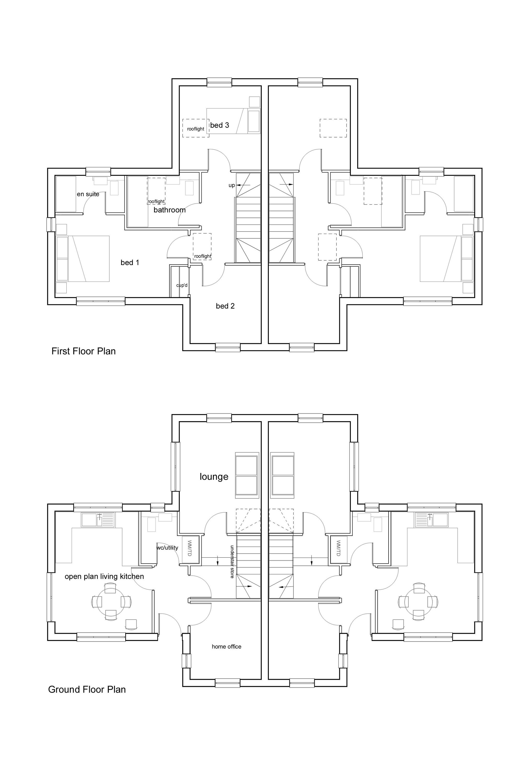
Outline planning permission has been granted for four new homes: two three-bedroom houses of approximately 90sqm and two two-bedroom houses of approximately 79sqm, arranged as two semi-detached pairs. Each pair has its own access from one of two quiet village lanes bordering the site. Planning references 2280/23/OPA and 0599/25/OPA cover both schemes, with access, layout and scale already approved. Full details are on the West Devon Borough Council planning portal.

The site extends to approximately 0.3 acres and adjoins a bungalow known as Wayleaves. Each plot has space for its own garden and parking, and the gentle slope of the land means the finished homes should enjoy open views over the surrounding fields.

The central garden ground between the two plots is included in the sale, removing the previous pedestrian right of way that crossed the site. The buyer will be required to construct the retaining wall along the boundary with Wayleaves, as shown on the planning drawings. Final layouts, finishes and landscaping remain subject to reserved matters approval.

Monkokehampton has a 19th century church, footpaths into open countryside and easy access to Dartmoor. Hatherleigh is about three miles away for everyday needs, Okehampton around ten miles with supermarkets, schools, a medical centre and a railway station with services to Exeter. Primary schools at Exbourne, Hatherleigh and Winkleigh are all within roughly five to ten miles.

This is a straightforward opportunity for a small developer or builder looking for a manageable scheme with planning already in place in a part of Devon that rarely sees sites of this kind come to market. Offered as a single lot.

Broadband: Standard (source: Ofcom) Drainage: See planning Tenure: Freehold

Buyers' Compliance Fee: A compliance check fee of £25 inc. VAT per person is payable on acceptance of an offer, covering ID verification and anti-money laundering checks as required by law.

Directions: Satnav: EX19 8SE ///superbly.deflate.swells

Important Information

  • This is a Freehold property.

Property Ref: 70b14bee-9dcf-44db-9fe3-162086f6bab7

Share:

Similar Properties

Chenson, Chulmleigh, EX18

2 Bedroom Terraced House | Guide Price £225,000

Character stone cottage set close to Eggesford Forrest and just 2 miles for Eggesford train station, large south facing...

Butt Parks, Crediton, EX17

3 Bedroom Terraced House | Guide Price £225,000

* No onward chain * Conveniently located 3 bedroom property with the benefit of 2 parking spaces and an enclosed garden

Threshers, Crediton, EX17

2 Bedroom Terraced House | Guide Price £220,000

A well presented two bedroom home with a south facing garden, garage and parking, situated in a popular residential area...

Saxon Close, Crediton, EX17

2 Bedroom Coach House | Guide Price £230,000

Surprisingly spacious 2 bedroom coach house with parking and enclosed garden, 2 bedrooms, 2 bathrooms, ground floor kitc...

Taw Vale Close, North Tawton, EX20

3 Bedroom Semi-Detached House | Guide Price £235,000

A well proportioned three bedroom semi-detached home on a generous corner plot, offering garage, parking and no onward c...

East Street, Crediton EX17

3 Bedroom End of Terrace House | Guide Price £240,000

This beautifully presented end-terrace house offers incredibly spacious accommodation reaching 1,050sqft, including a la...

Helmores (Crediton)

Crediton, Devon, EX17 3LF

01363 777999

How much is your home worth?

Use our short form to request a valuation of your property.

Request a Valuation

Mortgage Calculator

Amount Borrowed: £
Total Amount Repayable: £
Total Monthly Payment: £
©2026 The Guild of Property Professionals. All rights reserved. Terms and Conditions | Privacy Policy | Cookie Policy | Complaints Policy | Members Login
The Guild of Property Professionals Trading Address: 121 Park Lane, London W1K 7AG. GPEA Limited. Registered in England & Wales.  Company No: 02819824.  Registered Office Address: 2 St. Stephen's Court, St. Stephen's Road, Bournemouth, Dorset, England, BH2 6LA.  VAT Registration No: 576 8795 61
Book a Property Valuation Update Cookies Preferences