Knaphill, Woking, Surrey, GU21

£785,000
SSTC
This property listing is now SSTC

4 Bedroom Detached House for sale in Woking

2 4 2
  • esirable Location
  • Three Floors
  • Walk in Wardrobe
  • Ensuite Shower Room
  • Four/Five Bedrooms
  • Open Plan Kitchen/Dining/Living Room
  • Garage
  • Close to Local Amenities

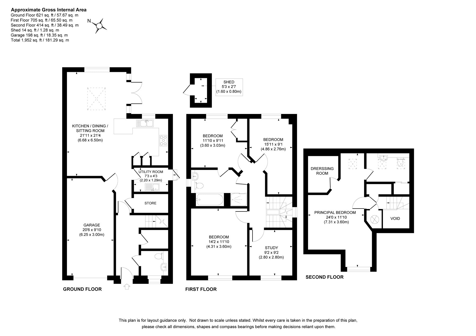
This impressive family home has been well maintained by the current owners and is set within a highly desirable position within the development, accessed through private gates and overlooking open common land. Both Knaphill village and Brookwood Station are close by, making this an ideal opportunity for families or those who commute.
The accommodation spans three floors, with the top level devoted to an elegant principal suite. This superb retreat features a walk-in wardrobe and a contemporary ensuite shower room.
On the first floor, there are three further well-proportioned double bedrooms, along with a separate living room that could easily be utilised as a fifth bedroom if required. The generously sized family bathroom is fitted with a stylish four-piece suite, comprising a bath, walk-in shower, WC, and a wash hand basin set within a vanity unit. It also benefits from convenient access from bedroom two
The ground floor forms the heart of the home, showcasing a beautifully designed open-plan kitchen, dining and living space ideal for modern family life. The kitchen is equipped with a range of base and wall mounted units, stone work surfaces, integrated appliances and a peninsula providing seating for two. A separate utility room sits just off the kitchen, while a cloakroom completes the ground floor.
Further benefits include an integral garage, offering excellent storage or potential for conversion (subject to the appropriate permissions). Externally, the rear garden has been laid with artificial grass as well a patio that provides space to relax or barbecue. To the front is a driveway with parking for two cars.
Location
Knaphill village has a vibrant range of shops, pubs, restaurants and a Post Office. For more comprehensive shopping Sainsbury's superstore is approximately quarter of a mile away. For commuting, nearby Brookwood station provides a regular service direct to Waterloo, Woking and Guildford. For those who enjoy the outdoors there is Stafford Lake which is ideal for dog walking and nearby Brookwood Country Park ideal for a family stroll on a Sunday.
N.B Annual Service Charge £756.16

Important Information

  • This is a Freehold property.

Property Ref: KNA230052

Share:

Similar Properties

Knaphill, Woking, GU21

4 Bedroom Detached House | £779,950

Set within the sought after Brookwood Farm Development in Knaphill, this impressive detached family home offers exceptio...

West End, Woking, Surrey, GU24

4 Bedroom Detached House | £769,950

This modern detached family home is ideally located approximately 715 metres from Gordon's School and within a short wal...

West End, Woking, Surrey, GU24

4 Bedroom Detached House | Offers in excess of £750,000

This extended detached family home is offered to the market in excellent condition having been beautifully maintained by...

West End, Woking, Surrey, GU24

4 Bedroom Detached House | Guide Price £792,500

** REALISTICALLY PRICED FOR A QUICK SALE ** A fabulous opportunity to acquire a character residence, located in a little...

Bisley, Woking, Surrey, GU24

5 Bedroom Detached House | £799,950

Being sold with recently approved planning permission (March 2026) for a single-storey extension to create an enlarged o...

Bisley, Woking, GU24

4 Bedroom Detached House | Offers in excess of £800,000

This detached family home is located on the popular Flowers Development in Bisley and is offered to the market in excell...

Seymours (Knaphill)

Knaphill, Surrey, GU21 2PP

01483 798969

How much is your home worth?

Use our short form to request a valuation of your property.

Request a Valuation

Mortgage Calculator

Amount Borrowed: £
Total Amount Repayable: £
Total Monthly Payment: £
©2026 The Guild of Property Professionals. All rights reserved. Terms and Conditions | Privacy Policy | Cookie Policy | Complaints Policy | Members Login
The Guild of Property Professionals Trading Address: 121 Park Lane, London W1K 7AG. GPEA Limited. Registered in England & Wales.  Company No: 02819824.  Registered Office Address: 2 St. Stephen's Court, St. Stephen's Road, Bournemouth, Dorset, England, BH2 6LA.  VAT Registration No: 576 8795 61
Book a Property Valuation Update Cookies Preferences