Knaphill, Woking, Surrey, GU21

£359,950
SSTC
This property listing is now SSTC

2 Bedroom Maisonette for sale in Woking

1 2 1
  • Character Maisonette
  • Newly Extended Lease
  • Driveway Providing Off Street Parking
  • Open Plan Kitchen/Lounge Area
  • Column Radiators Throughout
  • Luxurious Four Piece Family Bathroom
  • Close to Knaphill Village
  • Within Easy Reach of Brookwood Mainline Station

This stunning character conversion maisonette is ideally situated just a short walk from Knaphill village, offering easy access to a wide range of local amenities and convenient bus routes linking to both Woking and Brookwood Mainline Stations.
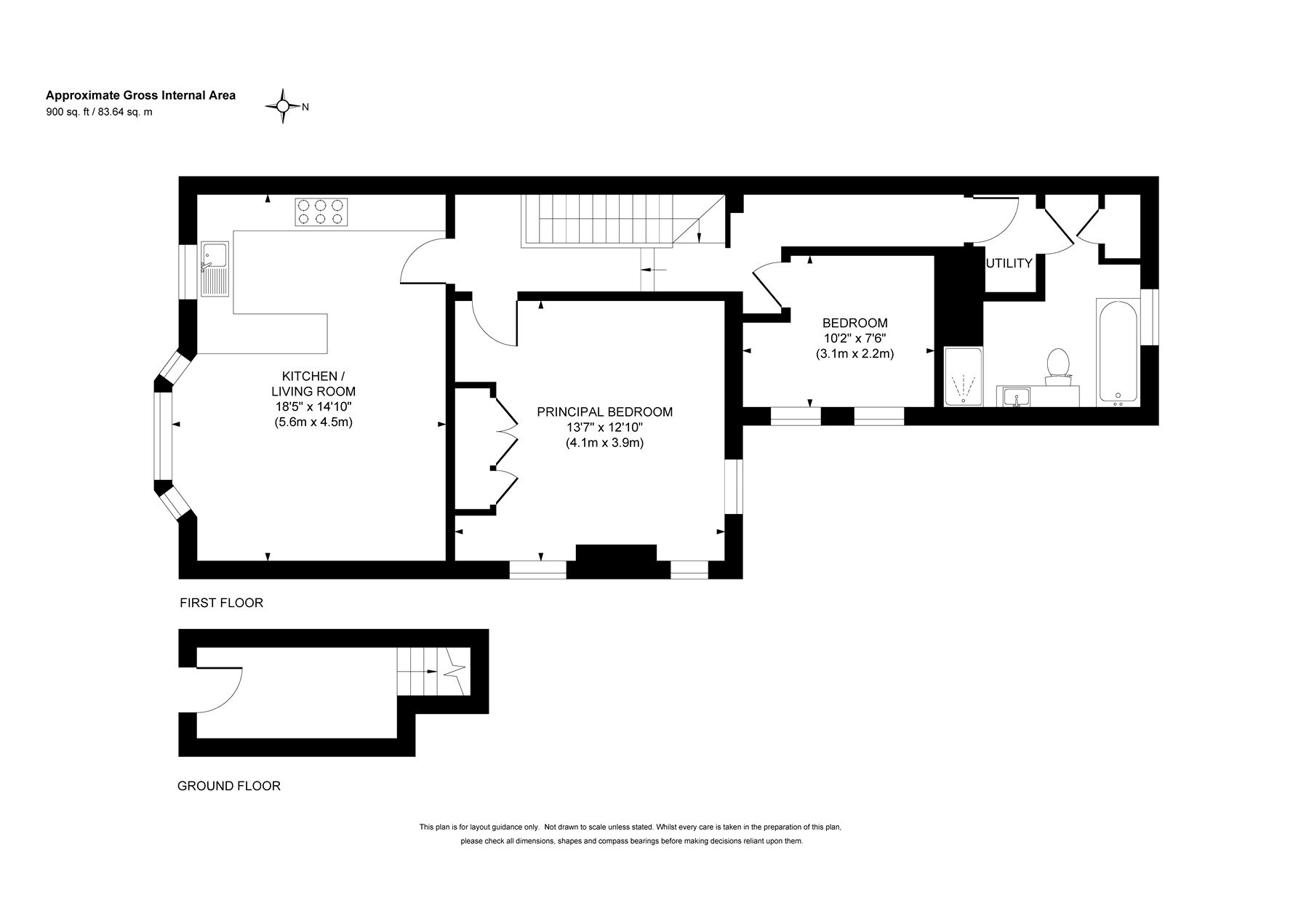
Accessed via its own private front door, the property opens into a welcoming entrance hall featuring engineered oak wood flooring, which continues up to the first-floor landing and through the main living space. The first-floor landing leads to all rooms, including two bedrooms. The principal bedroom is a generous double, complemented by an excellent range of built-in wardrobes. Both bedrooms share the use of a modern four-piece bathroom, fitted with a vanity unit and wash hand basin, WC, separate shower, and bath.
The main living area is an impressive open-plan space combining the lounge and kitchen. The lounge enjoys a charming feature fireplace, bay window, and a bespoke entertainment unit. The contemporary kitchen is fitted with a range of units, integrated appliances, and a breakfast bar with seating for three. For added comfort, underfloor heating is installed in both the kitchen and bathroom.
Externally, the property benefits from a front driveway providing parking for two vehicles and a recently extend lease is a further benefit.
Overall, this is a truly beautiful home, and viewings are highly recommended.

Property Information
Lease Length: 157 years
Service Charge: None
Rent Charge: None

Location
Knaphill village has a vibrant range of shops, pubs and restaurants, which includes a Post Office. For more comprehensive shopping, Sainsbury's superstore is approximately quarter of a mile away. For commuting, Brookwood station provides a regular service direct to London Waterloo, Woking and Guildford. For those who enjoy the outdoors, there is Brookwood Country Park, Sheets Heath and Basingstoke Canal close by, which is ideal for dog walking or a family stroll.

Important Information

  • This is a Leasehold property.

Property Ref: KNA250467

Share:

Similar Properties

Knaphill, Woking, Surrey, GU21

2 Bedroom End of Terrace House | £350,000

Situated in one of Knaphill's most sought after locations, this end of terrace home is ideally positioned within walking...

Knaphill, Woking, Surrey, GU21

3 Bedroom Terraced House | Offers in excess of £350,000

Offered with No Onward Chain | Popular Cul-de-Sac Location | Three Bedrooms | Conservatory | GarageSituated in a sought...

Bisley, Woking, Surrey, GU24

2 Bedroom Apartment | Offers in excess of £350,000

This spacious ground floor apartment offers a highly desirable location, tucked away at the end of a private development...

Knaphill, Woking, Surrey, GU21

2 Bedroom Terraced House | Guide Price £365,000

This immaculately presented terraced home has been renovated throughout by the current owners and is situated in a popul...

Woking, Surrey, GU21

3 Bedroom Terraced House | £365,000

Situated in a convenient residential location, this well-presented terraced home is ideally positioned close to popular...

Brookwood, Woking, Surrey, GU24

3 Bedroom End of Terrace House | Offers in excess of £375,000

This executive style end of terrace home is set in a small private gated development of just five houses, a short walk f...

Seymours (Knaphill)

Knaphill, Surrey, GU21 2PP

01483 798969

How much is your home worth?

Use our short form to request a valuation of your property.

Request a Valuation

Mortgage Calculator

Amount Borrowed: £
Total Amount Repayable: £
Total Monthly Payment: £
©2026 The Guild of Property Professionals. All rights reserved. Terms and Conditions | Privacy Policy | Cookie Policy | Complaints Policy | Members Login
The Guild of Property Professionals Trading Address: 121 Park Lane, London W1K 7AG. GPEA Limited. Registered in England & Wales.  Company No: 02819824.  Registered Office Address: 2 St. Stephen's Court, St. Stephen's Road, Bournemouth, Dorset, England, BH2 6LA.  VAT Registration No: 576 8795 61
Book a Property Valuation Update Cookies Preferences