Knaphill, Woking, Surrey, GU21

£735,000
SSTC
This property listing is now SSTC

4 Bedroom Detached House for sale in Woking

2 4 2
  • No Onward Chain
  • Four Bedrooms
  • Cul De Sac Location
  • Close to Local Schools
  • Ensuite to Master
  • Built in Wardrobes
  • Two Reception Rooms
  • Generous Kitchen
  • Backing onto Woodland
  • EV Charger

Offered to the market with no onward chain, this impressive detached family home is situated in one of Knaphill's most sought after cul de sac locations, conveniently close to Knaphill village with its wide range of amenities, as well as highly regarded primary and lower schools. The property is also within walking distance of Brookwood mainline station, providing excellent transport links.
The house is presented in immaculate condition throughout and enjoys an enviable position backing directly onto woodland, offering a wonderful sense of privacy and a peaceful setting.
To the front, the property boasts a generous frontage with well maintained gardens and ample off street parking, creating an attractive approach.
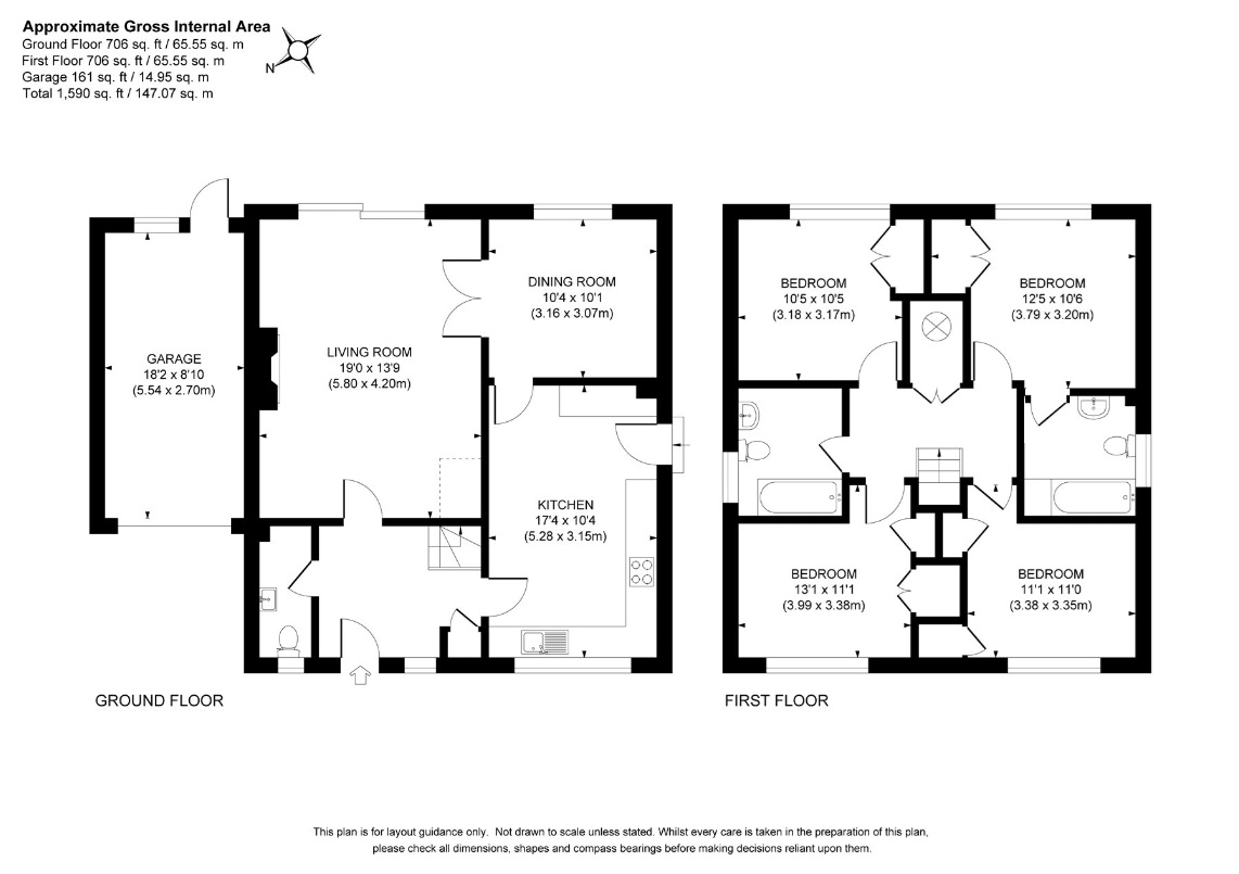
The accommodation comprises four well proportioned double bedrooms, all benefitting from built in wardrobes. The principal bedroom features an ensuite bathroom, while the remaining bedrooms are served by a neatly presented family bathroom.
On the ground floor, a welcoming entrance hall leads through to a spacious rear aspect living room, complete with a feature fireplace and sliding doors opening onto the rear garden. Double doors connect the lounge to the adjoining dining room, creating an ideal layout for both family living and entertaining.
The property also features a generous kitchen, fitted with an extensive range of base and eye level shaker style units, an integrated oven with gas hob and space for additional appliances. A downstairs cloakroom completes the ground floor accommodation.
Externally, the large rear garden backs directly onto woodland, offering excellent privacy. It features a well maintained lawn and a patio area, ideal for outdoor dining and entertaining.
The property further benefits from potential to extend (STPP), while a garage completes the accommodation.
Location
Knaphill village has a vibrant range of shops, pubs and restaurants, which includes a Post Office. For more comprehensive shopping, Sainsbury's superstore is approximately quarter of a mile away. For commuting, Brookwood station provides a regular service direct to London Waterloo, Woking and Guildford. For those who enjoy the outdoors, there is Brookwood Country Park, Sheets Heath and Basingstoke Canal close by, which is ideal for dog walking or a family stroll.

Important Information

  • This is a Freehold property.

Property Ref: KNA260110

Share:

Similar Properties

West End, Woking, Surrey, GU24

4 Bedroom Detached House | £735,000

Situated in a quiet and family friendly cul de sac, this generously proportioned four bedroom detached home is just 700...

West End, Woking, Surrey, GU24

3 Bedroom Detached Bungalow | £725,000

This spacious detached bungalow is located in one of West End's most sought after cul de sac locations, that is approxim...

Knaphill, Woking, Surrey, GU21

4 Bedroom Detached House | Offers in excess of £724,950

A beautifully presented detached family home, ideally situated within the highly desirable Brookwood Farm development, j...

Knaphill, Woking, GU21

6 Bedroom Detached House | Offers in excess of £750,000

This impressive detached family home is presented in excellent condition throughout and offers generously proportioned a...

Brookwood, Woking, Surrey, GU24

3 Bedroom Detached House | £750,000

Victoria Cottage is a beautifully presented detached period home that has undergone a dramatic refurbishment and extensi...

Knaphill, Woking, Surrey, GU21

6 Bedroom Detached House | Offers in excess of £750,000

Brambles is a substantial detached family home offering ample living space, boasting accommodation in excess of 2500sqft...

Seymours (Knaphill)

Knaphill, Surrey, GU21 2PP

01483 798969

How much is your home worth?

Use our short form to request a valuation of your property.

Request a Valuation

Mortgage Calculator

Amount Borrowed: £
Total Amount Repayable: £
Total Monthly Payment: £
©2026 The Guild of Property Professionals. All rights reserved. Terms and Conditions | Privacy Policy | Cookie Policy | Complaints Policy | Members Login
The Guild of Property Professionals Trading Address: 121 Park Lane, London W1K 7AG. GPEA Limited. Registered in England & Wales.  Company No: 02819824.  Registered Office Address: 2 St. Stephen's Court, St. Stephen's Road, Bournemouth, Dorset, England, BH2 6LA.  VAT Registration No: 576 8795 61
Book a Property Valuation Update Cookies Preferences