West End, Woking, Surrey, GU24

£153,000
SSTC
This property listing is now SSTC

2 Bedroom Maisonette for sale in Woking

1 2
  • Opportunity to Acquire 45% Share
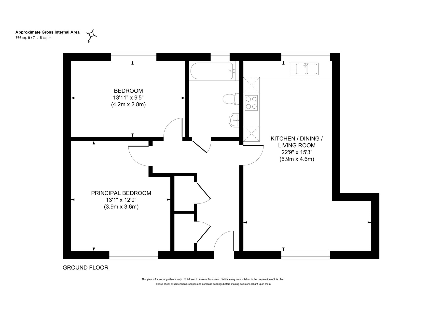
  • Ground Floor
  • Two Spacious Double Bedrooms
  • Allocated Parking
  • Close to Shops
  • Within Easy Reach of M3 and Brookwood Mainline Station
  • Open Plan Lounge/Kitchen/Dining Room

Opportunity to acquire a 45% share of this spacious two bedroom ground floor maisonette with parking.
Situated on a recently built development in West End, this spacious ground floor maisonette offers well proportioned accommodation throughout, perfect for first time buyers, downsizers, or investors alike.
The property boasts two generous double bedrooms, both offering ample space for furnishings and storage. The contemporary bathroom is finished with a sleek three-piece suite, offering a modern and fresh feel.
At the heart of the home is a light and airy open-plan living space, seamlessly combining the lounge, dining and kitchen areas. The modern kitchen is well equipped with a range of base and eye level units, an integrated oven and electric hob and a built-in fridge freezer, making it both stylish and practical.
Additional features include allocated parking, ensuring convenience for residents and visitors alike.
Located within easy reach of local shops and amenities, the property also benefits from excellent transport links, with the M3 motorway nearby and Brookwood mainline station providing direct access to London Waterloo.
A fantastic opportunity to secure a well appointed home in a prime location, early viewing is highly recommended.
Property Information
Lease Length: 120 years
N.B - have to pass relevant checks with Stonewater

West End village is conveniently located for access to Junction 3 of the M3 which in turn gives access to both Heathrow and Gatwick international airports. Education is well catered for with two excellent schools, the highly regarded Gordon's School and Holy Trinity primary school. The Gosden Parade provides a good range of shops to include a news agents, hairdressers and coffee shop. Local dining is also excellent with the Inn At West End and the Hare & Hounds directly in the village whilst local Chobham village also offers several similar pub/restaurants. Brookwood station is approximately 2.3 miles with a regular direct service to Waterloo

Important Information

  • This is a Leasehold property.

Property Ref: LIG250259

Share:

Similar Properties

Knaphill, Woking, Surrey, GU21

1 Bedroom Apartment | £125,000

EXTENSIVE MODERNISATION REQUIRED - This one bedrooms ground floor apartment is offered to market with no onward chain an...

Knaphill, Surrey, GU21

Apartment | Offers in excess of £120,000

A well-presented first floor studio apartment, offered to the market with no onward chain.

Mulgrave Way, Knaphill, Woking, GU21

1 Bedroom Apartment | £86,000

An opportunity to acquire a 40% share of this spacious first floor apartment, within easy reach of local shops and in ex...

Raglan Road, Woking, Surrey, GU21

1 Bedroom Maisonette | £162,500

This stylish ground floor maisonette is located in a charming period building and is ideally located as both Knaphill an...

Knaphill, Woking, Surrey, GU21

1 Bedroom Apartment | £169,950

This beautifully presented Victorian conversion apartment is ideally located within easy reach of Knaphill Village that...

Bisley, Woking, Surrey, GU24

1 Bedroom Maisonette | Offers in excess of £180,000

Situated on the popular Flowers development in Bisley, this well-presented ground floor maisonette offers comfortable an...

Seymours (Knaphill)

Knaphill, Surrey, GU21 2PP

01483 798969

How much is your home worth?

Use our short form to request a valuation of your property.

Request a Valuation

Mortgage Calculator

Amount Borrowed: £
Total Amount Repayable: £
Total Monthly Payment: £
©2026 The Guild of Property Professionals. All rights reserved. Terms and Conditions | Privacy Policy | Cookie Policy | Complaints Policy | Members Login
The Guild of Property Professionals Trading Address: 121 Park Lane, London W1K 7AG. GPEA Limited. Registered in England & Wales.  Company No: 02819824.  Registered Office Address: 2 St. Stephen's Court, St. Stephen's Road, Bournemouth, Dorset, England, BH2 6LA.  VAT Registration No: 576 8795 61
Book a Property Valuation Update Cookies Preferences