West End, Woking, Surrey, GU24

£925,000
SSTC
This property listing is now SSTC

4 Bedroom Semi-Detached House for sale in Woking

3 4 3
  • Within 830m of Gordon's School
  • Close to the Holy Trinity School
  • Open Plan Kitchen/Dining Room
  • Originally Built Circa 1909
  • Substantial Rear Garden Approx. 80ft in Length
  • Two Reception Rooms
  • Utility Room
  • Driveway With Parking For Three Cars
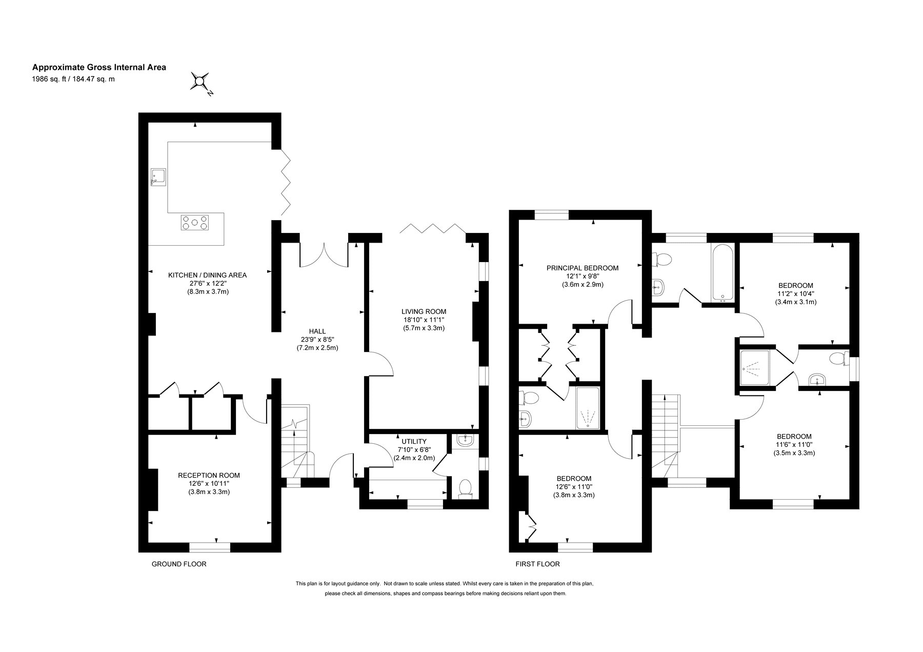
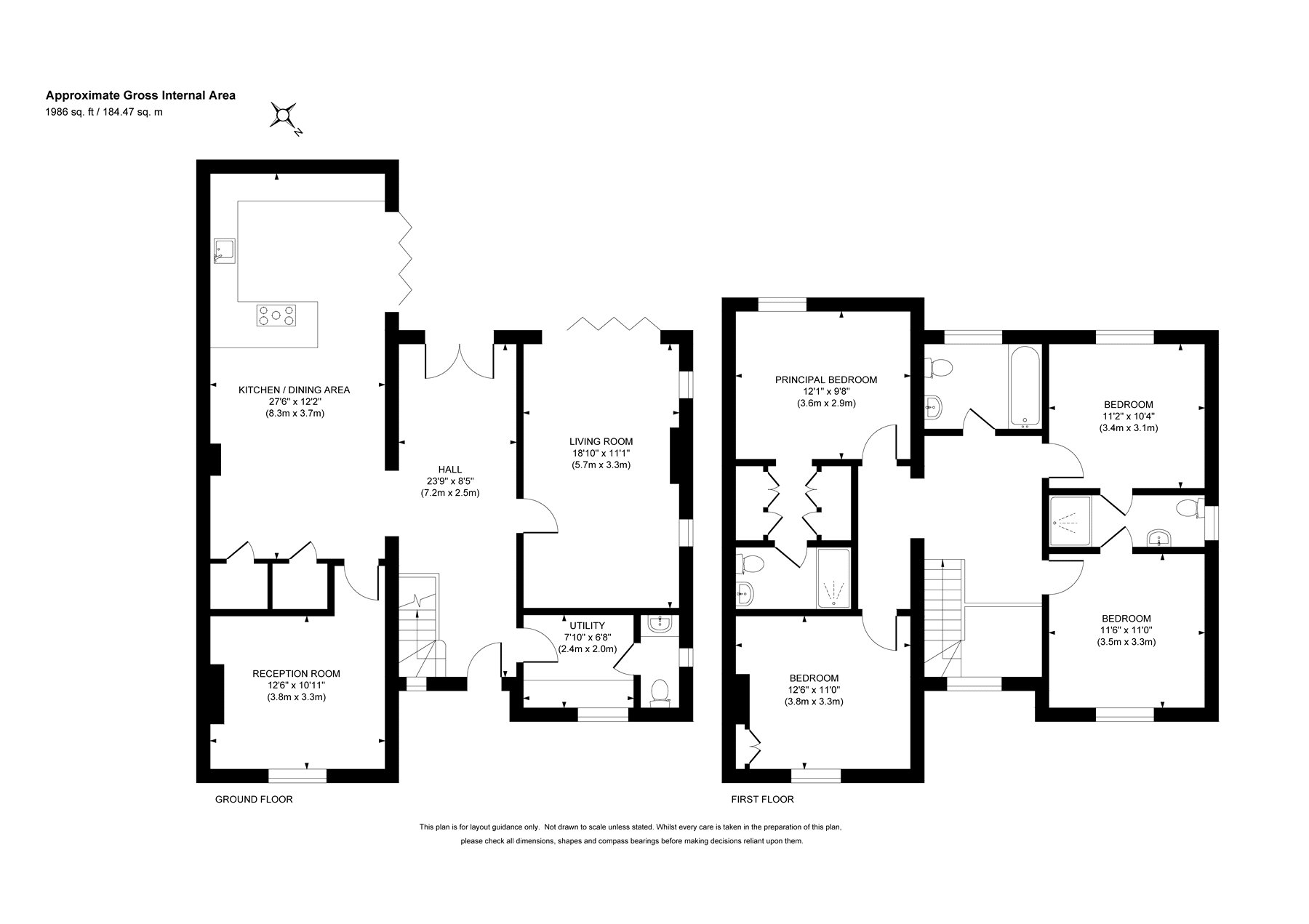
  • Accommodation in Excess of 1950sqft

Substantial Character Home within 830m of Gordon's School
Dating back to circa 1909, this substantial character home seamlessly blends period charm with contemporary style. Having been thoughtfully extended and remodelled by the current owners, the property is presented in excellent condition throughout and offers spacious, well balanced accommodation ideal for modern family living.
You are welcomed into the home via an inviting entrance hall which sets the tone for the rest of the property. The ground floor features two reception rooms, a family room and a lounge, both enhanced by log burners, creating a warm and welcoming atmosphere. The living room benefits from bi-folding doors opening directly onto the rear garden, perfect for indoor-outdoor living and entertaining.
To the rear of the home lies a generous open plan kitchen/dining room, beautifully appointed with high gloss base and eye level units, stone worktops and a range of integrated appliances. A separate utility room and a stylish downstairs cloakroom complete the ground floor accommodation. Underfloor heating runs throughout the ground floor, providing comfort and efficiency.
Upstairs, there are four well proportioned double bedrooms. The principal suite features a dressing area and a contemporary ensuite shower room. Bedroom two enjoys access to a Jack and Jill bathroom, shared with bedroom three. In addition there is a contemporary family bathroom fitted with a three piece suite including a wash hand basin, w/c and bath. An impressive galleried landing overlooks the entrance hall, adding a real sense of space and grandeur.
Externally, the rear garden extends to approximately 80ft and is mainly laid to lawn, with a large paved patio providing an ideal area for outdoor dining and relaxation. To the front, a private driveway offers parking for up to three vehicles.
This exceptional home offers the perfect blend of character, comfort and convenience, ideally located within 830 metres of the highly regarded Gordon's School.

Location

West End village is conveniently located for access to Junction 3 of the M3 which in turn gives access to both Heathrow and Gatwick international airports. Education is well catered for with two excellent schools, the highly regarded Gordon's School and Holy Trinity primary school. The Gosden Parade provides a good range of shops to include a news agents, hairdressers and coffee shop. Local dining is also excellent with the Inn At West End and the Hare & Hounds directly in the village whilst local Chobham village also offers several similar pub/restaurants. Brookwood station is approximately 2.3 miles with a regular direct service to Waterloo

Important Information

  • This is a Freehold property.

Property Ref: LIG240332

Share:

Similar Properties

Bisley, Woking, Surrey, GU24

4 Bedroom Detached House | £900,000

Discover 307B Guildford Road, Bisley — a beautifully finished four-bedroom detached home near Woking. High-spec interior...

West End, Woking, Surrey, GU24

4 Bedroom Detached House | Offers in excess of £900,000

This exceptional four-bedroom family home has been beautifully refurbished throughout, showcasing a seamless blend of co...

West End, Woking, Surrey, GU24

4 Bedroom Detached House | Offers in excess of £900,000

Set within a desirable semi-rural setting in the West End, this substantial detached family home occupies a generous plo...

Bisley, Woking, Surrey, GU24

4 Bedroom Detached House | £950,000

Discover 307A Guildford Road, Bisley — a rare new-build four-bedroom detached home near Woking. High-spec interiors, lan...

Knaphill, Woking, Surrey, GU21

4 Bedroom Detached House | Offers in excess of £1,000,000

Cheylesmore House is an exceptional detached residence offering approximately 2,674 sq ft of meticulously designed accom...

Knaphill, Woking, Surrey, GU21

6 Bedroom Detached House | £1,000,000

Set within a highly desirable cul-de-sac in Knaphill, this substantial detached family home offers an exceptional blend...

Seymours (Knaphill)

Knaphill, Surrey, GU21 2PP

01483 798969

How much is your home worth?

Use our short form to request a valuation of your property.

Request a Valuation

Mortgage Calculator

Amount Borrowed: £
Total Amount Repayable: £
Total Monthly Payment: £
©2026 The Guild of Property Professionals. All rights reserved. Terms and Conditions | Privacy Policy | Cookie Policy | Complaints Policy | Members Login
The Guild of Property Professionals Trading Address: 121 Park Lane, London W1K 7AG. GPEA Limited. Registered in England & Wales.  Company No: 02819824.  Registered Office Address: 2 St. Stephen's Court, St. Stephen's Road, Bournemouth, Dorset, England, BH2 6LA.  VAT Registration No: 576 8795 61
Book a Property Valuation Update Cookies Preferences