West End, Woking, Surrey, GU24

£895,000
SSTC
This property listing is now SSTC

4 Bedroom Detached House for sale in Woking

2 4 3
  • Stunning detached family home built in 2018 and significantly enlarged
  • High-spec, contemporary accommodation arranged over three floors
  • Sought-after West End development with a semi-rural village setting
  • Exceptional open-plan kitchen / dining / family room with bespoke fittings and bi-fold doors
  • Luxurious top-floor principal suite with cinema system, Juliet balcony and ensuite
  • Excellent school catchment including Gordon's School and Holy Trinity Primary

OFFERED TO MARKET WITH NO ONWARD CHAIN.
A detached family home built in 2018 and dramatically enlarged to create quite stunning accommodation arranged over three floors. Located in one of West End's most sought after developments and enjoying all of the qualities afforded by a traditional semi rural village. Families will particularly enjoy the environment with high quality schools within easy reach to include the renowned Gordon's School as well as the Holy trinity primary school.
Internally, our clients have spared no expense in designing a high spec, high tech, 'Smart Home' environment to include, a wired speaker system, as well as remote curtains and blinds.
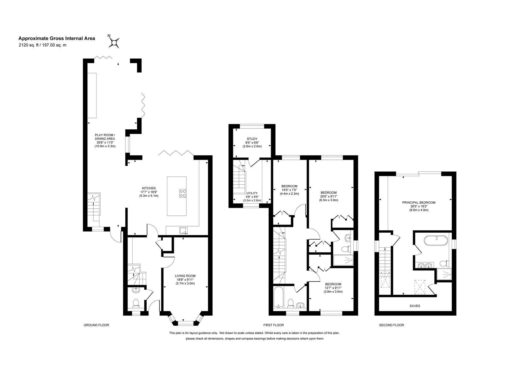
Downstairs is the ultimate in modern family living with a fabulous bespoke fitted kitchen, featuring stylish contemporary units and quartz worktops. An extensive array of fitted appliances are included and feature an integrated induction hob with a central filter extractor set into the central island. The kitchen flows seamlessly into a generous dining and family room with two sets of bi-fold doors, complimented by a further set in the kitchen, creating a sensational entertaining area. Stairs lead to the first floor which features a useful utility area as well as an office.
The primary first floor accommodation is accessed via the original staircase which features three bedrooms, all with built in wardrobes. The largest of these has the use of an impressive ensuite shower room with underfloor heating. The remaining bedrooms have the use of an equally impressive family bathroom, again with underfloor heating. Further stairs lead to the principal suite and is one for those who enjoy a touch of luxury. The bedroom area comes complete with an integrated cinema projection unit with a retractable screen. The large Juliet balcony, with sliding doors, takes full advantage of the view to the rear, overlooking a large wooded copse. For those who enjoy stargazing, there is a rooflight with a remote opener as well as a remotely operated screen closure. Adjoining is a stunning fully tiled ensuite bathroom with a stylish free standing bath, as well as a walk-in shower featuring a mosaic tiled seat and body jets. Completing this room is a useful dressing area with access to deep eaves storage. Other notable features include air conditioning on the second floor, luxury herringbone wood flooring on the ground floor and a downstairs cloakroom.

Outside
A well proportioned rear garden, predominantly laid to lawn and offering a pleasant degree of privacy. The garden features a generous paved terrace directly adjoining the house, ideal for outdoor dining and entertaining, with ample space for garden furniture and a barbecue area..
Enclosed via panel fencing and a post-and-rail fence to the rear, the garden enjoys an attractive outlook towards mature trees beyond, creating a peaceful, semi-rural feel. Overall, the garden is thoughtfully arranged, easy to maintain, and perfectly suited to both relaxation and family use.
To the front is off street parking for one car
Location
West End village is conveniently located for access to Junction 3 of the M3 which in turn gives access to both Heathrow and Gatwick international airports. Education is well catered for with two excellent schools, the highly regarded Gordon's School and Holy Trinity primary school. The Gosden Parade provides a good range of shops to include a news agents, hairdressers and coffee shop. Local dining is also excellent with the Inn At West End and the Hare & Hounds directly in the village whilst local Chobham village also offers several similar pub/restaurants. Brookwood station is approximately 2.3 miles with a regular direct service to Waterloo
N.B Annual Road Charges Approx. £300.00

Important Information

  • This is a Freehold property.

Property Ref: KNA210471

Share:

Similar Properties

West End, Woking, Surrey, GU24

4 Bedroom House | £850,000

A beautifully presented detached family home, enviably positioned within 400 metres of Gordon's School and enjoying unin...

Knaphill, Woking, Surrey, GU21

5 Bedroom Detached House | Offers in excess of £850,000

This impressive detached family home occupies a sought-after position on the Brookwood Farm Development, overlooking com...

Bisley, Woking, Surrey, GU24

5 Bedroom Detached House | £845,000

Located in the popular village of Bisley, this spacious detached chalet bungalow offers impressive accommodation that ex...

Bisley, Woking, Surrey, GU24

4 Bedroom Detached House | £900,000

Discover 307B Guildford Road, Bisley — a beautifully finished four-bedroom detached home near Woking. High-spec interior...

West End, Woking, Surrey, GU24

4 Bedroom Detached House | Offers in excess of £900,000

This exceptional four-bedroom family home has been beautifully refurbished throughout, showcasing a seamless blend of co...

West End, Woking, Surrey, GU24

4 Bedroom Detached House | Offers in excess of £900,000

Set within a desirable semi-rural setting in the West End, this substantial detached family home occupies a generous plo...

Seymours (Knaphill)

Knaphill, Surrey, GU21 2PP

01483 798969

How much is your home worth?

Use our short form to request a valuation of your property.

Request a Valuation

Mortgage Calculator

Amount Borrowed: £
Total Amount Repayable: £
Total Monthly Payment: £
©2026 The Guild of Property Professionals. All rights reserved. Terms and Conditions | Privacy Policy | Cookie Policy | Complaints Policy | Members Login
The Guild of Property Professionals Trading Address: 121 Park Lane, London W1K 7AG. GPEA Limited. Registered in England & Wales.  Company No: 02819824.  Registered Office Address: 2 St. Stephen's Court, St. Stephen's Road, Bournemouth, Dorset, England, BH2 6LA.  VAT Registration No: 576 8795 61
Book a Property Valuation Update Cookies Preferences