West End, Woking, Surrey, GU24

Offers in excess of
£550,000
SSTC
This property listing is now SSTC

4 Bedroom Semi-Detached House for sale in Woking

2 4 3
  • Within 585m of Gordons School
  • Quiet Cul de Sac Location
  • Master Bedroom with En Suite
  • Garage
  • Downstairs Cloakroom
  • Driveway With Parking For Two Cars
  • Within Easy Raach of Holy Trinity School
  • Stunning Kitchen

A beautifully presented and thoughtfully extended semi-detached home, tucked away in a quiet cul-de-sac and perfectly positioned within approximately 585m of the highly regarded Gordon's School.
Offering versatile accommodation arranged over three floors, this superb property is ideal for modern family living.
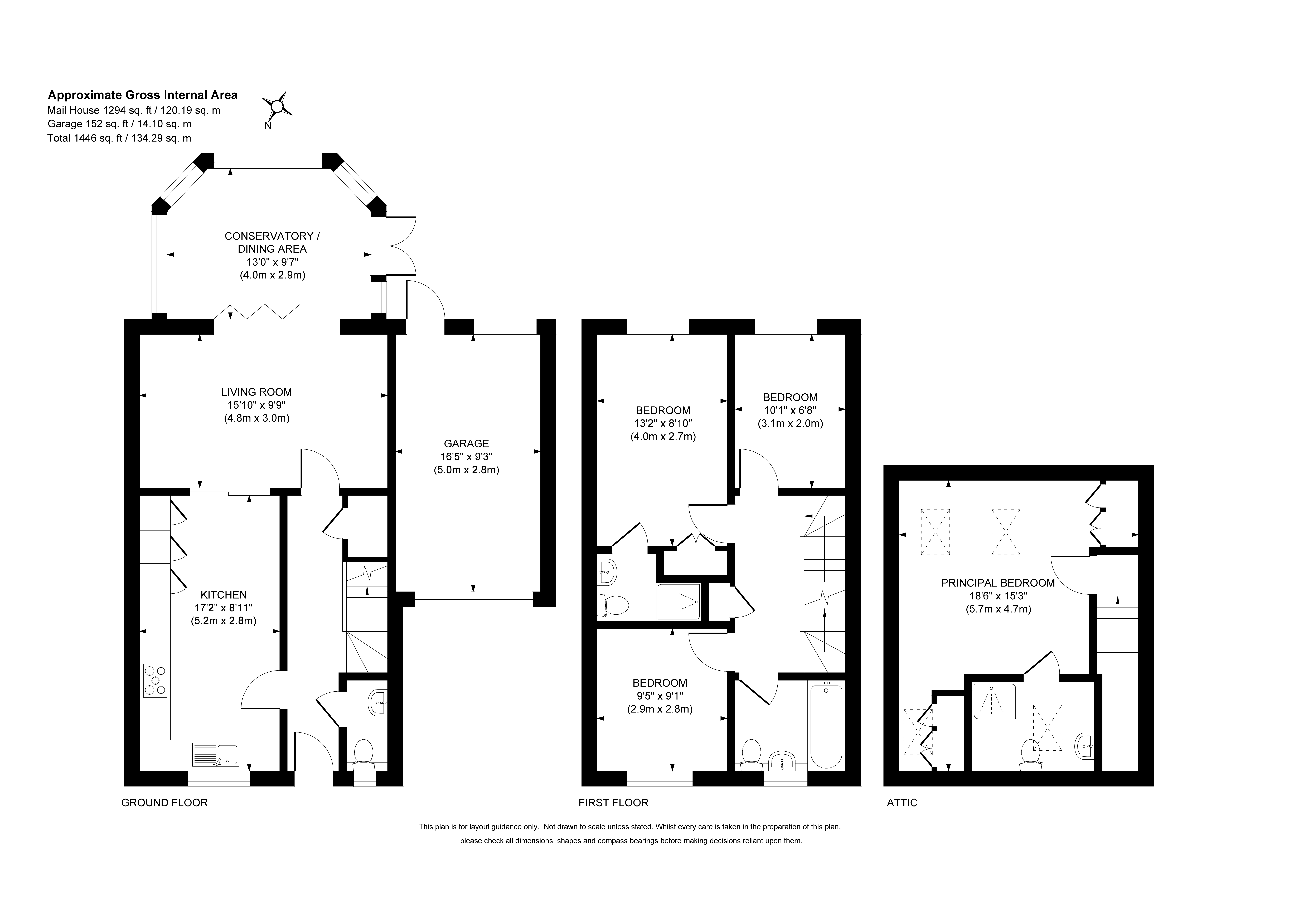
The top floor, created via an impressive loft conversion, features a luxurious principal bedroom complete with stylish en-suite shower room and built-in wardrobes.
On the first floor, there are three further bedrooms. Bedroom Two benefits from its own en-suite, while the remaining bedrooms are served by a well-appointed family bathroom.
The ground floor includes a recently updated kitchen, fitted with a range of base and eye-level shaker-style units, solid wood worktops, integrated appliances and a breakfast bar ideal for casual dining. Engineered wood flooring runs seamlessly from the kitchen through into the lounge, enhancing the sense of space and flow. The welcoming lounge features bi-folding doors that open into the conservatory, currently used as a dining room, providing flexible living space and enjoying pleasant views over the garden. A downstairs cloakroom completes the layout.
Outside, the property enjoys a pleasant rear garden, thoughtfully laid with artificial grass for low maintenance enjoyment, along with a garage and a driveway providing parking for two vehicles at the front.
A fantastic opportunity to acquire a spacious, turn-key family home in a sought-after location close to outstanding schooling.
Location
West End village is conveniently located for access to Junction 3 of the M3 which in turn gives access to both Heathrow and Gatwick international airports. Education is well catered for with two excellent schools, the highly regarded Gordon's School and Holy Trinity primary school. The Gosden Parade provides a good range of shops to include a news agents, hairdressers and coffee shop. Local dining is also excellent with the Inn At West End and the Hare & Hounds directly in the village whilst local Chobham village also offers several similar pub/restaurants. Brookwood station is approximately 2.3 miles with a regular direct service to Waterloo.

Important Information

  • This is a Freehold property.

Property Ref: KNA250472

Share:

Similar Properties

Knaphill, Woking, Surrey, GU21

4 Bedroom Detached House | Offers in excess of £550,000

This detached home is located in a quiet private cul-de-sac and is within walking distance of Brookwood Mainline Station...

Bisley, Woking, Surrey, GU24

3 Bedroom Link Detached House | £550,000

Beautifully Updated 3-Bedroom Link-Detached Home in Immaculate ConditionThis superbly presented three-bedroom link-detac...

Woking, Surrey, GU21

4 Bedroom Semi-Detached House | Guide Price £550,000

Spacious 4-Bedroom Family Home Within Walking Distance of Hermitage SchoolsEasy Access to Brookwood Mainline StationIdea...

West End, Woking, Surrey, GU24

3 Bedroom Semi-Detached House | £556,500

A stunning semi-detached home located in the sought after village of West End. The property is offered to the market in...

West End, Woking, Surrey, GU24

3 Bedroom Detached House | £560,000

Offered to the market in the highest order, this beautifully renovated detached home is ideally located within approxima...

West End, Woking, Surrey, GU24

3 Bedroom Semi-Detached House | £565,000

An extremely well presented semi detached family home located in a pleasant courtyard style environment, on the highly s...

Seymours (Knaphill)

Knaphill, Surrey, GU21 2PP

01483 798969

How much is your home worth?

Use our short form to request a valuation of your property.

Request a Valuation

Mortgage Calculator

Amount Borrowed: £
Total Amount Repayable: £
Total Monthly Payment: £
©2026 The Guild of Property Professionals. All rights reserved. Terms and Conditions | Privacy Policy | Cookie Policy | Complaints Policy | Members Login
The Guild of Property Professionals Trading Address: 121 Park Lane, London W1K 7AG. GPEA Limited. Registered in England & Wales.  Company No: 02819824.  Registered Office Address: 2 St. Stephen's Court, St. Stephen's Road, Bournemouth, Dorset, England, BH2 6LA.  VAT Registration No: 576 8795 61
Book a Property Valuation Update Cookies Preferences