Bisley, Woking, Surrey, GU24

Offers in excess of
£180,000

1 Bedroom Maisonette for sale in Woking

1 1 1
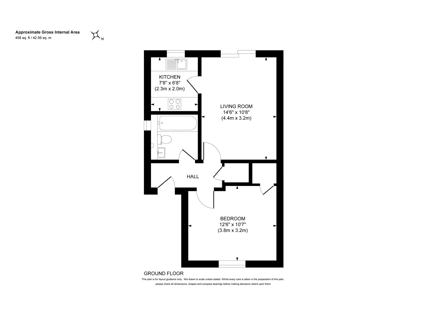
  • Ground Floor Maisonette
  • Direct Access to Communal Garden
  • Spacious Master Bedrooms
  • Recently Updated Bathroom & Kitchen
  • Close to Shops

Situated on the popular Flowers development in Bisley, this well-presented ground floor maisonette offers comfortable and modern living in a convenient location.
The property has been well maintained by the current vendor, with both the kitchen and bathroom recently updated to a contemporary standard. Accommodation includes a generous double bedroom featuring built-in wardrobes, providing excellent storage.
The spacious lounge/dining room offers a bright and welcoming living space, with a door leading directly out to the communal garden, ideal for relaxing or enjoying outdoor space.
Further benefits include close proximity to local shops and excellent transport links, including Brookwood mainline station and easy access to the M3, making this an ideal choice for commuters.
An attractive home suited to first-time buyers, downsizers, or investors alike.
Property Information
Lease Length: 146 Years
Service Charge: Approx. £564.00 pa
Location
Bisley village sits conveniently for access to both Woking (3.4 Miles) and Guildford (7.7 miles) whilst the M3 is approximately 2 miles. There is a Primary school in the village with secondary schools being easily accessible in West End (Gordons) and St Johns (Winston Churchill). There is a local Sainsburys within the village as well as an excellent continental butcher. A larger Sainsburys superstore is within a mile in nearby Knaphill.
For those who enjoy the outdoors Bisley village is surrounded by acres of common land at nearby Brentmoor Heath as well as Stafford Lake. Nearby Brookwood station provides a regular direct service to Waterloo.

Important Information

  • This is a Leasehold property.

Property Ref: KNA250474

Share:

Similar Properties

Knaphill, Woking, Surrey, GU21

1 Bedroom Apartment | £169,950

This beautifully presented Victorian conversion apartment is ideally located within easy reach of Knaphill Village that...

Raglan Road, Woking, Surrey, GU21

1 Bedroom Maisonette | £162,500

This stylish ground floor maisonette is located in a charming period building and is ideally located as both Knaphill an...

West End, Woking, Surrey, GU24

2 Bedroom Maisonette | £153,000

Opportunity to acquire a 45% share of this spacious two bedroom ground floor maisonette with parking.

West End, Woking, Surrey, GU24

1 Bedroom Maisonette | £199,950

This spacious ground floor maisonette presents a fantastic opportunity for buyers looking to put their own stamp on a pr...

Knaphill, Woking, Surrey, GU21

1 Bedroom Apartment | £199,950

Situated in a quiet cul-de-sac and offered to the market with no onward chain, this ground floor maisonette is convenien...

Bisley, Woking, Surrey, GU24

1 Bedroom Apartment | Offers in excess of £215,000

This modern first floor apartment is offered to the market in excellent condition and is located in a private gated deve...

Seymours (Knaphill)

Knaphill, Surrey, GU21 2PP

01483 798969

How much is your home worth?

Use our short form to request a valuation of your property.

Request a Valuation

Mortgage Calculator

Amount Borrowed: £
Total Amount Repayable: £
Total Monthly Payment: £
©2026 The Guild of Property Professionals. All rights reserved. Terms and Conditions | Privacy Policy | Cookie Policy | Complaints Policy | Members Login
The Guild of Property Professionals Trading Address: 121 Park Lane, London W1K 7AG. GPEA Limited. Registered in England & Wales.  Company No: 02819824.  Registered Office Address: 2 St. Stephen's Court, St. Stephen's Road, Bournemouth, Dorset, England, BH2 6LA.  VAT Registration No: 576 8795 61
Book a Property Valuation Update Cookies Preferences