West End, Woking, Surrey, GU24

£625,000
SSTC
This property listing is now SSTC

4 Bedroom Detached House for sale in Woking

2 4 2
  • Within 600m of Gordons School
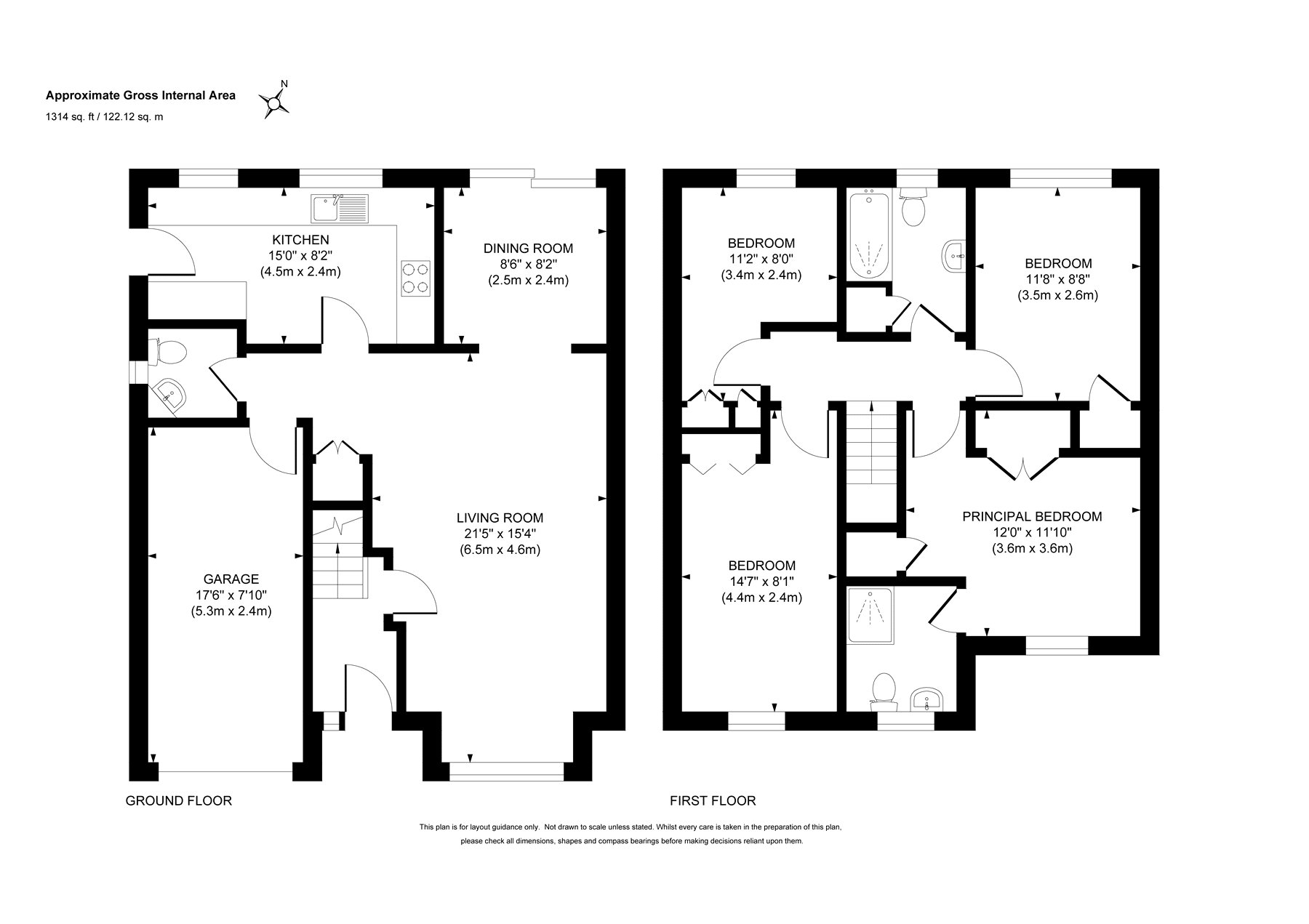
  • Four Double Bedrooms
  • Recently Updated Kitchen
  • Garage
  • Downstairs Cloakroom
  • Ensuite to Master
  • Driveway With Parking For Two Cars
  • No Onward Chain

Tucked away in a quiet cul-de-sac comprising just three homes, this beautifully presented detached family residence is situated in the highly sought after village of West End. The property enjoys an enviable location approximately 600 metres from the renowned Gordon's School and within easy walking distance of the equally well regarded Holy Trinity School.
Offered to the market with no onward chain, the home provides spacious and versatile accommodation throughout. There are four generously proportioned double bedrooms, all benefiting from built-in wardrobes. The principal bedroom features the added convenience of an ensuite shower room, while the remaining bedrooms are served by a well appointed family bathroom.
The recently updated kitchen is fitted with an extensive range of high gloss base and eye level units, complemented by elegant stone worktops, creating a sleek, modern and highly functional space for everyday living. The generous living room and separate dining room, the latter featuring sliding doors opening onto the garden, offer excellent areas for both relaxation and entertaining.
Further benefits include a downstairs cloakroom, an attached garage with excellent potential for conversion (subject to the necessary planning consents) and a private driveway providing off-street parking.
Outside, the rear garden is private and secluded, making it ideal for family enjoyment or entertaining guests. A charming pergola-covered patio area provides a sheltered and inviting space to relax and enjoy the outdoors.
Location
West End village provides excellent connectivity, with easy access to Junction 3 of the M3, offering routes to Heathrow and Gatwick airports. The area boasts superb educational options, including the prestigious Gordon's School and Holy Trinity Primary. The nearby Gosden Parade offers convenient local shopping, including a newsagent, hairdresser, and coffee shop. For dining, residents can enjoy the popular Inn at West End or explore a wider selection of pubs and restaurants in nearby Chobham village. Brookwood Station is just 2.3 miles away, offering a direct rail link to London Waterloo.

Important Information

  • This is a Freehold property.

Property Ref: KNA230394

Share:

Similar Properties

Bisley, Woking, Surrey, GU24

4 Bedroom Semi-Detached House | £625,000

Rarely available, Hope Cottage enjoys an enviable position in the heart of Bisley village, overlooking the village green...

West End, Woking, Surrey, GU24

4 Bedroom Detached House | £625,000

Offered to the market with no onward chain, this well presented detached family home is tucked away in a quiet cul-de-sa...

Knaphill, Woking, Surrey, GU21

3 Bedroom Detached Bungalow | Guide Price £600,000

A rarely available detached bungalow, offered to the market with no onward chain, enjoying a superb position close to co...

West End, Woking, Surrey, GU24

4 Bedroom Detached House | £635,000

A well presented four bedroom detached family home, ideally located on the ever popular Kings Road in West End. The prop...

Knaphill, Woking, Surrey, GU21

4 Bedroom Detached House | £639,950

This beautifully presented detached family home is offered to the market in excellent condition and is ideally located w...

Bisley, Woking, Surrey, GU24

3 Bedroom Detached House | £650,000

** NO ONWARD CHAIN ** An extremely well proportioned detached family home, located in a prominent position within the vi...

Seymours (Knaphill)

Knaphill, Surrey, GU21 2PP

01483 798969

How much is your home worth?

Use our short form to request a valuation of your property.

Request a Valuation

Mortgage Calculator

Amount Borrowed: £
Total Amount Repayable: £
Total Monthly Payment: £
©2026 The Guild of Property Professionals. All rights reserved. Terms and Conditions | Privacy Policy | Cookie Policy | Complaints Policy | Members Login
The Guild of Property Professionals Trading Address: 121 Park Lane, London W1K 7AG. GPEA Limited. Registered in England & Wales.  Company No: 02819824.  Registered Office Address: 2 St. Stephen's Court, St. Stephen's Road, Bournemouth, Dorset, England, BH2 6LA.  VAT Registration No: 576 8795 61
Book a Property Valuation Update Cookies Preferences