West End, Woking, Surrey, GU24

Offers in excess of
£600,000

3 Bedroom Link Detached House for sale in Woking

2 3 2
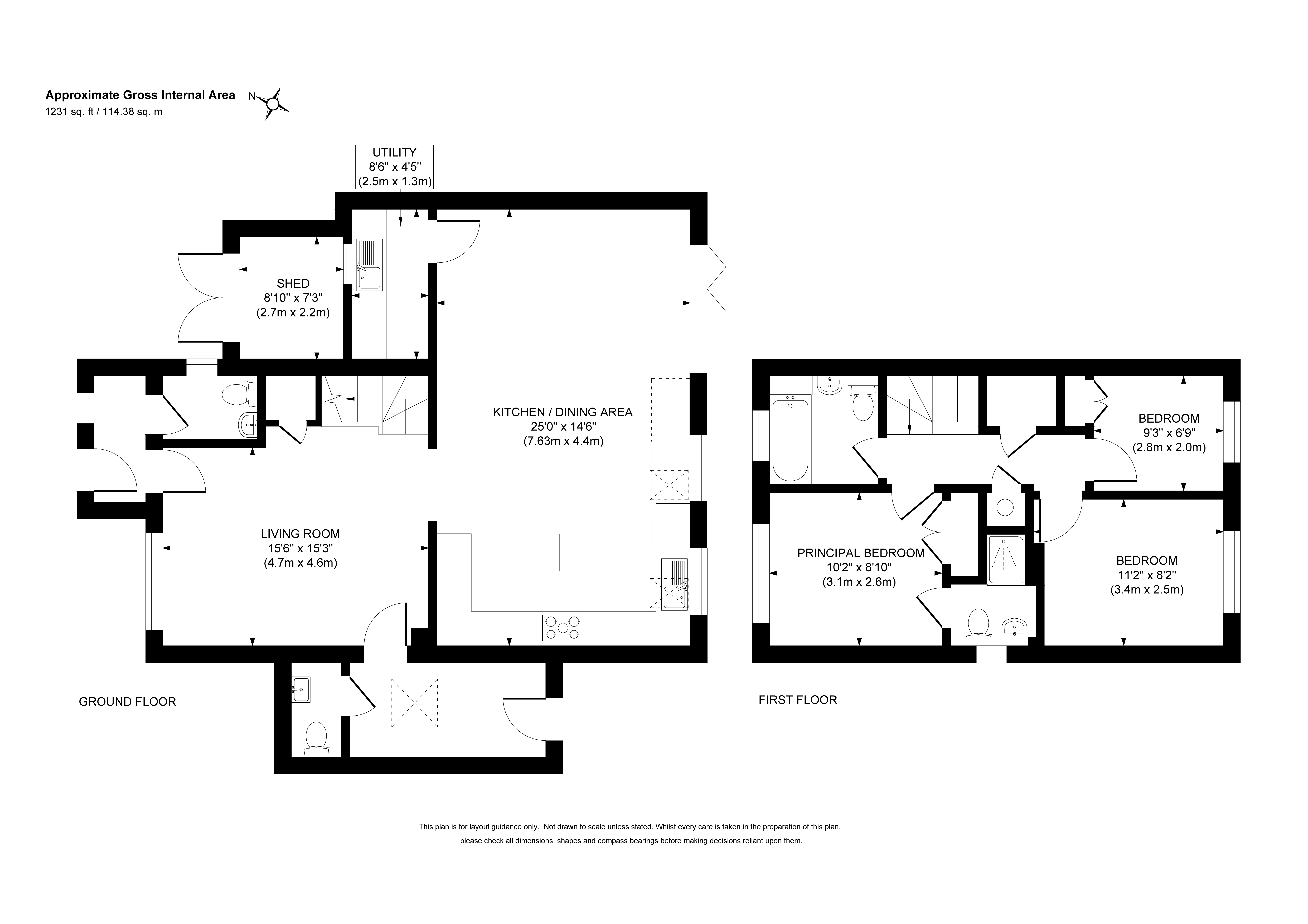
  • Three Bedrooms
  • Two Reception Rooms
  • Ensuite Shower Room
  • Family Bathroom
  • Modern Kitchen
  • Downstairs Cloakroom
  • Driveway
  • Delightful Front And Rear Gardens

Nestled in a peaceful cul-de-sac and just 800 metres from the highly regarded Gordon's School, this beautifully presented link detached family home offers exceptional living space, having been modernised and meticulously maintained by the current owner.
The property has been thoughtfully extended on the ground floor to create a truly impressive open plan kitchen/dining room, the heart of the home, featuring a stylish range of base and eye level units, luxurious stone worktops, a central island and plenty of space for both cooking and entertaining.
Further ground floor accommodation includes a welcoming lounge, a separate utility room, a downstairs cloakroom and a versatile additional reception room, currently used as a beauty room. This space benefits from its own private entrance and toilet, making it ideal for those running a business from home or in need of a dedicated office or guest suite.
Upstairs, you will find three well proportioned bedrooms, including a master bedroom with a sleek ensuite shower room and a contemporary family bathroom serving the remaining bedrooms.
Outside, the property boasts a private rear garden, perfect for outdoor entertaining, with a generous patio area and a neatly maintained lawn. To the front, there is a driveway providing off-road parking and access to storage in the front part of the garage.
This home is a rare find in such a sought-after location and is ideal for families looking for space, style, and convenience. Early viewing is highly recommended.

Location
West End village is conveniently located for access to Junction 3 of the M3 which in turn gives access to both Heathrow and Gatwick international airports. Education is well catered for with two excellent schools, the highly regarded Gordon's School and Holy Trinity primary school. The Gosden Parade provides a good range of shops to include a news agents, hairdressers and coffee shop. Local dining is also excellent with the Inn At West End and the Hare & Hounds directly in the village whilst local Chobham village also offers several similar pub/restaurants. Brookwood station is approximately 2.3 miles with a regular direct service to Waterloo.

Important Information

  • This is a Freehold property.

Property Ref: 58085_KNA160022

Share:

Similar Properties

Knaphill, Woking, Surrey, GU21

2 Bedroom Apartment | Offers in excess of £600,000

Florence Court is a gated development of luxurious character apartments, set within a converted Victorian building that...

St Johns, Woking, Surrey, GU21

5 Bedroom Semi-Detached House | Offers in excess of £600,000

This semi-detached family home offers spacious living accommodation and enjoys one of the largest gardens on the develop...

Knaphill, Woking, Surrey, GU21

4 Bedroom Detached House | Offers in excess of £600,000

This detached family home is presented to the market in excellent condition having been modernised and beautifully maint...

Pirbright, Woking, Surrey, GU24

3 Bedroom Semi-Detached House | Guide Price £625,000

A delightful semi-detached cottage, occupying a fantastic semi-rural position in one of Surrey's quintessential villages...

Woking, Surrey, GU21

4 Bedroom Semi-Detached House | £635,000

Occupying a prime position within the sought after Hermitage development in St Johns, this beautifully extended four bed...

Knaphill, Woking, Surrey, GU21

4 Bedroom Detached House | £635,000

This detached family home is well presented throughout and located within easy reach of Knaphill village that offers a w...

Seymours (Knaphill)

Knaphill, Surrey, GU21 2PP

01483 798969

How much is your home worth?

Use our short form to request a valuation of your property.

Request a Valuation

Mortgage Calculator

Amount Borrowed: £
Total Amount Repayable: £
Total Monthly Payment: £
©2025 The Guild of Property Professionals. All rights reserved. Terms and Conditions | Privacy Policy | Cookie Policy | Complaints Policy | Members Login
The Guild of Property Professionals Trading Address: 121 Park Lane, London W1K 7AG. GPEA Limited. Registered in England & Wales.  Company No: 02819824.  Registered Office Address: 2 St. Stephen's Court, St. Stephen's Road, Bournemouth, Dorset, England, BH2 6LA.  VAT Registration No: 576 8795 61
Book a Property Valuation Update Cookies Preferences