Hillsfield, Upton-upon-severn, Worcestershire, WR8

Guide Price
£300,000
SSTC
This property listing is now SSTC

3 Bedroom Semi-Detached House for sale in Worcester

2 3 1
  • Agents Notes: Buyers should be aware the property may contain asbestos and this has been factored into the asking price.
  • Semi Detached House With Potential To Extended (Subject To The Relevant Permissions Being Sought)
  • In Need Of Refurbishment
  • Three Bedrooms
  • Living Room & Kitchen
  • Utility Space And Cloakroom
  • Gas Central Heating, Double Glazing
  • Off Road Parking
  • Garden
  • No Chain

A Three Bedroom Semi-Detached Property With Potential For Development (Subject To The Relevant Permissions Being Sought) In Need Of Refurbishment.  No Chain.  EPC Rating ''D''

Location & Description  
Upton-upon-Severn is an historic riverside town serving a wide rural catchment area with a thriving tourist industry, due to hosting many well known festivals throughout the year. The town is approximately 8 miles from Malvern, 10 miles from Worcester and 6 miles from Tewkesbury. Access to Junction 1 of the M50 is approximately 3 miles distant which links to the M5 motorway. There are mainline railway stations located at Worcester, Pershore and Malvern.
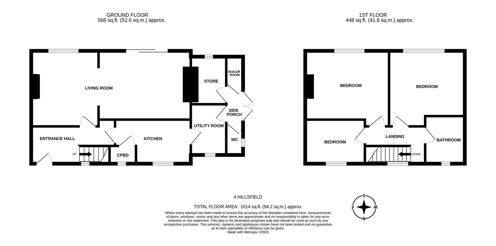
4 Hillsfield is a three bedroom semi-detached property in need of some refurbishment.  The property is initially approached via a single width driveway allowing parking for vehicles and and leading past the foregarden behind the which the house itself is set.  Under the storm porch the obscured double glazed UPVC front door opens to the living accommodation which has potential for further development (subject to the relevant permissions being sought). 

The living accommodation benefits from double glazing and gas central heating and a good sized rear garden and comprises in more detail of:

Entrance Hall  
Double glazed window to front, ceiling light point, stairs rising to first floor, wood effect laminate flooring, door to kitchen (described later) and door opening through to

Dining Room  3.69m (11ft 11in) x 3.25m (10ft 6in) 
Positioned to the rear of the property with a double glazed window looking out over the garden.  Ceiling light point, coving to ceiling, radiator, laminate flooring flowing through an archway into 

Sitting Room  3.38m (10ft 11in) x 4.47m (14ft 5in) 
Double glazed patio doors to garden, ceiling light point, coving to ceiling and feature fireplace.  Wall light points.  

Kitchen  2.14m (6ft 11in) x 3.51m (11ft 4in) 
With a range of drawer and cupboard base units with worktop over and matching wall unit.  A one and a half bowl stainless steel sink unit with mixer tap and drainer is set under the double glazed window to front.  There is an integrated four ring Neff electric HOB with extractor over and Neff double OVEN.  Understairs storage cupboard, radiator, tiled splashbacks and floor.  Inset ceiling spotlights and door opening through to 

Utility  
With space and connection point for washing machine, ceiling light point, radiator, double glazed window to front and door opens through to 

Side Porch  
Having two double glazed double doors opening to the side.  Tiled floor, door to useful storage cupboard housing the wall mounted Worcester boiler.  Door to store (described later) and entrance to 

Cloakroom  
Fitted with a white low level WC with obscured double glazed window to side, ceiling light point, radiator and tiled floor. 

Store  
This is a space that could be utilised as a home office or further utility room.  Currently housing the floor mounted hot water cylinder.  Ceiling light point, obscured double glazed window to rear.  

First Floor Landing  
Double glazed window to front, loft access point and doors opening through to

Bedroom 1 3.72m (12ft) x 4.06m (13ft 1in) (maximum) 
Double glazed to rear, ceiling light point, radiator.  A good sized double bedroom. 

Bedroom 2  3.72m (12ft) x 3.66m (11ft 10in) 
Double glazed window to rear, ceiling light point, radiator.   Double bedroom. 

Bedroom 3 1.89m (6ft 1in) x 2.92m (9ft 5in) 
A well proportioned bedroom with double glazed window to front, ceiling light point, radiator.  

Bathroom  
Fitted with a white low level WC and panelled bath with mixer taps and vanity wash hand basin with mixer tap and cupboards under.  Shower enclosure with thermostatic controlled dual headed rainfall and hand held shower.  Walls finished in complimentary tiling.  Chrome heated towel rail, inset LED downlighters, obscured double glazed window to front. 

Outside to the rear 
A lawned garden enclosed by a fenced perimeter to three sides and being open to the front.  Having a wooden SHED.

There is outside light point and water tap to front.  

Agent's Note 
Buyers should be aware the property may contain asbestos and this has been factored into the asking price. 

Services 
We have been advised that mains services are connected to the property. This information has not been checked with the respective service providers and interested parties may wish to make their own enquiries with the relevant local authority. No statement relating to services or appliances should be taken to imply that such items are in satisfactory working order and intending occupiers are advised to satisfy themselves where necessary.
 
Tenure 
We are advised (subject to legal confirmation) that the property is freehold.

 General 
Intending purchasers will be required to produce identification documentation and proof of funding in order to comply with The Money Laundering, Terrorist Financing and Transfer of Funds Regulations 2017. More information can be made available upon request. 

John Goodwin FRICS has made every effort to ensure that measurements and particulars are accurate however prospective purchasers/tenants must satisfy themselves by inspection or otherwise as to the accuracy of the information provided. No information with regard to planning use, structural integrity, tenure, availability/operation, business rates, services or appliances has been formally verified and therefore prospective purchasers/tenants are requested to seek validation of all such matters prior to submitting a formal or informal intention to purchase/lease the property or enter into any contract.

Viewing
By appointment to be made through the Agent's Upton upon Severn Office, Tel: 01684 593125

Council Tax
COUNCIL TAX BAND ''C''
This information may have been obtained from the local council website only and applicants are advised to consider obtaining written confirmation.

EPC
The EPC rating for this property is D (63).

Directions
From our John Goodwin office in the High Street, continue along onto Old Street. Go past the church on the left hand side and through the traffic lights, then take the first turning on the left hand side into Minge Lane, continue up and bear to the left on the bend which then becomes Gardens Walk. Take the first turning on the left hand side into Hillsfield and the property can be found on the left hand side as indicated by one of our for sale boards. 

Important Information

  • This is a Freehold property.
  • This Council Tax band for this property is: C

Property Ref: 1279779

Share:

Similar Properties

Severn Drive, Upton-Upon-Severn, WR8

4 Bedroom Terraced House | Offers Over £300,000

A Beautifully Presented Character Town House Situated In The Heart Of Town Offering Versatile Accommodation Over Three F...

Upton Marina, Upton Lake, Worcestershire, WR8

2 Bedroom Lodge | Offers in region of £295,950

Beautifully Designed Tranquil Waterfront Floating Home With A 12 Month Residency. Spacious Open Plan Kitchen/Diner/Loung...

Greenfields Road, Upton-upon-Severn, Worcester, WR8 0SQ

3 Bedroom Semi-Detached House | Offers in region of £289,000

Located In A Sought After And Desirable Area This Three Bedroom Family Home Offers A Cottage Style Kitchen/Diner/Family...

Dunns Lane, Upton Upon Severn, Worcestershire, WR8

3 Bedroom Terraced House | Offers in region of £305,000

Spacious Character Cottage Located In The Heart Of Town. Two Good Sized Reception Rooms, One With A Feature Log Burner,...

Berrow Court, Upton Upon Severn, Worcestershire, WR8 0JP

2 Bedroom Retirement Property | Offers in region of £310,000

This Well Presented End Terrace Property Is Located In The Sought After And Picturesque Development Of Berrow Court. The...

New Street, Upton-upon-severn, Worcestershire, WR8

2 Bedroom Detached House | Offers in region of £325,000

This Centrally Located And Beautifully Presented Unique Detached Victorian Property Dates Back To 1908. This Former Pump...

John Goodwin (Upton Upon Severn)

Upton Upon Severn, Worcestershire, WR8 0HJ

01684 593125

How much is your home worth?

Use our short form to request a valuation of your property.

Request a Valuation

Mortgage Calculator

Amount Borrowed: £
Total Amount Repayable: £
Total Monthly Payment: £
©2026 The Guild of Property Professionals. All rights reserved. Terms and Conditions | Privacy Policy | Cookie Policy | Complaints Policy | Members Login
The Guild of Property Professionals Trading Address: 121 Park Lane, London W1K 7AG. GPEA Limited. Registered in England & Wales.  Company No: 02819824.  Registered Office Address: 2 St. Stephen's Court, St. Stephen's Road, Bournemouth, Dorset, England, BH2 6LA.  VAT Registration No: 576 8795 61
Book a Property Valuation Update Cookies Preferences