Willow Close, Upton-upon-severn, Worcestershire, WR8

Guide Price
£400,000
SSTC
This property listing is now SSTC

4 Bedroom Detached House for sale in Worcester

2 4 2
  • Extremely Well Appointed And Attractive Four Bed Detached Family Home Located In A Small Cul De Sac In The Hamlet of Ryall Grove
  • Open Plan Kitchen/Dining Room With A Walk In Pantry
  • Dual Aspect Spacious Living Room With Patio Doors, A Feature Fireplace And Log Burner
  • Conservatory
  • Master Bedroom With An En-Suite Shower Room
  • Oil Fired Central Heating & UPVC Double Glazing
  • Utility Room, Cloakroom, Garage And Plenty Of Off Road Parking
  • Mature Landscaped Garden With A Decked Patio Area For Entertaining

Extremely Well Appointed And Attractive Four Bedroom Detached Family Home. Located In A Desirable And Sought After Area At The End Of A Small Cul De Sac In The Hamlet Of Ryall Grove. Open Plan Living With A Kitchen/Dining Room Flowing Into The Conservatory. Spacious Dual Aspect Living Room With Patio Doors, A Feature Fireplace And Log Burner. Master Bedroom With An En-Suite, Utility Room, Cloakroom, Garage And Off Road Parking For Three Cars. EPC D.

Location

Upton-upon-Severn is an historic riverside town serving a wide rural catchment area with a thriving tourist industry, due to hosting many well known festivals throughout the year. The town offers a good variety of shops, pubs, restaurants and cafes alongside a hardware store/toy shop, bakery, newsagents/sub post office, a library, rugby club, hairdressers, book shop and opticians to name but a few. There is a Doctors surgery with pharmacy and dentist.

Located approximately 8 miles from Malvern, 10 miles from Worcester and 6 miles from Tewkesbury.  Access to Junction 1 of the M50 is approximately 3 miles distant which links to the M5 motorway.  There are mainline railway stations located at Pershore, Worcester and Malvern with direct links to London Paddington.

Educational needs are well catered for with Upton primary school and Hanley Castle High School both being within easy reach.

Description

5 Willow Close is a most attractive property that has been extended in recent years and now provides light and spacious rooms for the growing family. The spacious dual aspect lounge offers a feature fireplace and patio doors to the garden, whilst the kitchen/diner has been fitted with a cottage feel and benefits from a walk in pantry and integral appliances and has plenty of room for a large dining table. Flowing from the dining area into the conservatory gives a nice open plan living area to enjoy with family and friends and take in the views over the garden.

On the first floor the master bedroom benefits from an En-Suite shower room, whilst the further three bedrooms are serviced by the modern fitted family bathroom adding to the appeal for potential purchasers.

Outside the rear garden is filled with plants and shrub borders, a lawned area and a decked patio area. There is access to the garage and side gated access to the front driveway with plenty of parking.

The property further benefits from UPVC double glazing, a separate utility room, a cloakroom, an alarm system and an oil fired central heating system.  

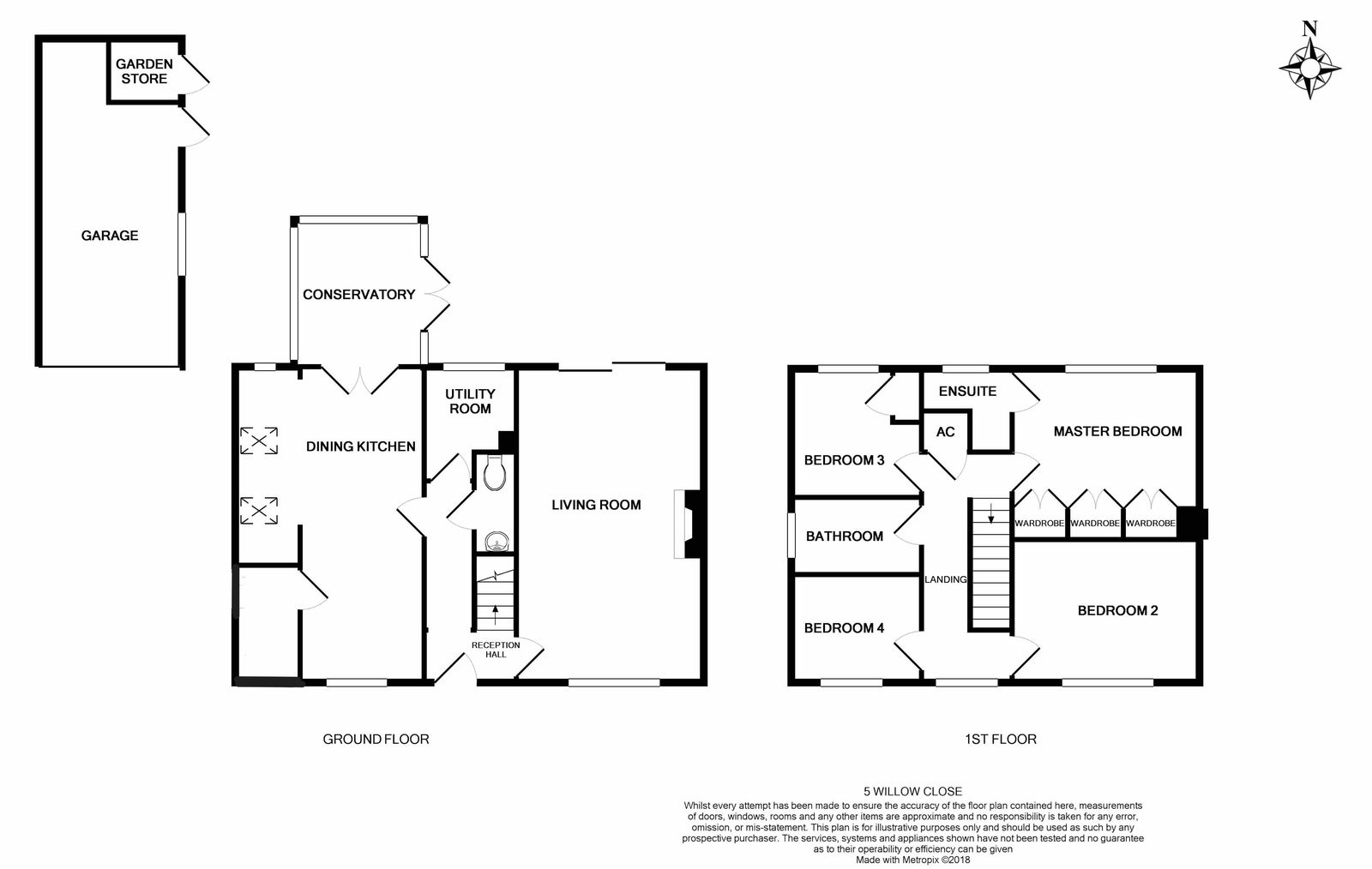
The accommodation in detail comprises:

Canopy Porch 
Brick and wood canopy porch with seating, outside light, UPVC entrance door to: 

Entrance Hall 
UPVC obscure double glazed window to the front aspect, radiator, ceiling light, power points, smoke alarm, wood laminate flooring, stairs to the first floor, doors to the utility room, lounge and kitchen/diner, door to:

Cloakroom 
White suite comprising of a wash hand basin with mixer tap over, low level WC, radiator, extractor fan, ceiling light, wood laminate flooring.

Utility Room 
UPVC double glazed window to the rear aspect, base cupboard with work surface and a stainless steel sink and drainer with mixer tap over, part tiled splash backs, power points, space and plumbing for a washing machine and tumble dryer, wall hung cupboard, coak hooks, wood laminate flooring.

Living Room 20.07ft (6.12m) x 11.91ft (3.63m) 
UPVC double glazed window to the front aspect, UPVC double glazed patio sliding doors to the rear garden, feature fireplace with a wood burning stove set on a polished slate hearth with a wooden mantle, radiators x two, wall lights x two, TV point, telephone point, power points.
Kitchen 10.07ft (3.07m) x 7.90ft (2.41m) 
UPVC double glazed window to the front aspect, fitted with a matching range of white wall and base units, stainless steel sink and drainer with a mixer tap over, part tiled splash backs, ceiling light, power points, space and plumbing for dishwasher, integrated electric cooker with a induction hob over, wood laminate flooring, wooden part glazed door to the Pantry (housing ceiling light, power points, tiled flooring, space for an upright fridge and freezer.

Dining Area 10.92ft (3.33m) x 9.18ft (2.80m) plus recess 
Radiators x two, ceiling light, Velux wooden double glazed roof lights to the side aspect x two, power points, UPVC double glazed French style doors opening into:

Conservatory 10.30ft (3.14m) x 9.18ft (2.80m) 
Brick base construction and UPVC double glazed frame and windows to the rear and side aspects, UPVC double glazed French style patio doors to the side aspect, radiator, power points, wall light.  

First Floor 
Landing  
Ceiling light, door to the Airing cupboard (housing the lagged hot water cylinder, slatted shelving and time controls), access to insulated and part boarded roof space with aluminium foldaway ladder, power points, doors to:

Bedroom One 11.84ft (3.61m) x 9.64ft (2.94m) 
UPVC double glazed window to the rear aspect, radiator, power points, fitted with a range of built in wooden wardrobes across one wall with overhead cupboards, door to:

En Suite Shower Room 
UPVC obscure double glazed window to the rear aspect, shower cubicle with MIRA shower unit, white suite comprising of a low level WC and wash hand basin with mixer tap and shelving over and storage cupboard under, chrome heated towel rail, part tiled walls, inset ceiling lights.

Bedroom Two 11.97ft (3.65m) x 7.90ft (2.41m) 
UPVC double glazed window to the front aspect, radiator, ceiling light, power points.

Bedroom Three 8.10ft (2.47m) x 7.97ft (2.43m) 
UPVC double glazed window to the rear aspect, radiator, ceiling light, power points.

Bedroom Four 7.97ft (2.43m) x 6.20ft (1.89m) 
UPVC double glazed window to the front aspect, radiator, telephone point, ceiling light, power points.

Bathroom 
UPVC obscure double glazed window to the side aspect, white three piece suite comprising of a 'P' shaped panelled bath with a mixer tap and MIRA electric over, part tiled surround, wash hand basin, low level WC, radiator, inset ceiling lights.

Outside 
Front Garden 
Plant and shrub borders, side gated access to the rear garden, block paved and gravel driveway provides parking for three cars leading to:

Garage 20.93ft (6.38m) x 9.15ft (2.79m)  Roller opening door to the front aspect, lighting and power points, UPVC double glazed window to the side aspect, Worcester Greenstar oil fired boiler, access to roof storage space and UPVC door to the side aspect opening to the rear garden. 

Rear Garden  Laid to lawn with shrub and plant borders, decked patio area, built in garden store room, wood store, water tap and lighting. 

Services

We have been advised that mains electricity, water and drainage are connected to the property. Heating is provided by way of an oil fired system.  This information has not been checked with the respective service providers and interested parties may wish to make their own enquiries with the relevant local authority. No statement relating to services or appliances should be taken to infer that such items are in satisfactory working order and intending occupiers are advised to satisfy themselves where necessary.

Directions

From John Goodwin's Upton office proceed north on the A4104 along Church Street and at the mini roundabout turn right continuing along the A4104 passing over the river bridge. Continue up the hill to the roundabout where you turn right, signed Tewkesbury, onto the A38. Proceed for 0.6 miles and turn left just after The Bluebell public house into Ryall Grove. Follow the road round to the left and take the second right hand turn into Willow Close. Number 5 is the third house on the left hand side at the bottom of the cul-de-sac.

Council Tax

COUNCIL TAX BAND "F"
This information may have been obtained by telephone call only and applicants are advised to consider obtaining written confirmation.

Energy Performance Certificate

The EPC rating for this property is 'D' (61).

Viewing

By appointment to be made through the Agent's Upton upon Severn Office, Tel: 01684 593125

General

Intending purchasers will be required to produce identification documentation and proof of funding in order to comply with The Money Laundering, Terrorist Financing and Transfer of Funds Regulations 2017. More information can be made available upon request. 

John Goodwin FRICS has made every effort to ensure that measurements and particulars are accurate however prospective purchases/tenants must satisfy themselves by inspection or otherwise as to the accuracy of the information provided. No information with regard to planning use, structural integrity, tenure, availability/operation, business rates, services or appliances has been formerly verified and therefore prospective purchasers/tenants are requested to seek validation of all such matters prior to submitting a formal or informal intention to purchase/lease the property or enter into any contract.

Tenure

We are advised (Subject to legal confirmation) that the property is freehold.

Important Information

  • This is a Freehold property.
  • This Council Tax band for this property is: F

Property Ref: 1262215

Share:

Similar Properties

Packers Hill, Upton-upon-Severn, Worcester, WR8

3 Bedroom Detached House | Guide Price £400,000

Packers Hill Is A Fabulously Positioned Detached Three Bedroom Family Home Situated In A Quiet Location At The End Of A...

Stonnall Close, Severn Stoke, Worcester, WR8 9HP

3 Bedroom Detached House | Guide Price £392,000

Rarely Available Well Presented Three Bedroom Detached Modern Family Home Situated In A Sought After Village Location In...

Paxhill Lane, Twyning, Tewkesbury, GL20

3 Bedroom Bungalow | Guide Price £385,000

15 Paxhill Lane is a wonderfully positioned detached property which has been extended showing spacious living accommodat...

Welland Road, Upton-upon-severn, Worcestershire, WR8

3 Bedroom Semi-Detached House | Guide Price £425,000

This Charming Three Bed Character Cottage Is Set Back From The Road In A Good Sized Plot. South Facing Private Mature Co...

Minge Lane, Upton-upon-Severn, Worcester, WR8

2 Bedroom Bungalow | Guide Price £425,000

This Well Presented Modern Two Bedroom Detached Bungalow Is Situated Within Close Walking Distance To All Amenities. Spa...

The Beeches, Upton-upon-Severn, Worcester, WR8 0QQ

2 Bedroom Bungalow | Guide Price £430,000

Extended Three Bedroom Detached Bungalow Situated In A Cul-De-Sac In A Sought After Location. Spacious Open Plan Lounge,...

John Goodwin (Upton Upon Severn)

Upton Upon Severn, Worcestershire, WR8 0HJ

01684 593125

How much is your home worth?

Use our short form to request a valuation of your property.

Request a Valuation

Mortgage Calculator

Amount Borrowed: £
Total Amount Repayable: £
Total Monthly Payment: £
©2026 The Guild of Property Professionals. All rights reserved. Terms and Conditions | Privacy Policy | Cookie Policy | Complaints Policy | Members Login
The Guild of Property Professionals Trading Address: 121 Park Lane, London W1K 7AG. GPEA Limited. Registered in England & Wales.  Company No: 02819824.  Registered Office Address: 2 St. Stephen's Court, St. Stephen's Road, Bournemouth, Dorset, England, BH2 6LA.  VAT Registration No: 576 8795 61
Book a Property Valuation Update Cookies Preferences