Kinnersley, Severn Stoke, Worcester, WR8

Guide Price
£875,000

8 Bedroom Plot for sale in Worcester

8 8 8
  • A Rare Opportunity To Purchase A Site With Full Planning Consent
  • Construction Of Seven New Homes Comprising
  • Five Detached And A Pair Of Semi Detached Houses
  • Some Of The Groundworks Have Already Been Carried Out
  • Poplar Village Location
  • Viewing By Appointment Only

A Rare Opportunity To Purchase A Site With Full Planning Consent For The Construction Of Seven New Homes Comprising Of Five Detached And  A Pair Of Semi Detached Houses With Some Of The Groundworks Already Carried Out.


Location & Description  
The property is located in the charming, small village/hamlet of Kinnersley which has the benefit of a public house, The Royal Oak, and is located approximately three miles from Upton upon Severn, eleven miles from Malvern and eight and a half miles from Worcester. Access to Junction 1 of the M50 is approximately six miles distant which links to the M5 motorway. The property falls within the catchment area for the highly regarded Hanley Castle High School (Buyers should make their own enquiries to confirm this), which is approximately four miles distant and there is a bus collection and drop off for the pupils close by at the Royal Oak. There are also mainline railway stations located at both Worcester and Malvern and a new station at Worcester Parkway. There is a daily bus service to & from Worcester and a post box. 


The riverside town of Upton upon Severn offers a range of amenities with further and more extensive facilities available in Malvern, Tewkesbury or the City of Worcester.
The site itself is situated in a fabulous village location.  A pair of semi-detached houses already occupy the site and these will be retained by the current owner.  Due to this some of the groundworks have already been done to the development with drainage running onto the site which will need to be enhanced and improved to facilitate the additional dwellings.  There is also fibre optic broadband on the site and the electricity is in-situ but needs to be connected along with the water.    


It should be noted that the site is subject to a 106 Agreement and contributions towards affordable housing and this has already been paid and discharged by the current owner.


There is currently a driveway from the main road but this would need to be enhanced and continued to access all the plots.  


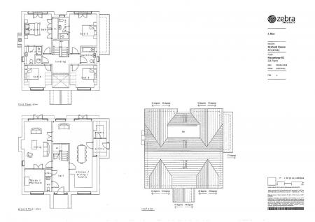
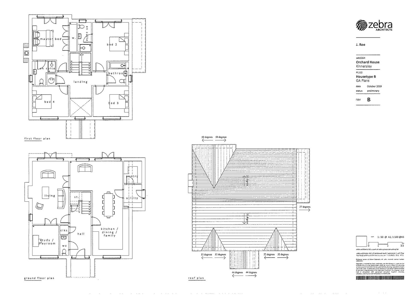
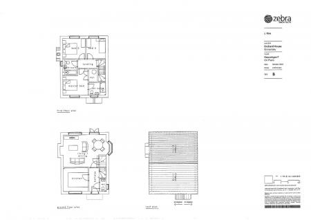
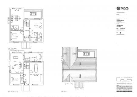
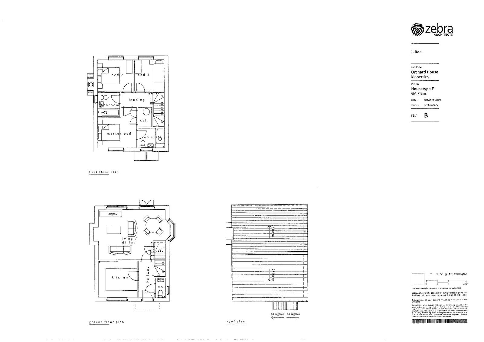
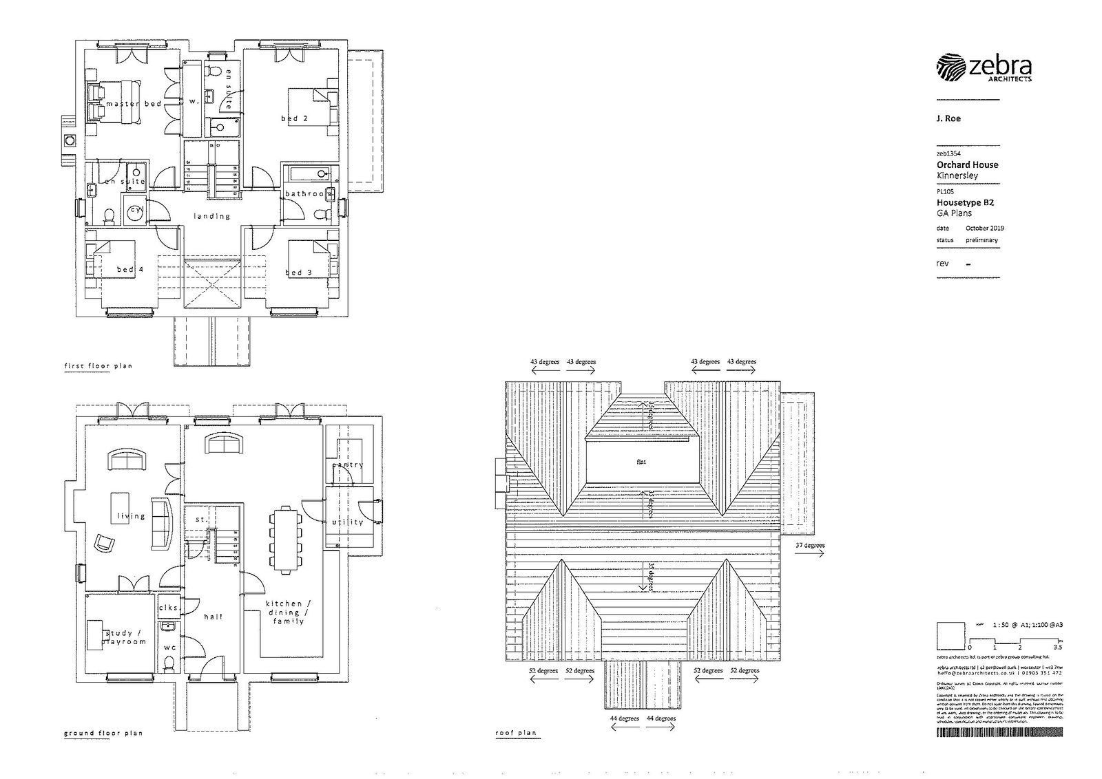
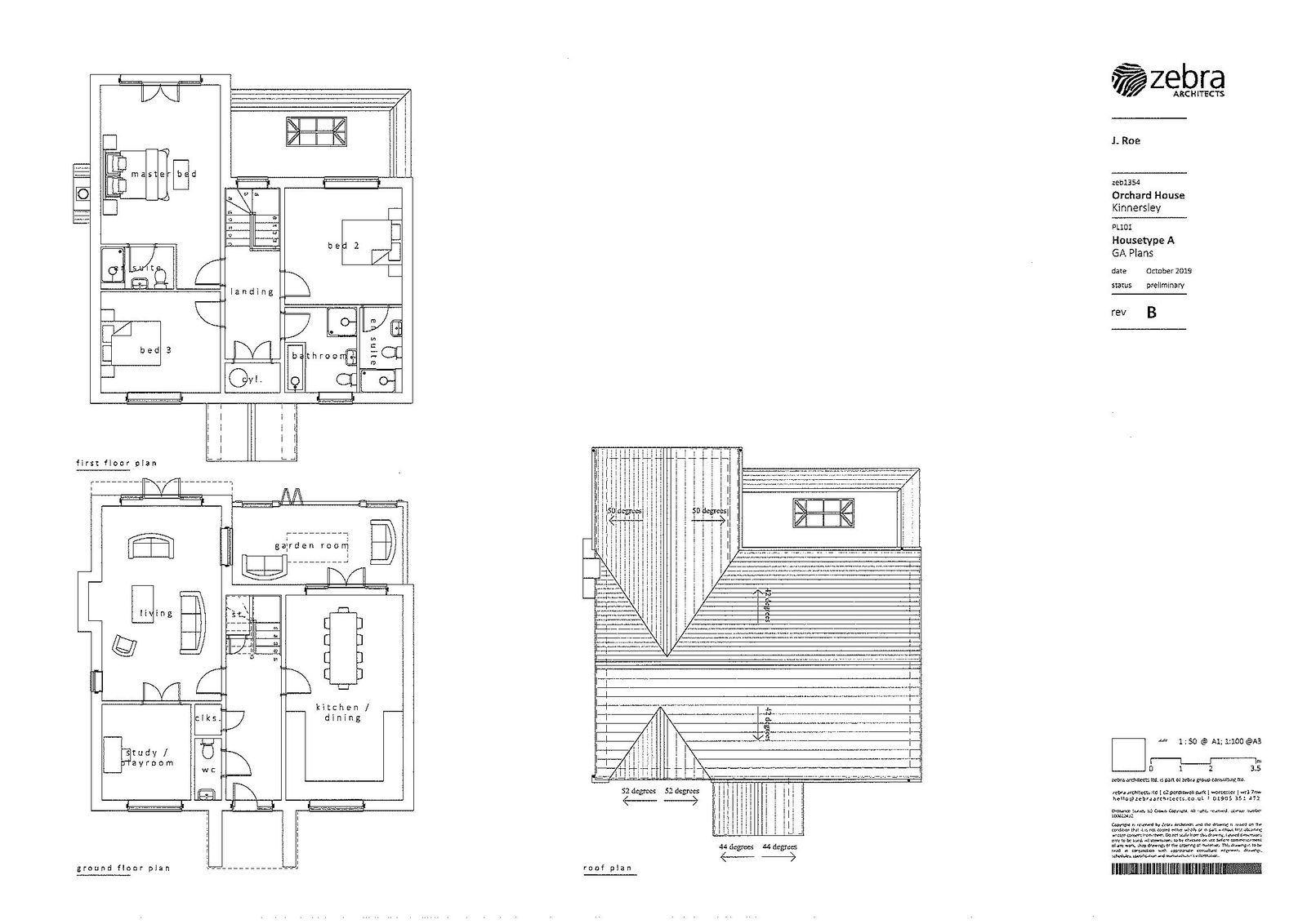
The seven plots that are available consist of five detached, four bedroomed houses as well and an additional three bedroomed detached property and the erection of a pair of semi detached, two bedroomed houses with the larger bedroom that could potentially be converted into two room to make the house a three bedroomed property.   


More details of the approved planning permission can be found using the Malvern Hills Planning Portal.  Reference Nos: M/23/00272/NMA and 20/00013/FUL  
Services 
We have been advised that mains water is connected to the site as well as drainage which the additional dwellings has permission to be connected to. A 185mm four core electrical cable runs around the site and is connected to the mains in the road but spurs would need to be connected to each individual plot.  The cable is capable of supplying the sites needs. Fibre optic broadband is connected to the site. There is no mains gas available in the village.  This information has not been checked with the respective service providers and interested parties may wish to make their own enquiries with the relevant local authority. No statement relating to services or appliances should be taken to imply that such items are in satisfactory working order and intending occupiers are advised to satisfy themselves where necessary. 
 
Tenure 
We are advised (subject to legal confirmation) that the property is freehold.


 General 
Intending purchasers will be required to produce identification documentation and proof of funding in order to comply with The Money Laundering, Terrorist Financing and Transfer of Funds Regulations 2017. More information can be made available upon request. 


John Goodwin FRICS has made every effort to ensure that measurements and particulars are accurate however prospective purchasers/tenants must satisfy themselves by inspection or otherwise as to the accuracy of the information provided. No information with regard to planning use, structural integrity, tenure, availability/operation, business rates, services or appliances has been formally verified and therefore prospective purchasers/tenants are requested to seek validation of all such matters prior to submitting a formal or informal intention to purchase/lease the property or enter into any contract.


Viewing
In order to respect the privacy of the occupiers of the existing homes you are asked not to visit the site without making and appointment with the John Goodwins Malvern office  01684 892809


Council Tax
Not yet assessed 


EPC


Directions


From the agent's office in Upton upon Severn proceed over the river bridge towards Pershore continuing to the roundabout with the A38 Worcester to Tewkesbury road. Turn left towards Worcester and follow this road for approximately two miles and as you start to go downhill bear right signposted to Kinnersley. Proceed to the T junction and and the entrance to the site can be found head of you and just to the right as indicated by the for sale board.


Tenure 


We are advised (subject to legal confirmation) that the property is freehold.


 


 General 


Intending purchasers will be required to produce identification documentation and proof of funding in order to comply with The Money Laundering, Terrorist Financing and Transfer of Funds Regulations 2017. More information can be made available upon request. 


John Goodwin FRICS has made every effort to ensure that measurements and particulars are accurate however prospective purchasers/tenants must satisfy themselves by inspection or otherwise as to the accuracy of the information provided. No information with regard to planning use, structural integrity, tenure, availability/operation, business rates, services or appliances has been formally verified and therefore prospective purchasers/tenants are requested to seek validation of all such matters prior to submitting a formal or informal intention to purchase/lease the property or enter into any contract.


 


Viewing


In order to respect the privacy of the occupiers of the existing homes you are asked not to visit the site without making and appointment with the John Goodwins Malvern office  01684 892809


 


Council Tax


Not yet assessed 


 


EPC


 


Directions


From the agent's office in Upton upon Severn proceed over the river bridge towards Pershore continuing to the roundabout with the A38 Worcester to Tewkesbury road. Turn left towards Worcester and follow this road for approximately two miles and as you start to go downhill bear right signposted to Kinnersley. Proceed to the T junction and and the entrance to the site can be found head of you and just to the right as indicated by the for sale board.


 

Important Information

  • This is a Freehold property.

Property Ref: 521_1280998

Share:

Similar Properties

West Malvern Road, Malvern, Worcestershire, WR14

5 Bedroom Detached House | Guide Price £850,000

An Elegant Detached Edwardian Residence Enjoying An Elevated Position On The Western Slopes Of The Malvern Hills With Vi...

Albert Road South Malvern WR14

5 Bedroom Detached House | Guide Price £850,000

A Striking Detached, Five Bedroomed Victorian Home Enjoying A Lovely Setting In Arguably Great Malvern's Premier Residen...

St. Wulstans Drive, Malvern, WR14

4 Bedroom Detached House | Guide Price £849,950

A Striking And Well Presented Detached House Enjoying A Lovely Setting Adjacent To St Wulstans Nature Reserve With Fine...

Alfrick, Worcester, Worcestershire, WR6

5 Bedroom Detached House | Guide Price £910,000

An Equestrian Orientated Property In Need Of Some Cosmetic Refurbishment With A One Bedroomed Self Contained Annexe. Off...

Main Road, Kempsey, Worcester, Worcestershire, WR5

5 Bedroom Detached House | Guide Price £1,000,000

A Striking Grade II Listed Georgian Four Storey Farmhouse Which Has Been Refurbished To A High Standard Offering Spaciou...

Blackmore Park Road, Welland, Malvern, Worcestershire, WR13

3 Bedroom Detached House | Guide Price £1,100,000

A Truly Unique Opportunity To Secure A Superbly Presented Detached Residence Nestled In A Semi-Rural Setting, Surrounded...

John Goodwin (Malvern)

Malvern, Worcestershire, WR14 4QY

01684 892809

How much is your home worth?

Use our short form to request a valuation of your property.

Request a Valuation

Mortgage Calculator

Amount Borrowed: £
Total Amount Repayable: £
Total Monthly Payment: £
©2026 The Guild of Property Professionals. All rights reserved. Terms and Conditions | Privacy Policy | Cookie Policy | Complaints Policy | Members Login
The Guild of Property Professionals Trading Address: 121 Park Lane, London W1K 7AG. GPEA Limited. Registered in England & Wales.  Company No: 02819824.  Registered Office Address: 2 St. Stephen's Court, St. Stephen's Road, Bournemouth, Dorset, England, BH2 6LA.  VAT Registration No: 576 8795 61
Book a Property Valuation Update Cookies Preferences