Woolhope Road, Worcester

Offers in region of
£395,000
SSTC
This property listing is now SSTC

3 Bedroom Semi-Detached House for sale in Worcester

2 3 2
  • Victorian Semi Detached House
  • Three bedrooms
  • Situated in the popular Battenhall area of Worcester
  • Walking distance to the city centre
  • Living Room
  • Dining Room
  • Downstairs shower room & upstairs bathroom
  • Modern Kitchen
  • Rear garden with large decked seating area and under-cover section.
  • EPC Grade D Council Tax Band C Tenure Freehold

** SOLD, SUBJECT TO CONTRACT - SIMILAR PROPERTIES REQUIRED. CALL PLJ WORCESTER TO ARRANGE A FREE NO OBLIGATION MARKET APPRAISAL **
PLJ Worcester are delighted to bring to the market this beautifully presented Victorian three-bedroom semi-detached home, ideally situated in the highly sought-after Battenhall area of Worcester, just south of the city centre and within a short and convenient walking distance of its wide range of amenities.

This charming property effortlessly combines period character with modern living. The ground floor offers a welcoming living room featuring a large bay window that fills the space with natural light, alongside a separate dining room perfect for entertaining. A stylish and modern kitchen provides a well-appointed space for everyday living whilst a useful downstairs shower room adds further practicality.

Upstairs, the property continues to impress with three good sized bedrooms and a contemporary family bathroom, thoughtfully arranged to suit modern lifestyles.

Externally, the home benefits from a private rear garden, designed with both relaxation and entertaining in mind. A spacious decked seating area provides the perfect setting for outdoor dining, while an undercover section-currently utilised as a bar and BBQ area-creates a versatile and sociable space all year round.

This is a fantastic opportunity to acquire a characterful home in a prime residential location, offering both convenience and lifestyle appeal.

EPC Grade E Council Tax Band C Tenure Freehold

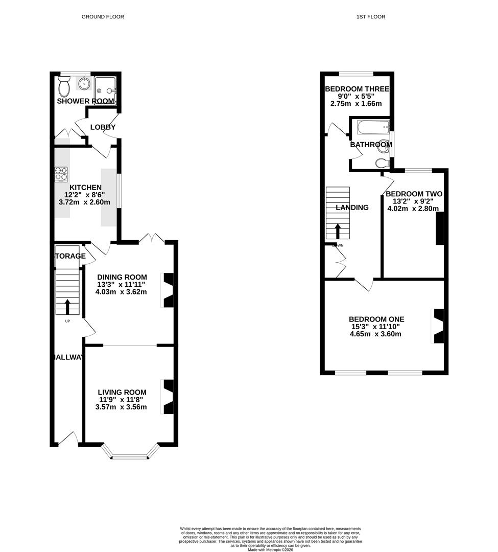
Hallway - Entrance door. Radiator. Ceiling light point. Stairs rising to first floor.

Living Room - Double glazed bay window to front aspect. Feature fireplace with gas fire inset. Ceiling light point. Radiator.

Dining Room - Double glazed French doors to rear garden. Ceiling light point. Radiator. Understairs storage.

Kitchen - Double glazed window to side aspect. Radiator. Ceiling light point. Double glazed door to rear garden. Modern wall and base units with work surface over top. Space for fridge-freezer and cooker. Space and plumbing for dishwasher and washing machine.

Shower Room - Obscure double glazed window to rear aspect. Two heated towel rails. Ceiling light point. Storage cupboard. Shower cubicle with mains fed shower. Wash hand basin atop vanity unit. Low level WC. Tiled splashback.

Landing - Radiator. Ceiling light point. Storage cupboard. Access to loft.

Bedroom One - Two double glazed windows to front aspect. Radiator. Ceiling light point.

Bedroom Two - Double glazed window to rear aspect. Radiator. Ceiling light point.

Bedroom Three - Double glazed window to rear aspect. Radiator. Ceiling light point.

Bathroom - Obscure double glazed window. Ceiling light point. Radiator. Heated towel rail. Claw foot bath with shower attachment. Wash hand basin atop vanity unit. Low level WC.

Rear Garden - Seating area and stairs leading up to large decking and covered seating area. Secure with timber panelled fencing. Gated side access.

Council Tax Worcester - We understand the council tax band presently to be : C
Worcester Council
https://www.worcester.gov.uk/council-tax
(Council Tax may be subject to alteration upon change of ownership and should be checked with the local authority).

Financial Services - Please note that any offer made on a property marketed by Philip Laney and Jolly will need to be qualified by Whiteoak Mortgages in order to demonstrate due diligence on behalf of our clients.
If you require any mortgage assistance - please use the link :
https://bit.ly/MortgageAdviceRequestPLJW
Philip Laney and Jolly reserve the right to earn a referral fee from various third party providers recommended to the client if instructed, services include; conveyancing, mortgage services, removals.

Floorplan - This plan is included as a service to our customers and is intended as a GUIDE TO LAYOUT only. Dimensions are approximate and not to scale.

Property To Sell? - If you have a property to sell in Worcester and the surrounding areas then please let us know. We will be delighted to arrange a free, no obligation valuation and explain the benefits of using Philip Laney and Jolly to sell your home.
Philip Laney and Jolly are proud to have been selected as the representatives in the Worcester area for the Guild of Property Professionals, a network of around 800 independently owned Estate Agents across the U.K.

Services - Mains electricity, gas, water and drainage were laid on and connected at the time of our inspection. We have not carried out any tests on the services and cannot therefore confirm that these are in working order or free from any defects.

Tenure - Freehold - We understand that the property is offered for sale Freehold.

Verifying Id - Under The Money Laundering, Terrorist Financing and Transfer of Funds (Information on the Payer) Regulations 2017, the Agent is legally obliged to verify the identity of all buyers and sellers. In the first instance, we will ask you to provide legally recognised photographic identification (Passport, photographic driver's licence, etc.) and documentary proof of address (utility bill, bank/mortgage statement, council tax bill etc). We will also use a third party electronic verification system in addition to this having obtained your identity documents. This allows them to verify you from basic details using electronic data, however it is not a credit check and will have no effect on you or your credit history. They may also use your details in the future to assist other companies for verification purposes.

Viewings - Strictly by appointment with the Agents. Please call 01905 26664. We are open Monday - Friday 09:00 - 17:30, and 10:00 - 14:00 on Saturday's.

Broadband - We understand currently Full Fibre Broadband is available to order at this property.
You can check and confirm the type of Broadband availability using the Openreach fibre checker:
https://www.openreach.com/fibre-checker/my-products

Parking - Parking for the property is on street parking.

Mobile Coverage - Mobile phone signal availability can be checked via Ofcom Mobile & Broadband checker on their website.
https://checker.ofcom.org.uk/en-gb/mobile-coverage
EE- Good outdoor, variable in-home
O2- Good outdoor and in-home
Three- Good outdoor and in-home
Vodafone- Good outdoor and in-home

Property Ref: 34576839

Share:

Similar Properties

Stephenson Road, Worcester

3 Bedroom Terraced House | Guide Price £363,000

PLJ Worcester bring to the market situated on Stephenson Road this truly delightful three double bedroom Victorian home,...

Kielder Rise, Worcester

3 Bedroom Detached Bungalow | Guide Price £350,000

Philip Laney & Jolly Worcester are delighted to present this detached bungalow, peacefully positioned in the sought afte...

Cavendish Street, Worcester

4 Bedroom Detached House | Guide Price £350,000

PLJ Worcester are delighted to bring to the market situated in the heart of Worcester on Cavendish Street, this stunning...

Charnwood Close, Worcester

3 Bedroom Detached Bungalow | Offers Over £400,000

Philip Laney & Jolly Worcester present this attractive three bedroom detached bungalow, tucked away in the sought after...

Draycote Close, Worcester

4 Bedroom Detached House | Guide Price £410,000

PLJ Worcester provide an exceptional opportunity to acquire this beautifully presented four bedroom detached family home...

Derrington Gardens, Kempsey, Worcester

4 Bedroom Detached House | Guide Price £420,000

** SOLD, SUBJECT TO CONTRACT - SIMILAR PROPERTIES REQUIRED. CALL PLJ WORCESTER TO ARRANGE A FREE NO OBLIGATION MARKET AP...

Philip Laney & Jolly (Worcester)

Worcester, Worcestershire, WR1 2LS

01905 26664

How much is your home worth?

Use our short form to request a valuation of your property.

Request a Valuation

Mortgage Calculator

Amount Borrowed: £
Total Amount Repayable: £
Total Monthly Payment: £
©2026 The Guild of Property Professionals. All rights reserved. Terms and Conditions | Privacy Policy | Cookie Policy | Complaints Policy | Members Login
The Guild of Property Professionals Trading Address: 121 Park Lane, London W1K 7AG. GPEA Limited. Registered in England & Wales.  Company No: 02819824.  Registered Office Address: 2 St. Stephen's Court, St. Stephen's Road, Bournemouth, Dorset, England, BH2 6LA.  VAT Registration No: 576 8795 61
Book a Property Valuation Update Cookies Preferences