Clapham Common, Worthing

Asking Price
£390,000

3 Bedroom House for sale in Worthing

1 3 1
  • Character home in rural setting
  • Three Double Bedrooms
  • 15'3" Lounge
  • Feature Southerly aspect rear garden
  • Excellent transportation links
  • Scope to extend STPC

This property has bags of character and sits in the rural setting of Clapham and offers superb views. There are excellent transportation links and Worthing town centre is a short distance away. As you would expect of this location, there is plenty of the countryside to enjoy with many outstanding walks just on your doorstep. Accommodation comprises a 15'3" lounge, kitchen, three double bedrooms, bathroom and separate cloakroom. Outside is a long Southerly aspect rear garden with views over fields. The property also lends itself to an extension to the rear subject to suitable planning being obtained. Photographs are historical and are for guidance. Viewings are strongly recommended to appreciate it fully.

Entrance Hall

Accessed via a double glazed door. Door to

Lounge
15' 3'' x 10' 2'' (4.64m x 3.10m)
Two double glazed windows to the front. Multi fuel log burner. Under stairs storage cupboard plus additional storage cupboard. Two wall mounted heaters.

Kitchen
8' 6'' x 7' 9'' (2.59m x 2.36m)
Part tiled with two double glazed windows to the rear overlooking the garden. Roll edge work tops with inset stainless steel single bowl, single drainer sink unit with mixer tap. Space and plumbing for both a washing machine and dishwasher. Space for a cooker. Range of base units and drawers with matching wall mounted cupboards.

Family Bathroom
8' 0'' x 4' 3'' (2.44m x 1.29m)
Part tiled with double glazed window to the rear. Panel enclosed bath with wall mounted electric shower over. Wash hand basin. Shelving. Radiator.

Inner Hall/Utility Area
8' 4'' x 2' 8'' (2.54m x 0.81m)
L-shaped with space for a fridge freezer. Double glazed door leading to the rear garden.

Cloakroom

Part tiled with double glazed window to the rear. Low level WC. Corner wash hand basin.

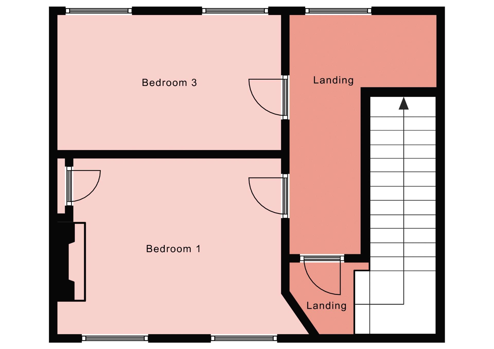
First Floor Landing

Double glazed window to the rear overlooking the garden and fields.

Bedroom 1
12' 1'' x 10' 5'' (3.68m x 3.17m)
Two double glazed windows to the front. Fireplace. Wall mounted heater.

Bedroom 3

Two double glazed windows to the rear. Wall mounted heater.

Bedroom 2
17' 3'' x 12' 2'' (5.25m x 3.71m)
Situated on the second floor with two Veluxe style windows to both the front and rear. Walk in eaves storage space. Wall mounted heater.

Rear Garden

Being of a Southerly aspect, this enclosed feature garden has an extensive area of lawn, a paved patio area. There is also a private retreat style area to the end of the gardens with views looking out over fields.

Front garden

Area of lawn.

Important Information

  • This is a Freehold property.

Property Ref: EAXML11635_11706229

Share:

Similar Properties

Old Worthing Road, East Preston

3 Bedroom Bungalow | Guide Price £365,000

**Guide price £365,000 to £385,000** *ANNEXE* A fantastic opportunity to purchase this detached bungalow situated in a p...

Heene Road,Worthing

2 Bedroom Semi-Detached House | Offers Over £360,000

A charming Edwardian semi-detached house located just a hundred yards from Worthing seafront and promenade with local sh...

Pentland Road, Worthing

3 Bedroom End of Terrace House | Asking Price £350,000

A great opportunity to purchase this modern end of terrace house situated in the popular location of Salvington. Accommo...

St. Maurs Road, Ferring

3 Bedroom House | Guide Price £400,000

***Guide Price £400,000 to £420,000*** A great opportunity to purchase this semi detached family home situated in the de...

Lindum Road, Worthing

2 Bedroom Bungalow | Guide Price £400,000

*** Guide Price £400,000 to £425,000 *** A superb opportunity to acquire this 2/3 bedroom, semi detached bungalow situat...

Malthouse Way, Worthing

3 Bedroom House | Guide Price £400,000

**Guide price £400,000 to £425,000** A spacious detached family home, built in 2016 by Taylor Wimpey. Accommodation comp...

Bartholomew Estate Agents (Goring-By-Sea)

Goring-By-Sea, West Sussex, BN12 4PA

01903 680580

How much is your home worth?

Use our short form to request a valuation of your property.

Request a Valuation

Mortgage Calculator

Amount Borrowed: £
Total Amount Repayable: £
Total Monthly Payment: £
©2025 The Guild of Property Professionals. All rights reserved. Terms and Conditions | Privacy Policy | Cookie Policy | Complaints Policy | Members Login
The Guild of Property Professionals Trading Address: 121 Park Lane, London W1K 7AG. GPEA Limited. Registered in England & Wales.  Company No: 02819824.  Registered Office Address: 2 St. Stephen's Court, St. Stephen's Road, Bournemouth, Dorset, England, BH2 6LA.  VAT Registration No: 576 8795 61
Book a Property Valuation Update Cookies Preferences