Reigate Road, Worthing

Guide Price
£500,000
Sold
This property listing is now Sold

3 Bedroom Semi-Detached House for sale in Worthing

1 3 1
  • Extended semi detached house
  • Three good size bedrooms
  • Open plan kitchen/dining room
  • Ample off road parking
  • West facing rear garden
  • Elm Grove school catchment area
  • Close to mainline railway station
  • No onward chain
  • Sole agents
  • Call now to view

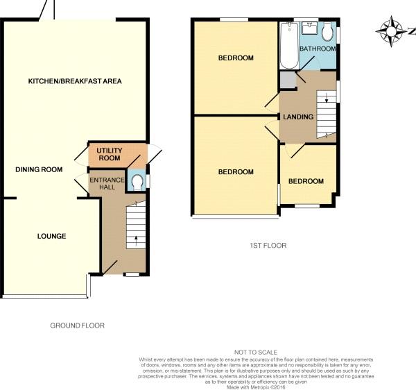
Entrance porch

Spacious entrance hall

Feature lounge
4.09m x 3.66m (13'5 x 12'0)

Superb open plan kitchen/diner
6.43m x 4.45m (21'1 x 14'7)

Stairs to first floor

Access to large loft space

Bedroom one
4.27m x 3.40m (14'0 x 11'2)

Bedroom two
3.71m x 3.20m (12'2 x 10'6)

Bedroom three
3.20m x 2.06m (10'6 x 6'9)

Modern family bathroom

Ample off road parking

Feature West facing rear garden

Important Information

  • This Council Tax band for this property is: C
  • EPC Rating is C

Property Ref: 37569_33295039

Share:

Similar Properties

Chancton View Road, Worthing

4 Bedroom End of Terrace House | Guide Price £500,000

We are delighted to bring to market this substantially extended and beautifully presented four bedroom family home, occu...

Rose Walk, Goring By Sea

3 Bedroom Semi-Detached House | Offers in excess of £500,000

Tucked away along one of Worthing’s most sought-after residential roads. This much-loved three-bedroom character home of...

Windsor Road, Worthing

3 Bedroom House | Offers in excess of £500,000

James & James Estate Agents are delighted to bring to the market this beautiful period home, situated in a popular resid...

Manor Way, Henfield

3 Bedroom Semi-Detached Bungalow | Guide Price £525,000

James & James Estate Agents are delighted to bring to the market this beautifully presented three bedroom chalet style b...

Glebeside Close, Worthing

4 Bedroom Detached House | Guide Price £525,000

GUIDE PRICE £525,000 - £550,000.James & James Estate Agents are delighted to bring to the market this beautifully presen...

Nelson Road, Goring-By-Sea, Worthing

3 Bedroom Detached House | Guide Price £525,000

A well presented three bedroom detached home, occupying a slightly wider than average plot. The property provides versat...

James & James Estate and Letting Agents (Worthing)

Worthing, West Sussex, BN11 5SA

01903 958770

How much is your home worth?

Use our short form to request a valuation of your property.

Request a Valuation

Mortgage Calculator

Amount Borrowed: £
Total Amount Repayable: £
Total Monthly Payment: £
©2026 The Guild of Property Professionals. All rights reserved. Terms and Conditions | Privacy Policy | Cookie Policy | Complaints Policy | Members Login
The Guild of Property Professionals Trading Address: 121 Park Lane, London W1K 7AG. GPEA Limited. Registered in England & Wales.  Company No: 02819824.  Registered Office Address: 2 St. Stephen's Court, St. Stephen's Road, Bournemouth, Dorset, England, BH2 6LA.  VAT Registration No: 576 8795 61
Book a Property Valuation Update Cookies Preferences