Kingsway, Wrose,

£239,950
Under Offer
This property listing is now Under Offer

3 Bedroom Semi-Detached House for sale in Wrose

3 1
  • SUPERBLY PRESENTED EXTENDED 3 BEDROOM SEMI-DETACHED
  • LOFT SPACE CONVERTED INTO AN OCCASIONAL ROOM
  • UNIQUE FEATURE IS A DOUBLE DETACHED GARAGE
  • 2 CAR PARKING AT THE FRONT
  • LOUNGE THROUGH TO THE DINING ROOM
  • MODERN FITTED KITCHEN
  • UPDATED MODERN BATHROOM SUITE IN WHITE
  • FRONT AND REAR GARDENS
  • READY TO MOVE INTO YOUNG FAMILY HOME
  • POPULAR PART OF WROSE


SUPERBLY PRESENTED EXTENDED 3 BEDROOM SEMI-DETACHED OFFERING ADDITIONAL LOFT SPACE AS AN OCCASIONAL ROOM * ALSO A DOUBLE DETACHED GARAGE * SPACIOUS LOUNGE THROUGH TO THE DINING ROOM * FITTED KITCHEN IN WHITE * UPDATED MODERN FITTED BATHROOM SUITE IN WHITE * UTILITY ROOM * GCH * UPVC DG WINDOWS AND DOORS * ALARMED & CCTV SYSTEM FRONT SIDE & REAR * FRONT & REAR GARDENS * DRIVE TO THE FRONT FOR 2 CAR PARKING * THIS IS A LOVELY YOUNG FAMILY HOME IN A MUCH SOUGHT AFTER PART OF WROSE * VIEWING IS ESSENTIAL TO APPRECIATE THIS LARGER THAN AVERAGE SEMI DETACHED 
Offered for sale at an asking price of ?239,950, this superbly presented extended three-bedroom semi-detached home is set in the heart of the ever-popular Kingsway area of Wrose. Ideal for young families or those looking for a ready-to-move-into property, the home has been thoughtfully designed and maintained to provide practical modern living in a desirable location.
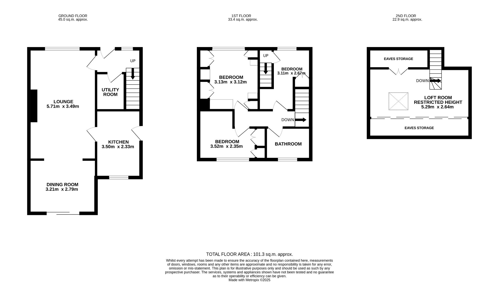
Upon entering the property at ground-floor level, you are welcomed into a entrance hall leading through to two well-proportioned reception rooms. The lounge, with its bright and airy feel, flows seamlessly into the dining area, offering ample space for relaxing and entertaining alike. The modern fitted kitchen provides both function and style, complete with contemporary units and good worktop space ? well-suited for family life or the keen home cook. There is also a utility room. 
Upstairs, the property boasts three bedrooms and an updated family bathroom suite, finished in a sleek modern white design. A unique and versatile benefit of this home is the converted loft space which serves as an occasional room ? ideal for a home office, guest space or playroom, accessed via a staircase from the third bedroom. 
Externally, the property stands out with a substantial double detached garage to the rear, a rare and valuable feature, complemented by additional parking for two cars on the drive to the front. Attractive low-maintenance gardens to both the front and rear complete the outside space, with the rear garden providing a secure area for children to play or to enjoy sunny afternoons.
This home is ideally located within close proximity to a range of local amenities and services. Highly regarded primary and secondary schools are just a short distance away, making it a practical choice for families. For everyday needs, supermarkets including Morrisons and Lidl are within easy reach by car.  
For those commuting or travelling further afield, Shipley Train Station offers direct routes to both Leeds and Bradford and is less than 10 minutes away by car. Leeds Bradford Airport is also conveniently located approximately 25 minutes away, offering national and international connections.
This beautifully maintained and extended property offers a rare opportunity to purchase a family-friendly home in a well-regarded part of Wrose. Early viewing is essential to fully appreciate the quality and value of accommodation on offer.

Entrance Hall: Upvc door, Upvc dg window, anthracite radiator, alarm panel, shoe cupboard and meter cupboard, stairs.

Lounge: Upvc dg window with a fitted blind to front, coving, marble fireplace surround with a stainless steel log effect gas fire, inset ceiling lights, double radiator, archway leads onto the:

Dining Room: Coving, double radiator, Upvc dg sliding patio doors to rear, built in cupboards and drawers and display area, inset ceiling lights, space for a table and chairs.   

Kitchen: Modern range of wall & base units, work tops, tiling to full walls, Hotpoint glass extractor hood over a gas oven, stainless steel sink with an extendable tap, tall boy fridge freezer, Upvc dg window to rear, side Upvc dg part stable door.    

Utility Room: Plumbed for an auto-washer and dryer facility, wall units in beech, laminate flooring, consumer unit, useful coats area, under stairs storage cupboard. 

Landing & Stairs: Frosted side Upvc dg window.

Bedroom 1: Upvc dg window with a fitted blind, coving, radiator, extensive fitted furniture by Fern  

Bedroom 2: Upvc dg window to rear, radiator, fitted furniture by Fern.  

Bedroom 3: Upvc dg window to front, radiator, fitted wardrobes, internal door with stairs access to the roof space.   

Bathroom: Superbly presented three piece P shaped suite in white, glass screen, chrome mixer tap, chrome thermostatically controlled shower unit over the bath, fully tiled in grey, wc and wash basin set in a vanity and cistern unit, Upvc cladded ceiling with lighting, frosted Upvc dg window, heated chrome towel rail, extractor,    

Loft space Occasional Room: Sky light dg window with a blind, radiator, access to under drawing storage.  

Externally: Front low maintenance garden, concrete drive for 2 cars, gated access to a side drive. To the rear is a double detached garage with two up and over doors, side door, light and power, water tap, external power points, artificial grassed area, decked area, all enclosed and SW facing.

While we endeavour to make our sales particulars fair, accurate and reliable, they are only a general guide to the property and, accordingly, if there is any point which is of particular importance to you, please contact the office and we will be pleased to check the position for you, especially if you are contemplating travelling some distance to view the property.

3. The measurements indicated are supplied for guidance only and as such must be considered incorrect.

4. Services: Please note we have not tested the services or any of the equipment or appliances in this property, accordingly we strongly advise prospective buyers to commission their own survey or service reports before finalising their offer to purchase.

5. THESE PARTICULARS ARE ISSUED IN GOOD FAITH BUT DO NOT CONSTITUTE REPRESENTATIONS OF FACT OR FORM PART OF ANY OFFER OR CONTRACT. THE MATTERS REFERRED TO IN THESE PARTICULARS SHOULD BE INDEPENDENTLY VERIFIED BY PROSPECTIVE BUYERS OR TENANTS. NEITHER MARTIN LONSDALE ESTATES LIMITED NOR ANY OF ITS EMPLOYEES OR AGENTS HAS ANY AUTHORITY TO MAKE OR GIVE ANY REPRESENTATION OR WARRANTY WHATEVER IN RELATION TO THIS PROPERTY.                 

  

Property Reference 0015431

Important Information

  • This is a Freehold property.
  • This Council Tax band for this property is: C

Property Ref: 0015431

Share:

Similar Properties

Straw View, Thackley, BD10

2 Bedroom Semi-Detached House | £239,950

EXTENDED 2 BEDROOM SEMI-DETACHED KNOWN AS THE CHELSEA * THE GROUND FLOOR EXTENSION OFFERS A SUPERB OPEN PLAN KITCHEN DIN...

Santa Monica Crescent, Idle,

3 Bedroom Semi-Detached House | £239,950

STUNNING EXTENDED SEMI-DETACHED SET IN THIS ATTRACTIVE CUL-DE-SAC POSITION IN THIS MUCH SOUGHT AFTER PART OF IDLE * THE...

Thackley View, Thackley,

2 Bedroom Semi-Detached House | £239,950

MUCH SOUGHT AFTER STLYE OF PROPERTY * 2 DOUBLE BEDROOMS * 2 RECEPTIONS * DOWNSTAIRS SHOWER ROOM * MODERN PROFILE UPVC DG...

Thackley Old Road, Windhill,

4 Bedroom Semi-Detached House | £240,000

4 BEDROOM EXTENDED SEMI-DETACHED ON THREE LEVELS * 2 RECEPTION ROOMS * DOWNSTAIRS WET ROOM * FITTED KITCHEN * SIDE UPVC...

Leeds Road, Thackley,

5 Bedroom Land | Offers in region of £240,000

PLOT OF LAND WITH PLANNING PERMISSION 20/00738/FUL - Consent for a proposed 5 BEDROOM AND 5 BATHROOM DETACHED PROPERTY *...

Rush Croft, Thackley,

3 Bedroom Terraced House | £242,000

SUPERBLY PRESENTED THREE STOREY 3 BEDROOM MID-TERRACE * CUL-DE-SAC POSITION & LONG DISTANCE FRONTAL VIEWS * REAR OPEN AS...

Martin S Lonsdale Estate Agents (Bradford)

Thackley, Bradford, West Yorkshire, BD10 8JT

01274 622073

How much is your home worth?

Use our short form to request a valuation of your property.

Request a Valuation

Mortgage Calculator

Amount Borrowed: £
Total Amount Repayable: £
Total Monthly Payment: £
©2026 The Guild of Property Professionals. All rights reserved. Terms and Conditions | Privacy Policy | Cookie Policy | Complaints Policy | Members Login
The Guild of Property Professionals Trading Address: 121 Park Lane, London W1K 7AG. GPEA Limited. Registered in England & Wales.  Company No: 02819824.  Registered Office Address: 2 St. Stephen's Court, St. Stephen's Road, Bournemouth, Dorset, England, BH2 6LA.  VAT Registration No: 576 8795 61
Book a Property Valuation Update Cookies Preferences