Brook Street Wymeswold

Offers Over
£1,250,000

4 Bedroom Detached House for sale in Wymeswold

4 4 3
  • Exceptional Eco-Efficient Detached and Extended Home
  • Set on an Approximate One Acre Plot
  • Solar Panels, Ground Source Heat Pump, Rainwater Harvesting and Underfloor Heating Throughout
  • Stunning Open-Plan Bespoke Kitchen, Living and Dining Space with Striking Kidney Shaped Island
  • Versatile Ground Floor Layout including Living Room, Dining Room, Study, Snug, Utility, WC and Plant Room
  • Four Generous Double Bedrooms Including a Standout Principal Suite with Juliet Balcony and En-Suite, Plus a Second En-Suite Bedroom
  • Energy Rating Pending
  • Council Tax Band E
  • Tenure Freehold
  • Double Garage, Store and Highly Versatile Studio/Home Office

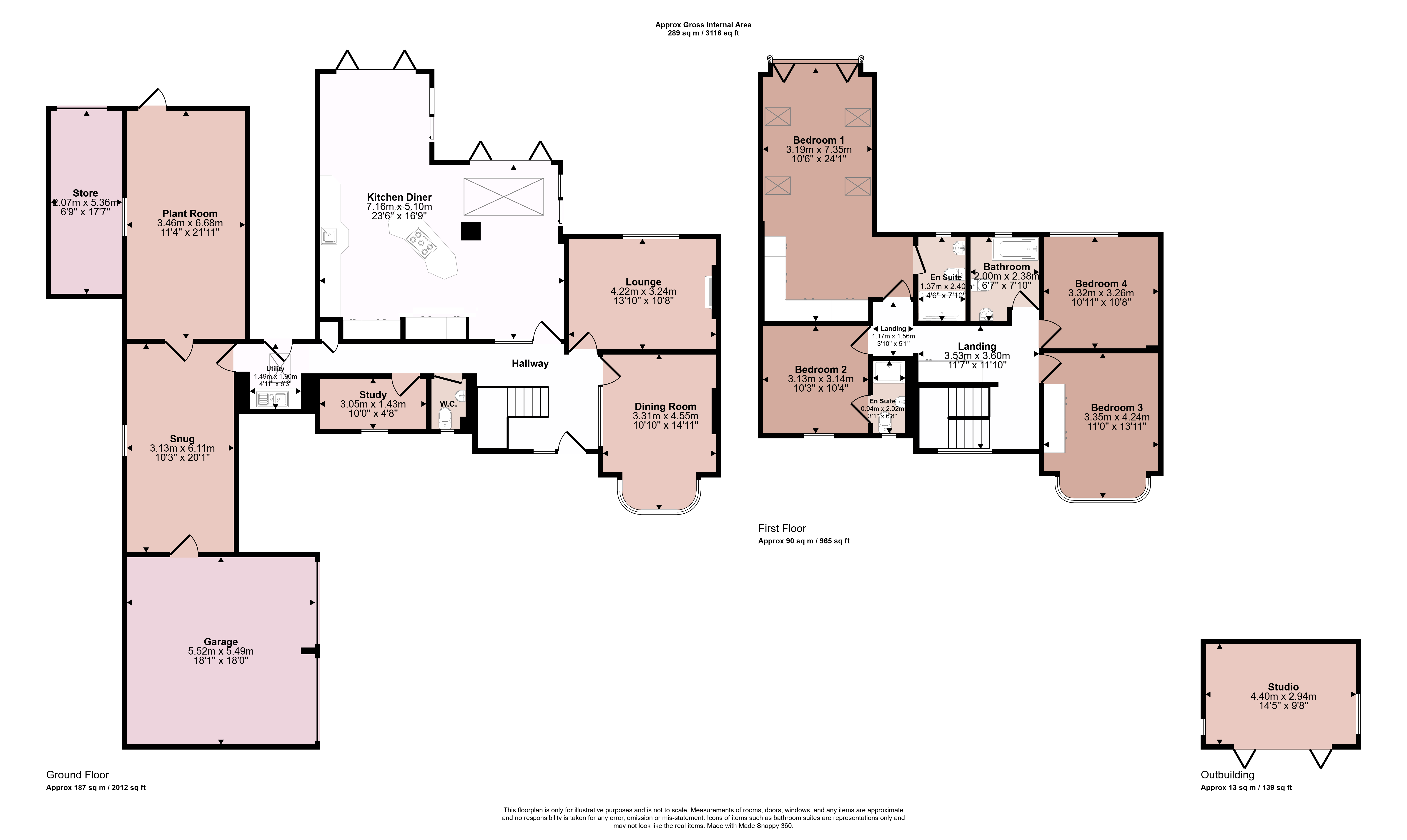
Set within approximately one acre of beautifully landscaped grounds, this exceptional and eco-efficient four-bedroom detached and extended family home combines striking contemporary design with sustainable living. Thoughtfully designed to maximise space, light and energy efficiency, the property benefits from solar panels, a ground source heat pump, rainwater harvesting and underfloor heating throughout, delivering both comfort and reduced running costs. The accommodation is approached via a welcoming entrance hall which leads to the heart of the home – a truly stunning open-plan kitchen, living and dining space. The bespoke kitchen is a standout feature, centred around a striking kidney-shaped island, ideal for both everyday family life and entertaining. This impressive space flows seamlessly and is flooded with natural light, creating a superb hub of the home. Further ground floor accommodation includes a separate living room, formal dining room, study, a versatile snug, utility area, downstairs WC and a dedicated plant room housing the ground source heat pump and tanks, offering excellent additional storage. To the first floor are four generous double bedrooms. The principal suite is a particularly impressive feature, boasting vaulted ceilings, fully fitted wardrobes, bi-folding doors opening to a Juliet balcony and a stylish en-suite bathroom. Bedroom two also benefits from its own en-suite, while bedrooms three and four are served by a well-appointed family bathroom. Externally, the property continues to impress having a driveway providing ample parking which leads to a double garage with adjoining store and a highly versatile studio, currently used as a home office but equally suited to a gym or workshop. The landscaped gardens offer a high degree of privacy, with a paddock to the rear providing an idyllic outlook and further space, ideal for a variety of uses. This outstanding home offers an exceptional balance of modern living, sustainability and privacy, all set within a generous plot in a tranquil setting.

Set within approximately one acre of beautifully landscaped grounds, this exceptional and eco-efficient four-bedroom detached and extended family home combines striking contemporary design with sustainable living. Thoughtfully designed to maximise space, light and energy efficiency, the property benefits from solar panels, a ground source heat pump, rainwater harvesting and underfloor heating throughout, delivering both comfort and reduced running costs. The accommodation is approached via a welcoming entrance hall which leads to the heart of the home - a truly stunning open-plan kitchen, living and dining space. The bespoke kitchen is a standout feature, centred around a striking kidney-shaped island, ideal for both everyday family life and entertaining. This impressive space flows seamlessly and is flooded with natural light, creating a superb hub of the home. Further ground floor accommodation includes a separate living room, formal dining room, study, a versatile snug, utility area, downstairs WC and a dedicated plant room housing the ground source heat pump and tanks, offering excellent additional storage. To the first floor are four generous double bedrooms. The principal suite is a particularly impressive feature, boasting vaulted ceilings, fully fitted wardrobes, bi-folding doors opening to a Juliet balcony and a stylish en-suite bathroom. Bedroom two also benefits from its own en-suite, while bedrooms three and four are served by a well-appointed family bathroom. Externally, the property continues to impress having a driveway providing ample parking which leads to a double garage with adjoining store and a highly versatile studio, currently used as a home office but equally suited to a gym or workshop. The landscaped gardens offer a high degree of privacy, with a paddock to the rear providing an idyllic outlook and further space, ideal for a variety of uses. This outstanding home offers an exceptional balance of modern living, sustainability and privacy, all set within a generous plot in a tranquil setting.

Important Information

  • This Council Tax band for this property is: E

Property Ref: BNT_BNT251098

Share:

Similar Properties

Station Lane Kirby Bellars

6 Bedroom Detached Bungalow | Guide Price £1,250,000

A rare offering to the market and offering substantial versatility, Lakeview House is set privately at the end of an imp...

The Ridings Rothley

5 Bedroom Detached House | Guide Price £1,250,000

A rare opportunity to acquire an original Arts & Craft architect designed home originally commissioned as part of the Ro...

Main Street Newtown Linford

5 Bedroom Detached House | Guide Price £1,200,000

A stunning five bedroomed, individually styled detached residence lying in magnificent grounds extending to approximatel...

North Witham Grantham

4 Bedroom Detached House | Asking Price £1,395,000

Hillview is an exceptional equestrian estate which seamlessly blends luxury living with outstanding equine facilities. M...

Sutton Lane Market Bosworth

7 Bedroom Detached House | Guide Price £1,495,000

A stunning Edwardian built, three storey, six-bedroom detached period residence with a further separate Coach House anne...

Kinoulton Lane Kinoulton

5 Bedroom Detached House | Asking Price £1,750,000

Kinross is a rare offering to the open market, an iconic house on the edge of the Vale of Belvoir offering panoramic vie...

Bentons (Melton Mowbray)

47 Nottingham Street, Melton Mowbray, Leicestershire, LE13 1NN

01664 563892

How much is your home worth?

Use our short form to request a valuation of your property.

Request a Valuation

Mortgage Calculator

Amount Borrowed: £
Total Amount Repayable: £
Total Monthly Payment: £
©2026 The Guild of Property Professionals. All rights reserved. Terms and Conditions | Privacy Policy | Cookie Policy | Complaints Policy | Members Login
The Guild of Property Professionals Trading Address: 121 Park Lane, London W1K 7AG. GPEA Limited. Registered in England & Wales.  Company No: 02819824.  Registered Office Address: 2 St. Stephen's Court, St. Stephen's Road, Bournemouth, Dorset, England, BH2 6LA.  VAT Registration No: 576 8795 61
Book a Property Valuation Update Cookies Preferences